This compact yet well-planned farmhouse offers about 1,800 sq ft of heated living space. With 4 bedrooms, 2 bathrooms, and an attached 2-car garage (~488 sq ft), this design delivers efficient use of space, smart layout, and a cozy farmhouse feel — ideal for couples, small families, or those wanting a modest footprint with enough flexibility. 0

Exterior & Curb Appeal — Simple, Inviting & Farmhouse-Chic
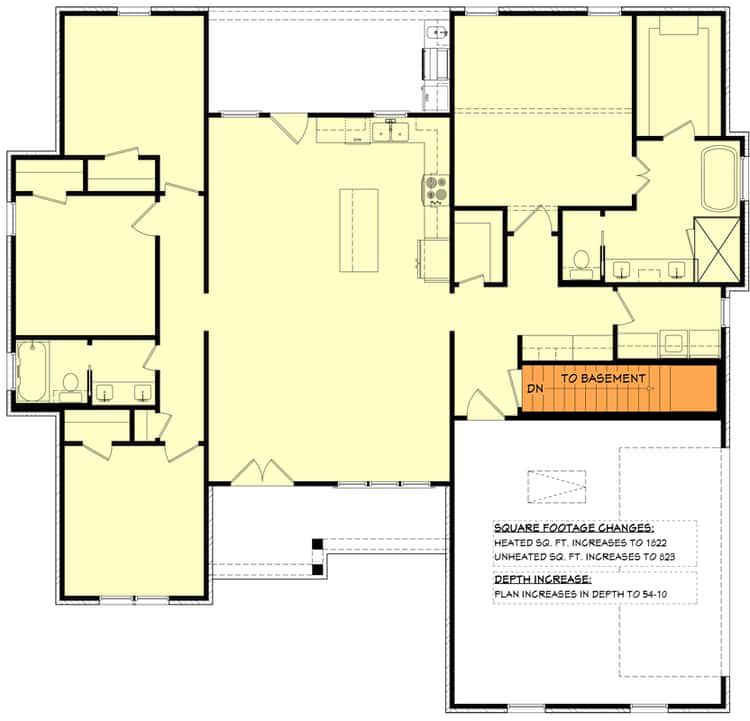
The front of the home welcomes you with a modest 5-foot deep porch, classic farmhouse styling that’s clean and straight-forward — perfect for narrow or modest-size lots. 1 The overall footprint spans about 57′ 8″ wide × 50′ 6″ deep, with a roof ridge around 25′ 7″ high — giving the home a neat, grounded profile that’s easy to situate on a variety of properties. 2
The attached 2-car garage stays compact and unobtrusive, offering practical parking and storage without overly expanding the home’s footprint or overshadowing the farmhouse aesthetic. 3

Open Living & Smart Flow — Great Room, Kitchen & Dining Together
Walking in from the front porch, you enter into a combined great room, kitchen and dining area — the social heart of the home. The layout is open and efficient, making daily living and family interaction easy and natural. 4
Ceilings in the common areas run about 10′ high, giving a sense of openness even within the modest square footage. 5
The kitchen is functional and straightforward — practical enough for everyday cooking and family meals — with room for a compact dining setup and easy transition to the living space. 6
Bedrooms & Sleeping Layout — Privacy and Efficient Use of Space
This plan uses a “split-bedroom” layout. On one side sits the vaulted master suite, giving a private retreat for the homeowners — a thoughtful feature in a home of this size. 7 On the opposite side, the three secondary bedrooms group together, sharing the second full bath. 8
That separation helps balance privacy with efficient use of space — ideal for a small family, guests, or a household needing multiple bedrooms without wasting square footage. 9
Garage, Utility & Practical Details — Designed for Flow and Everyday Life
- Garage: 2-car attached (~488 sq ft) — compact but sufficient for daily needs, storage, or modest workshop use. 10
- Porches: Covered front porch (about 113 sq ft) and a rear porch (about 152 sq ft), totaling ~256 sq ft of porch space — offering outdoor spots for relaxing, small gatherings, or enjoying the view. 11

- Lot size & footprint: At 57′ 8″ wide and 50′ 6″ deep, the home fits nicely on modest lots, making it a good option for suburban or rural settings where space is limited. 2
- Construction basics: Slab foundation, standard 2×4 exterior walls (upgradeable to 2×6) for straightforward, budget-friendly building. 3
Specs Summary
- Total Heated Area: ~1,800 sq ft 1
- Bedrooms: 4 2
- Bathrooms: 2 full baths 3
- Garage: 2-car attached (~488 sq ft) 10
- Porch / Outdoor Space: Front porch ~113 sq ft; rear porch ~152 sq ft; total covered porch ~256 sq ft 11
- Dimensions: 57′ 8″ wide × 50′ 6″ deep; max ridge height ~25′ 7″ 2
- Ceiling Heights: Main areas ~10′; master suite vaulted to ~14′ 1″ 7
- Layout Style: Open living/dining/kitchen, split-bed layout, compact footprint, functional use of space. 9

Lifestyle Benefits — Compact, Cozy & Family-Friendly Living
- Efficient & manageable size: At ~1,800 sq ft, the home is easy to maintain — ideal for small families, downsizers, or those wanting simplicity without sacrificing space.
- Privacy plus togetherness: Split-bed layout gives separation between master and kids/guest rooms while the open central area encourages togetherness for meals and gatherings.
- Outdoor connection: Front and rear porches provide outdoor breathing space for relaxation, small-town charm, or morning coffee — a simple but meaningful touch.
- Lot flexibility: Compact footprint and attached garage make the plan suitable for modest-sized or narrow lots — good for suburban neighborhoods or efficient use of land.
Estimated U.S. Build Cost (USD)
Using a typical U.S. residential construction cost range of about $180–$260 per sq ft for a home with this size and basic finishes, building ~1,800 sq ft suggests a rough budget of around **$324,000–$468,000 USD** (excluding land, site prep, permits, utilities, and regional cost differences). Because of its modest size and efficient layout, this plan can deliver solid value relative to space. 12

Why This Plan Is a Great Choice — Practical, Charming & Well-Balanced
This transitional modern farmhouse gives you a compact, efficient home without skimping on comfort or flexibility. With four bedrooms, a vaulted master retreat, open living, and enough porch space to enjoy the outdoors — it’s ideal for small families, guests, or anyone valuing a modest, manageable home that remains spacious enough for real life. If you want a home that’s easy to build, easy to maintain, but still offers style and thoughtful layout — this design hits the mark.












