This beautifully crafted Southern-style home offers approximately 2,373 square feet of heated living space with four bedrooms and three full bathrooms. Designed as a single-story residence, this plan blends classic Southern charm with modern functionality. With its spacious layout, open living areas, and attached two-car garage, this home is ideal for families seeking comfort, elegance, and practical design. 0

Exterior Design
The exterior reflects timeless Southern architecture, featuring a wide footprint of approximately 76 feet 10 inches in width and 53 feet 4 inches in depth. 1 This generous layout creates a strong and welcoming presence, perfect for suburban or rural settings.
A combination of covered front and rear porches totaling about 580 square feet enhances the home’s curb appeal while providing ample outdoor living space. 2 These porches are ideal for relaxing, entertaining, or enjoying the outdoors in true Southern style.
Interior Layout Overview
All 2,373 square feet of living space is arranged on a single level, offering convenience and accessibility. 3 The layout is thoughtfully designed with a balance between open communal areas and private bedroom zones.
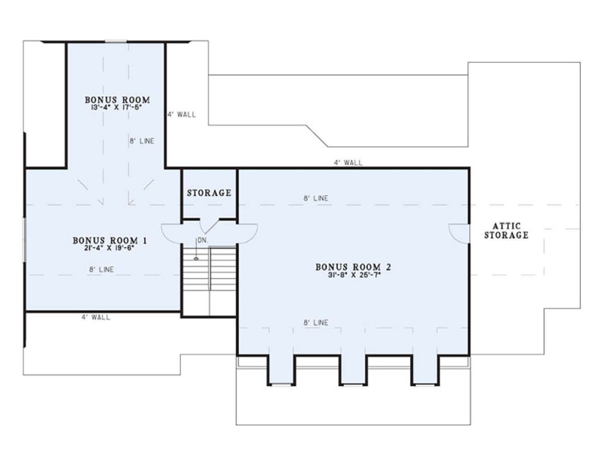
An optional bonus room of approximately 1,583 square feet provides significant expansion potential, allowing homeowners to add extra living space, bedrooms, or recreational areas as needed. 4
Main Living Area
The great room serves as the central gathering space, offering a spacious and comfortable environment for daily living and entertaining. Its open connection to the kitchen and dining areas creates a seamless and inviting flow throughout the home.
Large windows and open sightlines enhance natural light, contributing to a bright and airy interior atmosphere.
Kitchen and Dining
The kitchen is designed for both functionality and interaction, featuring an efficient layout that connects directly to the dining area. A nearby breakfast nook provides an additional casual dining space, perfect for everyday meals. 5
The open design ensures that the kitchen remains integrated with the main living area, making it ideal for family gatherings and entertaining.
Bedrooms
This home includes four bedrooms, arranged in a split-bedroom layout that enhances privacy. 6 The primary suite is located on the main level and serves as a private retreat.
The additional bedrooms are positioned on the opposite side of the home, offering comfortable accommodations for family members or guests. Some rooms can also be adapted for use as a home office or flexible living space.

Bathrooms
The design includes three full bathrooms, ensuring convenience for both residents and visitors. 7 The layout supports efficient daily routines while maintaining privacy for each bedroom area.
Functional Features
- Single-story layout: All living areas are on one level for easy accessibility. 8
- Split-bedroom design: Enhances privacy between the primary suite and secondary bedrooms. 9
- Open floor plan: Improves flow between living, dining, and kitchen areas. 10
- Bonus room: Offers expansion potential for additional living space. 11
- Front and rear porches: Extend outdoor living areas. 12
- Study and mudroom: Add functionality and organization. 13
- Main-floor laundry: Enhances everyday convenience. 14
- Two-car garage: Provides parking and storage space. 15
Garage and Additional Space
The attached two-car garage provides approximately 523 square feet of unheated space, suitable for vehicles, storage, or workshop use. 16
The optional bonus room adds significant flexibility, allowing homeowners to customize the space according to their needs.
Dimensions and Structural Details
The home measures approximately 76 feet 10 inches wide and 53 feet 4 inches deep, with an overall height of about 26 feet 3 inches. 17
It supports multiple foundation options, including slab, crawlspace, or basement, allowing adaptability based on site conditions. 18 The structure is typically built using durable wood framing for long-term performance.
Estimated Building Cost (USD)
Construction costs vary depending on materials, labor, and location. Using common mid-range estimates:
- Low estimate: ~ $284,760 (assuming ~$120 per sq ft × 2,373 sq ft)
- High estimate: ~ $427,140 (assuming ~$180 per sq ft × 2,373 sq ft)
This Southern house plan offers a perfect combination of classic charm, spacious living, and modern convenience. Its open layout, flexible bonus space, and inviting outdoor areas make it an excellent choice for homeowners seeking a comfortable and elegant single-story home.
“`19












