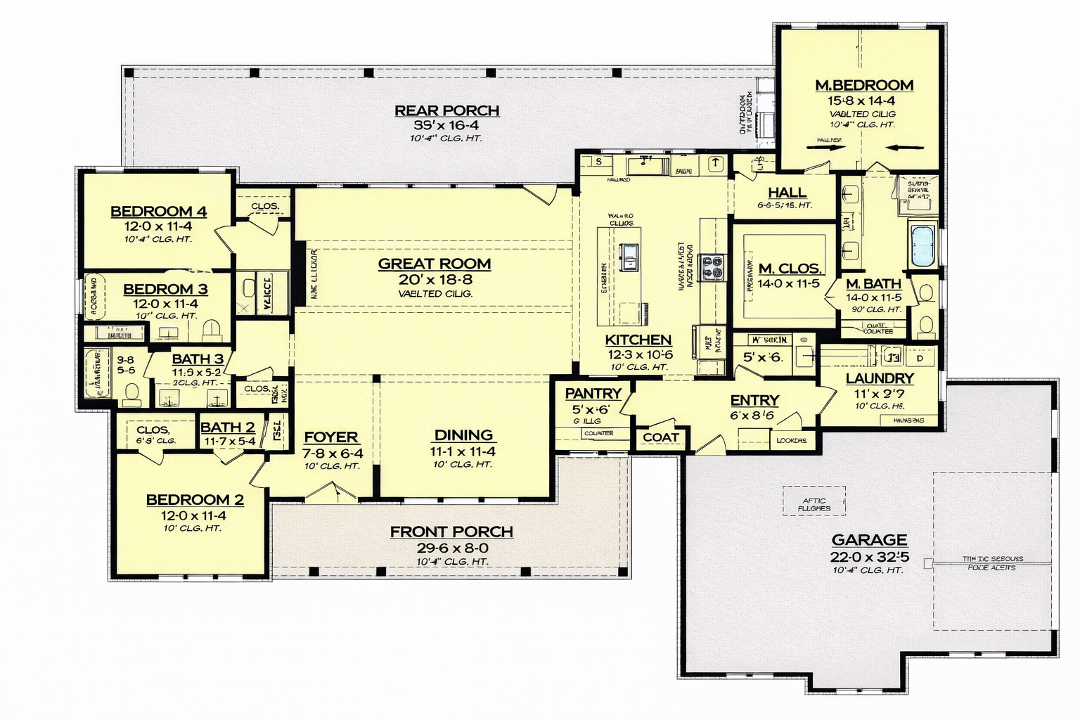
This inviting modern farmhouse design delivers about 2,364 sq ft of comfortable, well-balanced living space all on one level. With 4 bedrooms, 2 full bathrooms, a handy half bath, and an attached 2-car garage (~596 sq ft), it blends classic farmhouse charm with everyday functionality. Thoughtful layout, generous porch areas, and smart indoor-outdoor flow make it a standout choice for families who want style without sacrificing practicality. 0

Curb Appeal & Exterior Presence
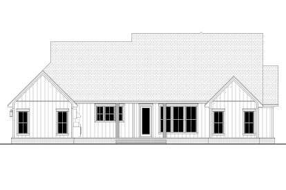
This modern farmhouse presents clean, timeless curb appeal with balanced proportions and simple, elegant lines. 1 Spanning approximately 68′-2″ wide × 66′-8″ deep, the façade feels both welcoming and substantial, ideal for a range of lot sizes. 2 A covered front porch adds warm architectural interest and provides a cozy outdoor space for relaxing or greeting guests. 3

Front & Rear Outdoor Living
Outdoor living extends naturally from the home with a covered front porch (~169 sq ft), perfect for morning coffee or sharing conversation with neighbors. 4 At the rear, a generous covered porch (~315 sq ft) invites dinners under the sky, quiet evenings watching the seasons change, or weekend barbecues. 5 Combined, these porch spaces total about 484 sq ft and create seamless connections between indoor comfort and outdoor enjoyment. 6

Open Great Room — Heart of the Home
Stepping inside, you’re welcomed by a spacious, open great room that becomes the social hub of daily life. 7 Wide sightlines to the dining area and kitchen make the space feel bright, connected, and perfect for both everyday living and entertaining guests. 8 Large windows and porch doors bring in abundant natural light, enhancing the sense of openness that defines modern farmhouse living. 9

Kitchen & Dining — Designed for Life
The kitchen blends function with style, offering intuitive workflow and ample counter space for meal prep. 10 A central island invites casual seating — ideal for quick breakfasts or lunch with friends — while easy access to the dining area and rear porch supports both indoor and outdoor dining. 11 With thoughtful planning around daily tasks and social moments, this kitchen is as practical as it is welcoming. 12

Primary Suite — Private & Comfortable
The primary bedroom suite sits in a quiet wing of the home, offering a private retreat at the end of the day. 13 Ample natural light filters in through well-placed windows, and the attached full bathroom features dual sinks, storage, and everyday convenience. 14 An organized walk-in closet adds thoughtful storage that keeps your personal space calm and clutter-free. 15
Secondary Bedrooms & Shared Bath
Three additional bedrooms provide versatile spaces that can serve family members, overnight guests, or even a home office or hobby room. 16 All are within easy access of a well-appointed full bathroom, creating practical arrangements for daily routines and visits. 17 Thoughtful room placement helps maintain privacy while keeping the layout cohesive and functional. 18

Half Bath & Everyday Usability
A conveniently located half bath supports guests and everyday needs without interrupting the privacy of the full baths. 19 Positioned near shared living spaces, it enhances the usability of the plan during busy mornings or social gatherings. 20
Garage, Mudroom & Practical Flow
The attached two-car garage (~596 sq ft) provides protected parking and additional storage that keeps cars, tools, and outdoor gear organized. 21 A practical mudroom entry helps contain everyday clutter — from backpacks to shoes — before entering the heart of the home, making daily routines smoother and more organized. 22

Indoor-Outdoor Connectivity & Light
Generous windows and doors throughout the home ensure natural light brightens the shared spaces and foster a strong visual and physical connection to the outdoor porch areas. 23 This design strategy enhances your sense of space and makes everyday living feel fresh and open. 24
Dimensions & Key Features
- Total Heated Area: ~2,364 sq ft 25
- Bedrooms: 4 26
- Bathrooms: 2 full + 1 half 27
- Stories: Single level 28
- Garage: 2-car attached (~596 sq ft) 29
- Front Porch: ~169 sq ft 30
- Rear Porch: ~315 sq ft 31
- Total Porch/Patio: ~484 sq ft 32
- Width: ~68′-2″ 33
- Depth: ~66′-8″ 34
- Ceiling Height: ~9 ft typical 35

Lifestyle Highlights
- Open great room that invites connection and natural flow.
- Kitchen designed for efficiency and sociability with casual island seating.
- Primary suite positioned for privacy and everyday comfort.
- Secondary bedrooms adaptable for family, guests, or versatile use.
- Generous porch areas that enhance indoor-outdoor living.
- Convenient mudroom and garage flow that support daily routines.
- Abundant natural light that makes shared spaces feel open and welcoming. 36

Estimated U.S. Build Cost (USD)
Assuming typical U.S. residential construction costs of **$180–$260 per sq ft**, building this ~2,364 sq ft modern farmhouse plan could range between **$426,000 and $615,000 USD** (excluding land cost, permits, site preparation, and regional variations). 37

Why This Modern Farmhouse Plan Shines
This thoughtful modern farmhouse design pairs timeless appeal with functional layout, generous indoor-outdoor spaces, and flexible room options to support everyday living and entertaining alike. Its welcoming character and efficient use of space make it an excellent choice for families who value comfort, versatility, and livability.












