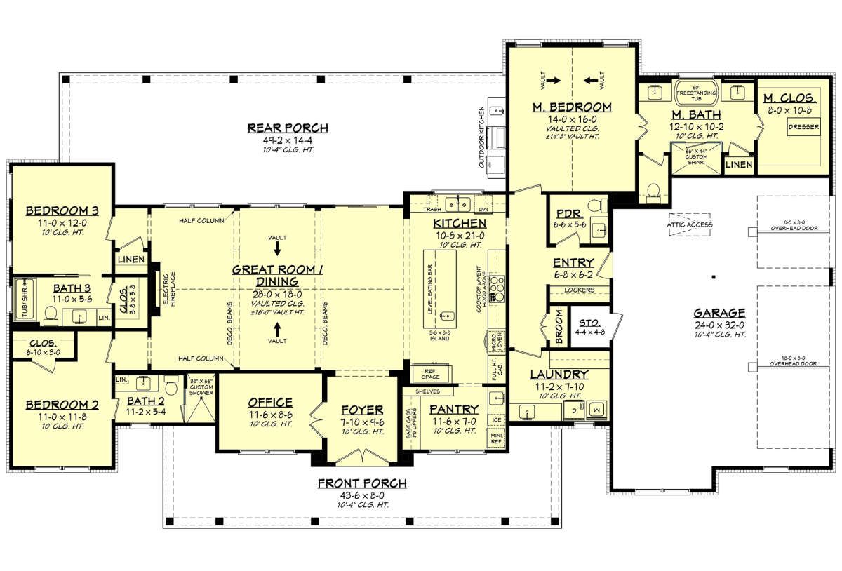
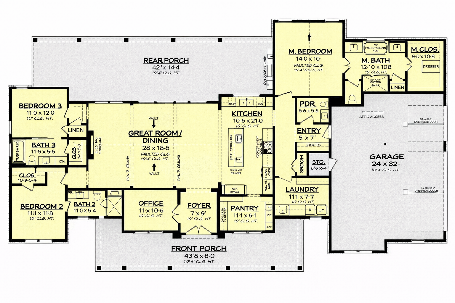
This thoughtfully designed modern farmhouse offers around 2,379 sq ft of comfortable, versatile living space on a single level. Featuring 3 bedrooms, 3.5 bathrooms, a large open great room, and an attached 3-car garage (~795 sq ft), this layout blends classic farmhouse charm with contemporary functionality for everyday life and memorable gatherings. 0

Curb Appeal & Exterior Character
The exterior presents classic modern farmhouse style with clean lines, balanced proportions, and a welcoming covered front porch that immediately invites you to linger. 1 Spanning approximately 91′-2″ wide × 53′-6″ deep, the façade conveys strong curb appeal without feeling overwhelming, making this plan fit beautifully on both suburban and countryside lots. 2 Thoughtful architectural details and window placements give this home visual depth and a timeless yet fresh exterior look. 3

Inviting Outdoor Living — Front & Rear Porches
A covered front porch provides an ideal space to enjoy morning coffee or catch up with neighbors, while an expansive covered rear porch (~727 sq ft) extends your living area into the outdoors, perfect for dining al fresco, relaxing at sunset, or hosting weekend gatherings. 4 These combined outdoor spaces total roughly 987 sq ft, bringing a strong indoor-outdoor connection that’s central to farmhouse living. 5
Main Living — Open, Light-Filled Great Room
Stepping inside, the open great room forms the heart of the home — bright, airy, and intuitively connected to other spaces. 6 Large windows allow natural light to flood the interior, while wide openings maintain clear sightlines between living, dining, and kitchen areas. 7 This welcoming central space anchors daily living, making it ideal for family time, entertaining, or simply unwinding after a busy day. 8
Kitchen & Dining — Designed for Living
The kitchen balances style with everyday utility, offering generous counter space and thoughtful workflow that supports both everyday meals and special occasions. 9 A central island invites casual gatherings and provides extra prep space, while the adjacent dining area flows naturally to the covered rear porch, ideal for indoor-outdoor dining experiences. 10 The layout keeps entertaining effortless and family interaction comfortable. 11

Primary Suite — A Peaceful Retreat
The primary bedroom suite occupies a private corner of the home — a retreat designed for relaxation and comfort. 12 Large windows frame views to the outdoors and let in ample natural light, while the adjoining full bathroom features thoughtful amenities that elevate the daily routine. 13 A spacious walk-in closet adds convenience without sacrificing the suite’s restful feel. 14

Secondary Bedrooms & Guest Comfort
Two additional bedrooms provide comfortable spaces for family members, guests, or flexible uses such as a home office or hobby room. 15 Each bedroom enjoys easy access to well-appointed full bathrooms, ensuring comfort and privacy. 16 Located thoughtfully away from the primary suite, these rooms help maintain peaceful separation while staying close enough to shared living areas for convenience. 17

Half Bath & Everyday Practicality
A conveniently positioned half bathroom supports guests and everyday routines without interrupting the privacy of the full bathrooms. 18 This practical touch enhances flow and usability, especially during busy mornings or while hosting friends and family. 19

Garage, Mudroom & Storage Flow
The attached three-car garage (~795 sq ft) provides ample room for vehicles, storage, or hobby gear. 20 A practical mudroom transition zone helps keep everyday clutter — from coats to backpacks — out of sight before entering the main living areas, and nearby utility spaces make chores and daily routines easier. 21 These thoughtful design details support both organization and comfort. 22

Indoor-Outdoor Connections & Natural Light
Generous windows and broad porch access help bring the outdoors in, filling shared spaces with natural light and maintaining visual connections to the surrounding landscape. 23 The result is a bright, comfortable interior that feels both open and intimately connected to nature. 24

Dimensions & Key Features
- Total Heated Area: ~2,379 sq ft 25
- Bedrooms: 3 (flexible use, 3–4 option) 26
- Bathrooms: 3 full + 1 half 27
- Stories: Single level 28
- Garage: 3-car attached (~795 sq ft) 29
- Porch/Patio Area: ~987 sq ft total 30
- Front Porch: Included 31
- Rear Porch: ~727 sq ft 32
- Width: ~91′-2″ 33
- Depth: ~53′-6″ 34

Lifestyle Highlights
- Open central living zone that fosters connection and comfortable daily routines.
- A kitchen with island seating and seamless connection to dining and porch areas.
- Primary suite positioned for privacy with generous natural light and storage.
- Secondary bedrooms adaptable for family, guests, or work-from-home use.
- Generous porch areas that extend living space outdoors throughout the seasons.
- Smart utility flow with mudroom transition and easy access to amenities.
- Attached three-car garage that supports vehicles and storage needs. 35
Estimated U.S. Build Cost (USD)
Assuming typical U.S. residential construction costs of **$180–$260 per sq ft**, building this ~2,379 sq ft modern farmhouse plan might range between **$428,000 and $620,000 USD** (excluding land, site prep, permits, and regional factors). 36

Why This Modern Farmhouse Plan Shines
This modern farmhouse design pairs open, light-filled social spaces with private bedroom wings and generous outdoor living areas — perfect for families who love to gather, entertain, and enjoy daily life in comfort. Its thoughtful layout, strong indoor-outdoor connections, and classic farmhouse appeal make it a standout choice for contemporary living.











