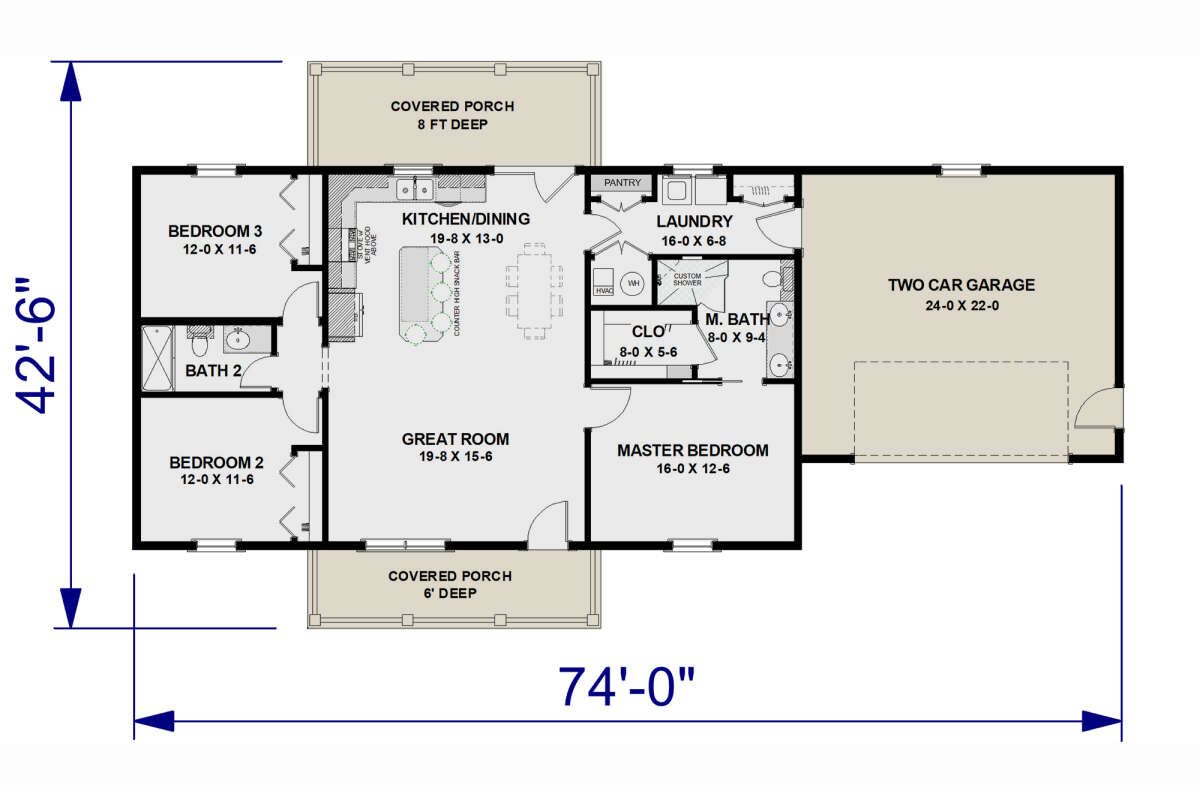
This modern farmhouse offers about 1,425 sq ft of thoughtfully designed one-story living space, combining classic rural charm with smart, practical layout. With 3 bedrooms and 2 full bathrooms, this home is ideal for families, first-time buyers, or anyone seeking a comfortable floor plan that makes the most of every square foot. 0

Exterior & Curb Appeal
The exterior blends modern farmhouse styling with clean, simple lines and balanced proportions. 1 A welcoming covered front porch spans the main entrance — perfect for welcoming guests, relaxing with a morning coffee, or decorating seasonally to enhance curb appeal. 2 With an overall footprint of roughly 74′ wide × 42′-6″ deep, this design fits comfortably on many lot types and delivers a charming, cohesive façade. 3

Porch & Outdoor Living
The covered front porch establishes an inviting indoor-outdoor transition that encourages outdoor living even in compact designs. 4 Beyond the porch, easy access to rear outdoor spaces means you can enjoy backyard dining, garden views, or quiet evenings just outside the main living areas. 5 Large windows throughout the home help strengthen that connection, inviting light into each room while expanding views to the landscape. 6

Main Living Space — Open & Welcoming
Step inside to a bright, open great room that flows naturally into the dining area and kitchen — the heart of this home. 7 This open layout fosters connection between spaces, making daily living feel expansive and inviting. 8 Vaulted or high ceilings and thoughtfully placed windows amplify the sense of space, bringing the outdoors in and enhancing the home’s relaxed, cheerful atmosphere. 9

Kitchen — Functional & Sociable
The kitchen supports both everyday tasks and social moments with a layout that’s efficient and welcoming. 10 A central island or prep space invites casual seating and keeps conversation flowing while cooking. 11 Plenty of cabinets and counter space help keep essentials organized, and its proximity to the dining area makes serving meals effortless. 12

Primary Suite — Private & Comfortable
The primary bedroom suite is thoughtfully positioned for comfort and privacy. 13 Its attached full bathroom ensures convenience, while windows bring in daylight that creates a calm, restful environment. 14 A generous closet keeps personal storage organized and within easy reach. 15

Secondary Bedrooms & Shared Bathroom
Two additional bedrooms sit on the opposite side of the home, offering flexibility for family members, guests, or even a home office or hobby room. 16 These rooms share a well-designed full bathroom, and their comfortable layouts allow for a variety of furniture arrangements and uses. 17 Each bedroom benefits from natural light and thoughtful positioning near the home’s common spaces. 18

Garage, Mudroom & Practical Flow
This plan includes an attached 2-car garage, offering secure parking and storage space for vehicles and gear. 19 Interior access leads through a convenient mudroom area that helps manage everyday clutter — perfect for keeping coats, shoes, and backpacks organized without compromising the home’s tidy interior. 20 A nearby utility area supports laundry and chores with minimal disruption to shared spaces. 21

Indoor-Outdoor Connectivity & Light
Strategically placed windows throughout the home fill interiors with natural light, creating airy, uplifting spaces that feel connected to the outdoors. 22 Whether you’re spending a quiet afternoon indoors or hosting friends and family, this design keeps the interior bright and welcoming. 23


Dimensions & Key Features
- Total Heated Area: ~1,425 sq ft 24
- Bedrooms: 3 25
- Bathrooms: 2 full 26
- Stories: 1 27
- Garage: 2-car attached 28
- Front Porch: Covered outdoor space 29
- Width: ~74′ 30
- Depth: ~42′-6″ 31

Lifestyle Highlights
- An open, flowing main living area perfect for family interaction and everyday life.
- A practical kitchen that supports cooking, dining, and social connection.
- Primary suite designed for comfort and privacy with easy access to amenities.
- Secondary bedrooms adaptable for family, guests, or office use.
- Covered porch and outdoor connection create inviting space for relaxing and entertaining. 32

Estimated U.S. Build Cost (USD)
Assuming typical U.S. residential construction costs of **$180–$260 per sq ft**, building this ~1,425 sq ft modern farmhouse could range between **$257,000 and $371,000 USD** — excluding land, permits, site preparation, and regional cost variations. 33

Why This Modern Farmhouse Plan Works
This modern farmhouse design balances classic character with thoughtful planning and everyday function. Its open living spaces, private suite, and inviting porch deliver a home that feels welcoming, efficient, and adaptable — perfect for today’s family living and comfortable daily routines.












