This spacious modern farmhouse offers approximately 3,422 square feet of heated living space with 4 to 5 bedrooms, three full bathrooms, and one half bathroom. Designed for larger families and flexible modern living, this home combines farmhouse charm with generous space, practical functionality, and stylish comfort across a two-story layout.

Beautiful Farmhouse Exterior with Modern Elegance
The exterior showcases classic farmhouse architecture with strong gable rooflines, clean vertical siding, large windows, and welcoming covered porch spaces. The design creates a timeless look that feels warm, modern, and highly inviting.
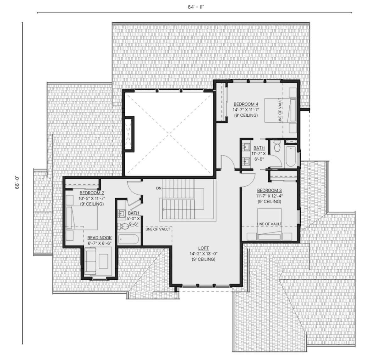
With dimensions of approximately 64 feet 11 inches wide and 66 feet deep, the home creates a strong visual presence while maintaining balanced proportions.

Spacious Two-Story Layout
This plan is designed as a two-story home, creating an efficient separation between the main living spaces and additional upstairs rooms.
The two-level design allows for larger gathering spaces downstairs while maintaining privacy and flexibility in the upper level.
Open-Concept Main Living Area
The center of the home features a spacious open-concept layout connecting the great room, kitchen, and dining area into one seamless family-focused space.
This arrangement creates better flow, improved natural light, and a more connected environment for everyday living and entertaining.
Large Kitchen with Island and Walk-In Pantry
The kitchen is designed for both beauty and efficiency, featuring:
- Large center island for prep and seating
- Walk-in pantry for extra storage
- Open connection to dining and living spaces
- Extensive cabinet and countertop space
This kitchen becomes the heart of the home, perfect for cooking, gathering, and entertaining.

Flexible 4–5 Bedroom Design
This home offers four primary bedrooms with the flexibility of a fifth bedroom or bonus room, allowing homeowners to customize the layout to fit their needs.
The extra room can easily function as a guest suite, office, media room, or playroom.
Private Main-Level Owner’s Suite
The primary suite is positioned on the main floor for privacy and convenience, creating a peaceful retreat separate from the secondary bedrooms.
The suite includes a spacious bedroom, luxury bathroom, and large walk-in closet for maximum comfort.
Three Full Bathrooms Plus Powder Room
With three full bathrooms and a half bath, this home provides excellent convenience for larger households and guests.
This layout reduces congestion and improves functionality throughout the home.
Upper-Level Bedrooms and Loft Space
The second floor includes additional bedrooms and flexible living space, making it ideal for children, guests, or extra entertainment space.
This separation helps create privacy between family zones while maintaining overall household connection.

Mudroom and Laundry Room for Everyday Functionality
A dedicated mudroom helps organize daily traffic from the garage into the home, while the laundry room adds convenience and improves household workflow.
These practical spaces help keep the main living areas clean and organized.
Attached 2-Car Garage
The home includes a 2-car garage, providing secure parking and valuable storage space for tools, equipment, and seasonal household items.
Direct garage access improves convenience for daily family living.
Covered Outdoor Living Areas
The home includes covered porch spaces that extend the living area outdoors, creating ideal spots for relaxing, entertaining, or outdoor dining.
These outdoor areas enhance the farmhouse lifestyle by blending indoor comfort with outdoor enjoyment.
Practical Everyday Features
This home includes several practical features designed for larger family living:
- Main-floor owner’s suite
- Walk-in pantry
- Mudroom entry
- Large kitchen island
- Laundry room
- Loft or bonus room option
- Attached garage access
These features improve comfort, organization, and everyday efficiency.
Construction and Structural Details
- Stories: 2
- Garage Size: 2-car
- Foundation options: Crawlspace, slab, or basement
- Framing: Wood construction
- Farmhouse-style gable roofing
These structural details offer flexibility in construction while ensuring durability and long-term value.

Dimensions and Key Details
- Total Living Area: 3,422 square feet
- Bedrooms: 4–5
- Bathrooms: 3.5
- Garage: 2-car
- Width: 64’11”
- Depth: 66′
- Stories: 2

Estimated Building Cost (USD)
- Low estimate: ~ $410,640 (assuming ~$120 per sq ft × 3,422 sq ft)
- High estimate: ~ $615,960 (assuming ~$180 per sq ft × 3,422 sq ft)

This modern farmhouse plan delivers the perfect balance of space, flexibility, and farmhouse beauty. With its main-level owner’s suite, flexible bedroom count, large open living areas, and upstairs expansion space, it offers an excellent long-term home solution for growing families.
“`0














