This compact yet stylish home offers approximately 1,498 square feet of heated living space with three bedrooms and two full bathrooms. The layout featured in
this modern farmhouse plan is designed for efficiency, comfort, and modern living, making it ideal for small to medium-sized families. 0

Charming Farmhouse Exterior
The exterior showcases a clean and inviting farmhouse style with simple lines and a welcoming presence. A covered front porch enhances curb appeal and provides a relaxing outdoor space.
The home’s proportions and balanced design make it suitable for both urban and rural settings.
Efficient Single-Level Layout
This home is designed as a one-story residence, with all 1,498 square feet of living space arranged on a single level. 1
This layout ensures easy accessibility, smooth movement, and practical everyday living without the need for stairs.

Open-Concept Living Area
The main living space features an open floor plan connecting the living room, dining area, and kitchen.
This design allows natural light to flow throughout the home, creating a bright and spacious feel despite the moderate size.
Modern Kitchen with Island
The kitchen is centrally located and designed for functionality. It includes:
- Kitchen island for prep and seating
- Open connection to living and dining spaces
- Efficient storage layout
This setup makes the kitchen a key gathering area in the home. 2
Three Comfortable Bedrooms
This home includes three bedrooms, offering flexibility for families, guests, or home office use. 3
The primary suite is positioned for privacy and comfort, separated from the secondary bedrooms.
Split-Bedroom Design
The layout features a split-bedroom arrangement, placing the primary suite on one side of the home and the other bedrooms on the opposite side.
This enhances privacy and makes the home more comfortable for families.
Two Full Bathrooms
The home includes two full bathrooms, conveniently located to serve both private and shared areas. 4
This ensures smooth daily routines for all occupants.
3-Car Garage with Large Space
A standout feature is the 3-car front-entry garage, offering approximately 801 square feet of space. 5
This provides ample room for vehicles, storage, or workshop use.

Functional Interior Features
This home includes practical elements designed to enhance daily living:
- Main-floor laundry
- Open kitchen and living layout
- Efficient room organization
These features improve both comfort and usability.
Outdoor Living Space
The front porch provides a welcoming outdoor area for relaxing or entertaining.
This space extends the living experience beyond the interior.
Construction and Structural Details
- Ceiling height: 9 feet
- Roof pitch: 8:12
- Framing: 2×4 wood construction
- Foundation options: Slab, crawlspace, or basement
These specifications ensure durability and flexibility in construction. 6

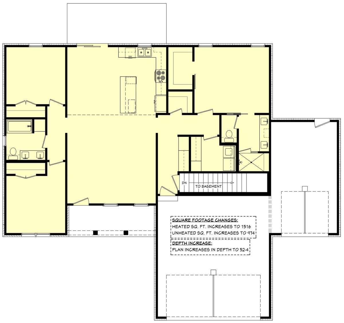
Dimensions and Key Details
- Total Living Area: 1,498 square feet
- Bedrooms: 3
- Bathrooms: 2
- Garage: 3-car (approx. 801 sq ft)
- Width: 64′
- Depth: 48′
- Stories: 1

Estimated Building Cost (USD)
- Low estimate: ~ $179,760 (assuming ~$120 per sq ft × 1,498 sq ft)
- High estimate: ~ $269,640 (assuming ~$180 per sq ft × 1,498 sq ft)

This modern farmhouse plan offers a perfect blend of efficiency, style, and practicality. With its open layout, three-bedroom design, and spacious garage, it is an excellent choice for building a comfortable and affordable family home.
“`7












