This spacious and beautifully crafted home offers approximately 3,061 square feet of heated living space with three bedrooms, three full bathrooms, and one half bathroom. The layout featured in
this craftsman house plan blends timeless architectural charm with a highly functional layout, making it ideal for families who want space, privacy, and elegant living. 0
Beautiful Craftsman Exterior with Multiple Gables
The exterior showcases classic Craftsman character with board-and-batten siding, layered gables, and covered porch spaces that create depth and curb appeal. The wide façade gives the home a grand presence while maintaining warm and welcoming details.

With dimensions of approximately 97 feet 2 inches wide and 87 feet 7 inches deep, this home is best suited for wider lots and open landscapes. 1
Large Single-Level Living Design
This home is designed as a one-story residence, with all 3,061 square feet of heated living space on the main level. This layout creates easy movement throughout the home and eliminates the need for stairs in everyday living. 2
The spacious floor plan makes every room feel open, connected, and comfortable.
Open Floor Plan for Family Living
The heart of the home features an open-concept design connecting the family room, kitchen, and breakfast nook.
The family room includes a fireplace, built-in cabinetry, and coffered ceilings, creating a warm and inviting space perfect for both relaxing and entertaining. 3
Spacious Kitchen with Large Island
The kitchen is designed for both functionality and style, offering:
- Large center island with breakfast bar
- Massive walk-in pantry
- Extensive cabinet and counter space
- Easy connection to dining and outdoor areas
This layout makes meal prep and entertaining effortless. 4
Private Split-Bedroom Layout
The home features a split-bedroom design, placing the owner’s suite on one side of the home and the secondary bedrooms on the opposite side.
This arrangement enhances privacy and provides a better living experience for families or guests. 5
Luxury Owner’s Suite
The primary suite is designed as a private retreat, featuring a tray ceiling and direct access to the rear terrace.
The ensuite bathroom includes:
- Dual separate vanities
- Garden tub
- Walk-in shower with seating
- Private toilet area
- Large walk-in closet with dual access points
This creates a luxurious and highly functional personal space. 6

Three Bedrooms and Three Full Bathrooms
This home includes three bedrooms, and each secondary bedroom comes with its own private full bathroom and walk-in closet.
This setup offers exceptional comfort for family members and guests while maintaining privacy. 7
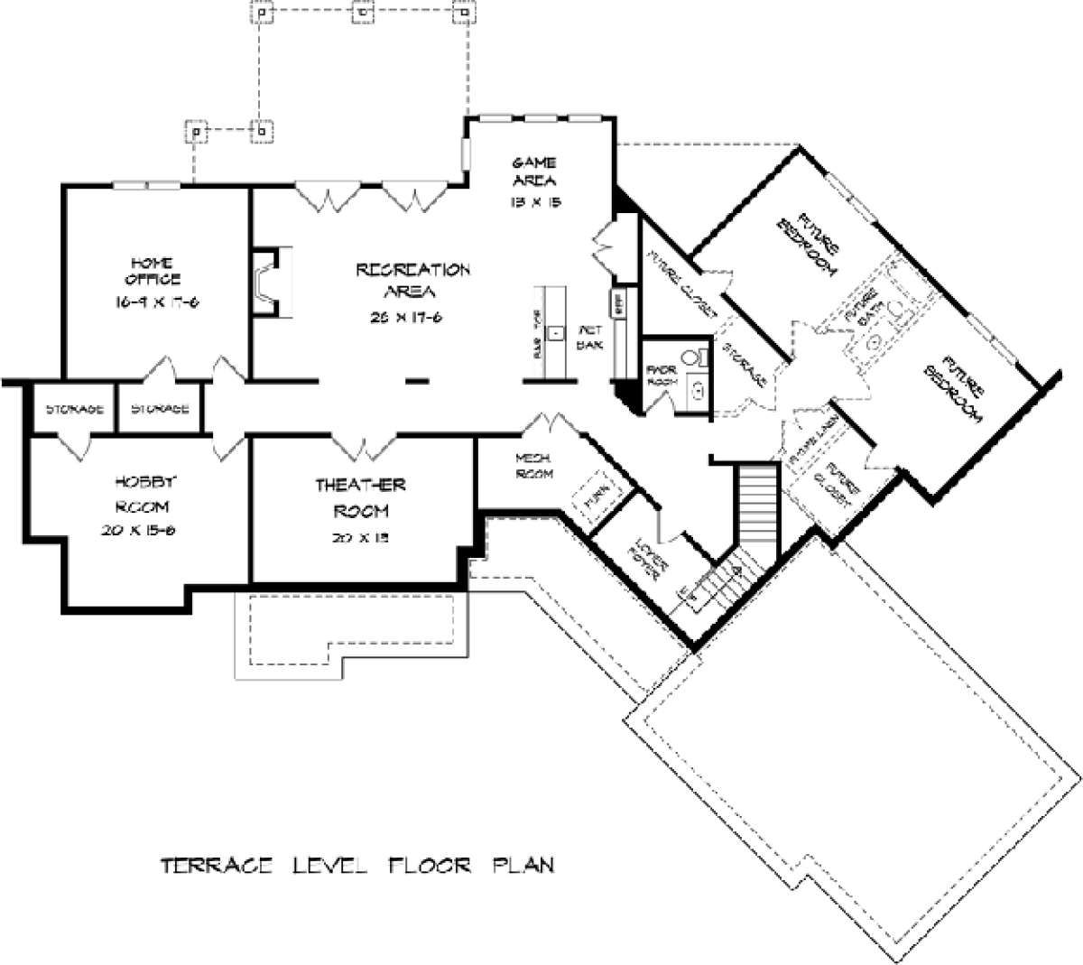
Bonus Room for Flexible Space
A standout feature is the optional bonus room above the garage, adding approximately 669 square feet of extra space. 8
This area can be used as:
- Guest suite
- Teenager’s private room
- Game room
- Home office
This flexibility makes the home adaptable for future needs.
3-Car Garage with Large Storage Area
The home includes a spacious 3-car front-entry garage with approximately 854 square feet of unheated space. 9
This provides room for vehicles, storage, workshop space, or outdoor equipment.
Double Covered Porch Areas
The design includes both a main front porch and a separate “friends’ entrance” porch, creating welcoming outdoor spaces and practical access points.
The rear terrace and grilling terrace extend the living space outdoors, making the home ideal for entertaining. 10
Functional Everyday Features
This home includes practical features designed for modern family living:
- Large laundry room
- Mudroom with bench and drop zone
- Walk-in pantry
- Built-in storage areas
- Optional basement foundation
These features improve organization, efficiency, and comfort throughout the home. 11

Construction and Structural Details
- Ceiling height: 10 feet (main floor)
- Roof pitch: 10:12
- Framing: 2×4 wood construction
- Foundation options: Slab, crawlspace, or walkout basement
These specifications provide structural durability and flexible building options. 12
Dimensions and Key Details
- Total Living Area: 3,061 square feet
- Bonus Room: 669 square feet
- Garage: 854 square feet
- Bedrooms: 3
- Bathrooms: 3.5
- Garage: 3-car
- Width: 97’2″
- Depth: 87’7″
- Stories: 1

Estimated Building Cost (USD)
- Low estimate: ~ $367,320 (assuming ~$120 per sq ft × 3,061 sq ft)
- High estimate: ~ $550,980 (assuming ~$180 per sq ft × 3,061 sq ft)
This craftsman house plan offers an impressive balance of luxury, practicality, and timeless design. With its spacious single-level layout, bonus room, and private bedroom arrangement, it is an excellent choice for building a refined and comfortable forever home.
“`13












