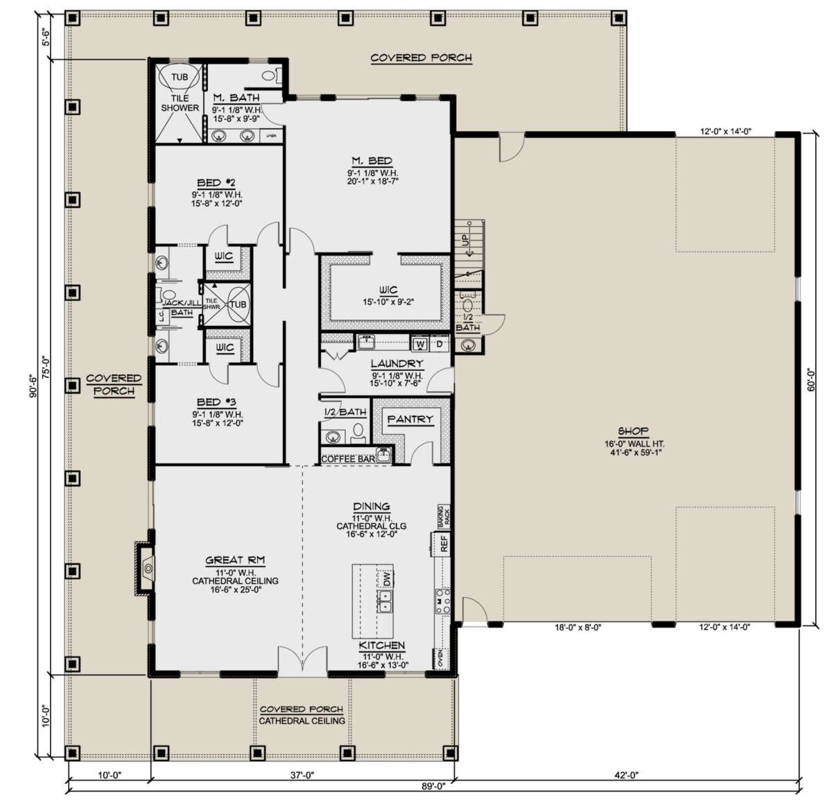
This impressive barndominium plan delivers about 2,693 sq ft of well-designed living space with a blend of open areas, comfortable bedrooms, and massive garage/workshop space. Featuring 3 bedrooms, 2 full bathrooms, plus 2 half baths, and an attached 4-car garage, it’s built for families who love open interiors, outdoor-friendly living, and plenty of room for vehicles, hobbies, or storage in a flexible barn-style layout. 0

Curb Appeal & Exterior Character
The exterior showcases classic barndominium form with bold rooflines, expansive facades, and a wrap-around porch that enhances both curb appeal and versatility. 1 At approximately 89′ wide × 90′-6″ deep, the plan sits comfortably on a broad lot, and the cathedral-ceiling front covered porch immediately invites outdoor living and a sense of welcome. 2 Distinctive accents like wood pillars and stone detailing give this plan depth, texture, and a warm, rustic charm that feels right at home in rural or semi-rural settings. 3

Outdoor Living & Porch Space
Outdoor living is fundamental to this design. 4 The front and rear porches wrap around the home, creating generous covered space for lounging, dining, or watching sunsets with family and friends. 5 Whether enjoying morning coffee on the front porch or grilling on the rear covered patio, there’s plenty of room to spread out and connect with nature. 6 A wrap-around porch also reinforces indoor-outdoor flow and makes this home perfect for seasonal living. 7

Grand Open Living Area
Inside, you’re greeted by a large open great room that forms the heart of the home. 8 Soaring ceiling heights lend spaciousness and drama, while large windows fill the space with natural light and views of the surrounding landscape. 9 The great room flows seamlessly into the dining area and kitchen — a perfect setup for entertaining, family gatherings, or everyday living that stays connected. 10
A warming fireplace anchors the space, creating a cozy focal point for evenings spent with loved ones. 11

Kitchen Designed for Everyday Life
The kitchen is thoughtfully designed to be both practical and sociable. 12 A generous island provides ample workspace and casual seating, while surrounding counters and cabinets support organization and meal prep. 13 Nearby, a large walk-in food pantry keeps supplies tidy and accessible, and easy access to outdoor porch space invites alfresco dining on pleasant days. 14

Primary Suite — Private & Peaceful
The primary bedroom suite is tucked away for privacy and comfort. 15 With access to the porch, this space feels open and inviting, perfect for morning relaxation or quiet evenings. 16 The attached ensuite bathroom is elegantly appointed with dual vanities, a separate shower and tub (depending on build options), and thoughtful storage that keeps daily routines comfortable. 17 A large walk-in closet provides plenty of space to organize clothing and personal items without clutter. 18

Secondary Bedrooms & Flexibility
Two additional bedrooms are bright and adaptable — ideal for family members, guests, or even a home office or craft room. 19 These rooms share a Jack-and-Jill style bathroom that promotes convenience and flow while maintaining privacy. 20 Each bedroom offers generous closet space and plenty of light, helping them feel welcoming and comfortable. 21

Half Baths & Mudroom Convenience
In addition to the full bathrooms, the plan includes two half baths — one in the main living area for guests and another in the garage for added convenience when working outside or returning from a project. 22 Entry from the huge four-car garage leads through a mudroom-style zone with space for coats, shoes, and gear, helping keep the main living spaces neat. 23

Garage & Workshop Space
The expansive attached garage is a standout feature of this barndominium. 24 With room for up to four vehicles and additional storage or workshop capacity, it’s ideal for car enthusiasts, hobbyists, or those needing serious space for equipment and projects. 25 Front and rear garage entry points add practicality, and one bay is perfectly sized for RV storage or larger vehicles. 26

Indoor-Outdoor Connection & Natural Light
Throughout the home, large windows and porch access doors bring in natural light and reinforce the connection between indoor spaces and the outdoors. 27 This design helps make rooms feel open, bright, and inviting — whether you’re inside working, relaxing, or entertaining. 28

Dimensions & Key Features
- Total Heated Area: ~2,693 sq ft 29
- Bedrooms: 3 30
- Bathrooms: 2 full + 2 half 31
- Stories: Single level 32
- Garage: 4-car attached (~2,548 sq ft unheated) 33
- Width: ~89′ 34
- Depth: ~90′-6″ 35
- Porch Space: Wrap-around covered porches included 36
- Ceiling Height: ~9 ft main areas 37

Lifestyle Highlights
- Expansive open living zone perfect for family interaction and entertaining.
- Generous kitchen with island workspace and walk-in pantry for daily convenience.
- Primary suite that feels like a private retreat with porch access and ample storage.
- Secondary bedrooms adaptable for family, guests, or flexible home use.
- Two half baths that enhance comfort and convenience for guests and workshop days.
- Massive four-car garage/workshop space ready for projects, parking, and storage.
- Wrap-around porches that expand living space and encourage outdoor enjoyment. 38
Estimated U.S. Build Cost
(USD)
Assuming typical U.S. barndominium construction costs of around **$140–$220 per sq ft**, building this ~2,693 sq ft plan could range between **$378,000 and $592,000 USD** (excluding land, permits, and site prep, and depending on finish level). 39

Why This Barndominium Plan Works
This barndominium design combines bold exterior character with flexible, highly functional interiors that fit a variety of lifestyles. Its large central living spaces, generous garage/workshop capacity, and thoughtful bedroom placement make it ideal for families, hobbyists, or anyone wanting room to live, work, and play. With strong indoor-outdoor connections and classic porch appeal, it’s a home that feels both inviting and adaptable to your daily routines.













