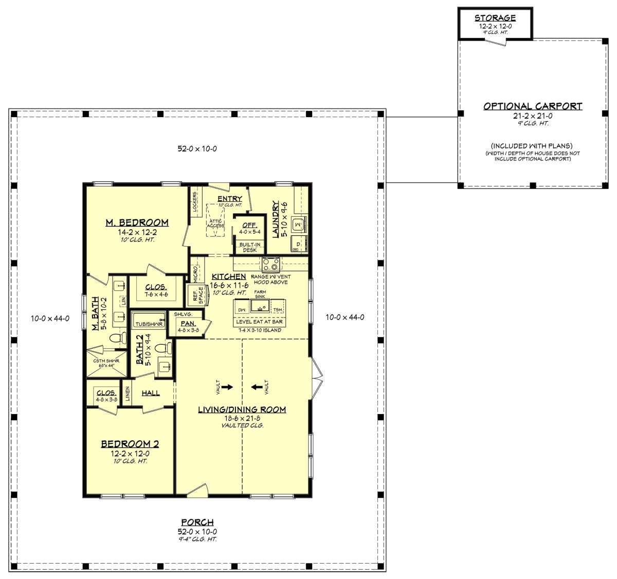
This attractive barndominium plan offers about 1,408 sq ft of heated living space designed to balance rustic charm with modern comfort. With 2 bedrooms and 2 full bathrooms, it’s a smart, efficient layout that feels open and welcoming while keeping everyday life simple and functional. The design blends country-style appeal with practical interior flow, making it ideal as a full-time residence, weekend retreat, or flexible countryside living space. 0

Curb Appeal & Exterior Character
The exterior presents classic barndominium lines with a bold roof and simple, clean siding that give the home a rustic yet refined presence. 1 With overall dimensions of roughly 52′ wide × 64′ deep, this plan fits comfortably on a range of lot types — from rural acreage to a more private suburban setting. 2 A generous covered porch wraps part of the front and side, creating a relaxed outdoor space that sets a welcoming tone from the moment you arrive. 3

Outdoor Living & Porch Spaces
The covered front and side porches offer meaningful outdoor living that expands your usable space without adding complexity. 4 Whether you’re sipping morning coffee, unwinding in the evening breeze, or hosting casual gatherings, these porch areas become extensions of your indoor life. 5 Large openings visually connect the interior to the yard, enhancing the sense of openness and making it easy to enjoy fresh air year-round. 6

Open Great Room & Central Living
Step inside to a spacious open great room that serves as the heart of the home. 7 This central living area flows seamlessly into the dining and kitchen zones, creating an expansive feel that’s ideal for both everyday comfort and entertaining friends or family. 8 Large windows help fill the space with natural light, while the open layout ensures a visual connection across the main spaces. 9
The great room’s layout encourages relaxed living — you can easily arrange seating for conversation, TV nights, or gatherings around a focal point like a fireplace or media center. 10

Kitchen & Dining — Functional & Friendly
The kitchen is thoughtfully integrated into the open plan, offering a comfortable space for meal preparation and casual dining. 11 With generous counters and cabinetry, there’s plenty of room for storage and organization. 12 Its proximity to the dining area makes family meals and social gatherings feel natural and connected, while easy access to the porch makes outdoor dining effortless on warm days. 13

Primary Suite — Private & Comfortable
The primary bedroom suite is positioned for privacy and peace, offering a retreat from the main living zone. 14 Well-placed windows bring in natural light and views of the surrounding property. 15 The attached full bathroom serves as a private ensuite with practical fixtures and storage space, while a nearby closet keeps clothing and essentials organized. 16

Second Bedroom & Guest Comfort
The second bedroom offers flexibility — ideal for guests, children, or even a home office or hobby room. 17 Its layout and natural light help it feel welcoming and comfortable without sacrificing privacy. 18 A second full bathroom located nearby is easily accessible from the bedroom and main living areas, ensuring convenience for residents and visitors alike. 19

Utility & Practical Spaces
In addition to the living and sleeping areas, this plan includes essential functional spaces that support everyday ease. 20 A dedicated laundry area keeps chores out of sight yet close at hand, and interior transitions from room to room are smooth and intuitive. 21 Mudroom-style space off the porch helps keep outdoor gear and shoes organized before entering the main living areas. 22

Indoor-Outdoor Flow & Natural Light
Strategically placed windows throughout the home flood the interior with natural light, making rooms feel larger and more inviting. 23 The visual and physical connection between interior spaces and porch areas reinforces a lifestyle that embraces both indoor comfort and outdoor relaxation. 24

Dimensions & Key Features
- Total Heated Area: ~1,408 sq ft 25
- Bedrooms: 2 26
- Bathrooms: 2 full 27
- Stories: Single level 28
- Porch Areas: Covered front and side porches 29
- Width: ~52′ 30
- Depth: ~64′ 31
- Ceiling Heights: ~10 ft main areas 32

Lifestyle Highlights
- Open central living area that supports both everyday comfort and entertaining.
- Kitchen positioned for practical daily use and smooth indoor-outdoor flow.
- Primary suite that serves as a private, peaceful retreat.
- Second bedroom offering flexibility for guests, office, or hobby needs.
- Covered porch areas that expand your usable living space and embrace outdoor enjoyment.
- Natural light and sightlines that enhance comfort and connection throughout the home. 33

Estimated U.S. Build Cost (USD)
Assuming typical U.S. barndominium construction costs of about **$140–$220 per sq ft**, building this ~1,408 sq ft home could range between **$197,000 and $310,000 USD** (excluding land, permits, and site preparation, and depending on finish level and regional costs). 34

Why This Barndominium Plan Works
This barndominium plan combines the best of rustic charm and practical living in a compact yet flexible layout. It’s ideal for those who appreciate open living spaces, comfortable bedroom zones, and meaningful connections to outdoor areas. With its inviting porch spaces and efficient flow, it’s a home that feels both welcoming and adaptable to a variety of lifestyles — from a relaxed family residence to a weekend getaway or long-term retreat.












