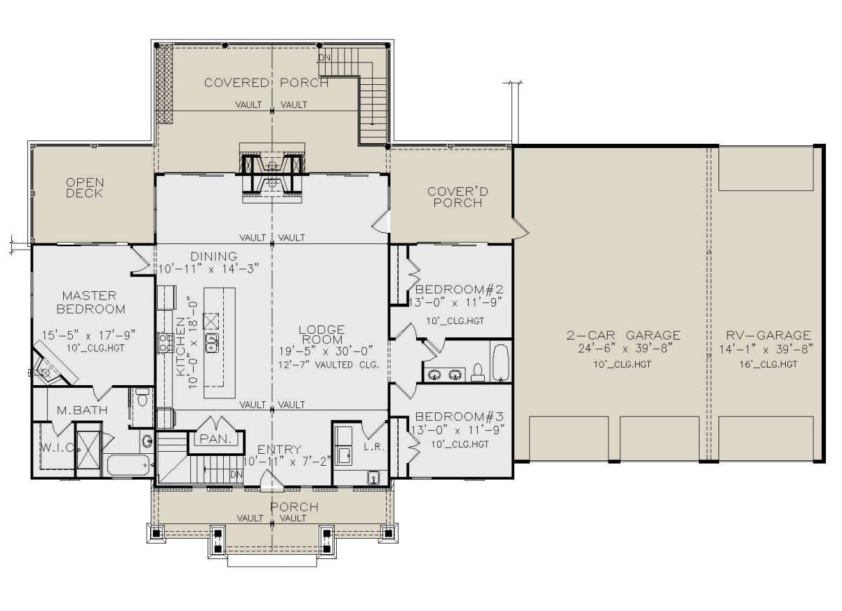
This spacious barndominium-style home offers approximately 2,142 square feet of heated living space with three bedrooms and two full bathrooms. Designed for durability, open living, and flexible functionality, this home blends rustic barn-inspired character with modern comfort, making it ideal for families, rural homeowners, or those looking for a practical lifestyle-focused design.
Bold Barndominium Exterior Design
The exterior showcases classic barn-style architecture with a strong metal roof profile, clean vertical siding, and wide structural lines that create a bold and durable appearance. The design emphasizes simplicity, strength, and low-maintenance living.
Its large footprint makes it especially suitable for wide lots, rural land, or open countryside settings where the design can fully stand out.

Large Single-Level Living Layout
This plan is designed as a one-story residence, placing all 2,142 square feet of living space on one level for smooth movement and practical everyday use.
Single-level living improves accessibility, simplifies maintenance, and creates easy transitions between living and sleeping areas.
Wide Open-Concept Main Living Space
The heart of the home features an open-concept floor plan connecting the living room, kitchen, and dining area into one large central space.
This open arrangement creates a spacious atmosphere, improves family interaction, and allows natural light to move freely throughout the interior.

Modern Kitchen with Large Island
The kitchen is built for both functionality and entertaining, featuring:
- Large center island for food prep and seating
- Open connection to dining and living spaces
- Extensive cabinet storage
- Efficient workflow for daily cooking
The open kitchen design keeps everyone connected while preparing meals or hosting gatherings.
Three Spacious Bedrooms
This home includes three bedrooms, offering comfortable space for families, guests, or flexible room use.
The bedroom arrangement is designed to maximize privacy while maintaining easy access to shared living areas.
Private Owner’s Suite
The primary suite serves as a comfortable private retreat, positioned separately from the other bedrooms for better privacy.
The suite includes a private bathroom and spacious closet storage, creating a relaxing and practical personal space.

Two Full Bathrooms
The home includes two full bathrooms, strategically positioned to support both the owner’s suite and secondary bedrooms.
This setup improves convenience and helps daily routines run smoothly for families or visiting guests.
Split-Bedroom Design
The split-bedroom layout separates the owner’s suite from the additional bedrooms, creating quieter sleeping spaces and improving privacy throughout the home.
This arrangement is ideal for family living or hosting overnight guests.
Large Garage and Workshop Potential
A major highlight of barndominium living is the flexibility for oversized garage or workshop space. This plan allows room for vehicle storage, tools, hobby work, or business use depending on the homeowner’s needs.
This makes the home especially practical for rural lifestyles or hands-on homeowners.

Outdoor Living Opportunities
Covered porch spaces extend the living area outdoors, creating ideal places for relaxing, grilling, or enjoying outdoor views.
These outdoor areas add valuable usable space while enhancing the home’s rustic lifestyle appeal.
Practical Everyday Features
This home includes several smart design features:
- Main-floor laundry room
- Large kitchen island
- Open-concept living
- Split-bedroom privacy
- Garage/workshop flexibility
- Efficient room flow
These features improve organization, comfort, and long-term functionality.

Construction and Structural Details
- Metal roof system
- Durable exterior siding
- Wood framing construction
- Foundation options: Slab or crawlspace
These structural details provide durability, lower maintenance, and long-term value.
Dimensions and Key Details
- Total Living Area: 2,142 square feet
- Bedrooms: 3
- Bathrooms: 2
- Garage: Large attached garage/workshop potential
- Stories: 1
Estimated Building Cost (USD)
- Low estimate: ~ $257,040 (assuming ~$120 per sq ft × 2,142 sq ft)
- High estimate: ~ $385,560 (assuming ~$180 per sq ft × 2,142 sq ft)

This barndominium house plan offers the perfect blend of durability, spacious living, and flexible functionality. With its open floor plan, private bedroom layout, and workshop-friendly design, it provides an excellent home solution for modern rural and family living.












