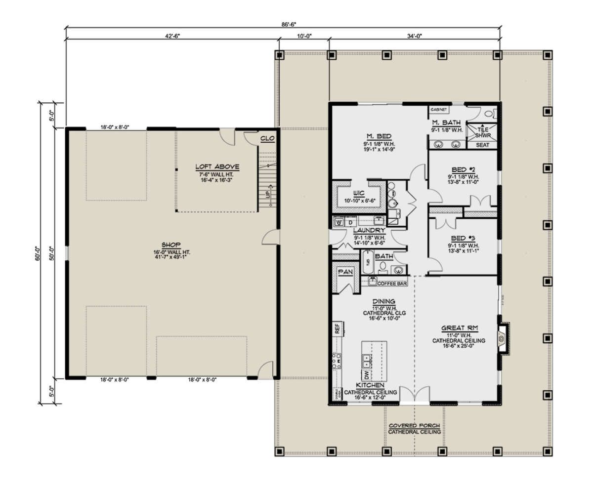
This functional and modern home offers approximately 2,050 square feet of heated living space with three bedrooms and two full bathrooms. The layout featured in
this barndominium house plan blends rustic barn-inspired design with open-concept living, making it ideal for homeowners who want space, durability, and flexibility. Barndominium homes are known for their open layouts, large garages, and practical design features. 0

Modern Barn-Style Exterior
The exterior showcases a bold barn-style appearance with clean lines and a wide structure. This design emphasizes simplicity, durability, and a strong visual presence.
The overall shape and structure make it ideal for rural or semi-rural settings while still fitting comfortably in modern developments.
Spacious Single-Level Layout
This home is designed as a one-story residence, with all 2,050 square feet of living space arranged on a single level.

This layout ensures easy accessibility, smooth movement between rooms, and convenient everyday living.
Open-Concept Living Area
The heart of the home features a large open floor plan that connects the living room, dining area, and kitchen.
This design creates a bright and airy atmosphere, perfect for entertaining and family gatherings.
Functional Kitchen with Island
The kitchen is centrally positioned and designed for both efficiency and style. It includes:
- Large kitchen island
- Open connection to living and dining areas
- Ample counter and storage space
This makes the kitchen a central hub of the home.
Three Comfortable Bedrooms
This home includes three bedrooms, offering flexibility for families, guests, or workspace needs.
The primary suite is designed as a private retreat with convenient access to key areas of the home.
Two Full Bathrooms
The design includes two full bathrooms, ensuring comfort and convenience for both residents and guests.
This setup supports smooth daily routines in a busy household.
Split-Bedroom Layout
The plan features a split-bedroom arrangement, placing the primary suite separate from the secondary bedrooms.
This enhances privacy and overall comfort.

Large Garage / Workshop Space
A key feature of barndominium homes is the inclusion of large garage or workshop areas, often providing significant additional space beyond the main living area. 1
This makes the home ideal for storage, hobbies, or workspace needs.
Outdoor Living Potential
The design allows for outdoor features such as porches or patios, extending the living area beyond the interior.
These spaces are perfect for relaxing, entertaining, or enjoying the surrounding environment.

Functional Interior Features
This home includes practical elements that enhance everyday living:
- Open and flexible layout
- Main-floor living convenience
- Efficient room arrangement
These features improve comfort and usability throughout the home.
Barndominium Style Advantages
Barndominiums are known for combining strong structural design with open spaces and flexible layouts. They often include large garages, workshop areas, and open interiors that maximize usability. 2
This makes them a practical and modern housing option.

Dimensions and Key Details
- Total Living Area: 2,050 square feet
- Bedrooms: 3
- Bathrooms: 2
- Stories: 1

Estimated Building Cost (USD)
- Low estimate: ~ $246,000 (assuming ~$120 per sq ft × 2,050 sq ft)
- High estimate: ~ $369,000 (assuming ~$180 per sq ft × 2,050 sq ft)

This barndominium house plan offers a strong balance of space, practicality, and modern style. With its open layout, three-bedroom design, and flexible garage/workshop potential, it is an excellent choice for building a durable and highly functional home.
“`3












