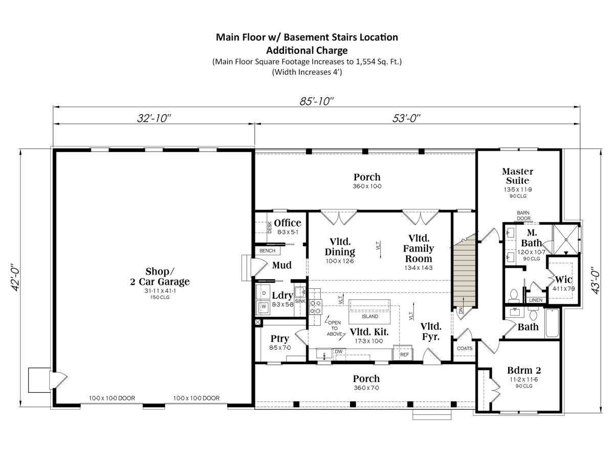
This stylish barndominium home offers approximately 1,454 square feet of heated living space with two bedrooms and two full bathrooms. Designed as a single-story residence, the plan blends rustic barn-inspired character with modern living convenience. With its open layout, spacious garage/shop area, and efficient use of space, this home is ideal for homeowners seeking a balance between functionality and distinctive architectural style. 0

Exterior Design
The exterior reflects the signature appeal of barndominium architecture, combining the look of a traditional barn with residential comfort. Clean lines, simple roof forms, and durable materials give the home a practical yet attractive appearance.

Barndominiums are known for their versatility and often feature large garage or workshop areas integrated into the structure, making them especially appealing for homeowners who need additional storage or workspace. 1
Interior Layout Overview
The entire 1,454 square feet of living space is arranged on one level, offering easy accessibility and a smooth flow between rooms. The layout emphasizes open living areas while maintaining comfortable separation between private and shared spaces. 2

The central portion of the home is dedicated to the main living areas, while the bedrooms are positioned to provide privacy and quiet. This design approach ensures both functionality and comfort in everyday living.

Main Living Area
The open-concept living area serves as the heart of the home. The living room, kitchen, and dining space are seamlessly connected, creating a spacious environment that supports both relaxation and entertaining.


The kitchen is designed for efficiency and practicality, typically featuring ample counter space, cabinetry, and a central island. This layout allows homeowners to cook while staying connected to activities in the living and dining areas.

Bedrooms
This home includes two bedrooms, making it ideal for couples, small families, or those seeking a flexible layout. The primary suite is designed as a comfortable retreat, offering privacy and convenient access to a private bathroom.

The second bedroom is located nearby and can serve as a guest room, home office, or hobby space depending on the homeowner’s needs.

Bathrooms
The design includes two full bathrooms. The primary bathroom is connected to the owner’s suite, while the second bathroom is positioned for easy access from the secondary bedroom and main living areas. 3

Functional Features
- Single-story design: All living spaces are located on one level.
- Open floor plan: Enhances flow between kitchen, dining, and living areas.
- Two-bedroom layout: Ideal for smaller households or flexible living needs.
- Integrated garage/workshop: Provides additional functional space typical of barndominiums.
- Efficient design: Maximizes usability within a moderate footprint.

Garage and Additional Space
A defining feature of this barndominium plan is its spacious garage or workshop area, which is often significantly larger than those found in traditional homes. This space can be used for vehicle storage, tools, hobbies, or even a home-based business, adding versatility to the design.

Dimensions and Structural Details
The home is designed as a one-story structure with a total heated area of 1,454 square feet. Barndominiums are commonly constructed using either traditional wood framing or metal building systems, offering flexibility in construction methods depending on preferences and location. 4

This type of design can typically be built on a variety of foundation types, including slab or crawlspace, depending on site conditions and builder requirements.



Estimated Building Cost (USD)
Construction costs vary depending on materials, labor, and location. Using common mid-range estimates:
- Low estimate: ~ $174,480 (assuming ~$120 per sq ft × 1,454 sq ft)
- High estimate: ~ $261,720 (assuming ~$180 per sq ft × 1,454 sq ft)

This barndominium house plan offers a unique blend of rustic charm and modern efficiency. Its open layout, practical bedroom arrangement, and integrated workspace make it a highly functional and appealing choice for homeowners seeking something different from traditional home designs.

“`5











