This cozy yet functional cabin-style home offers approximately 1,403 square feet of heated living space with three bedrooms, two full bathrooms, and one half bathroom. Designed as a two-story residence, the plan combines rustic charm with a smart layout that maximizes space and comfort. With its compact footprint and efficient vertical design, this home is ideal for vacation living, small families, or those seeking a warm and inviting retreat. 0

Exterior Design
The exterior reflects classic cabin architecture, often characterized by simple lines, natural materials, and a warm, rustic appearance. Its modest footprint—approximately 33 feet wide and 46 feet deep—makes it suitable for smaller lots, wooded settings, or vacation properties. 1
The vertical design of the home allows it to maintain a compact base while still offering generous interior living space. This approach gives the home a charming, lodge-like presence that blends well with natural surroundings.

Interior Layout Overview
The home’s 1,403 square feet is distributed across two levels, creating a balanced separation between shared living spaces and private sleeping areas. The main floor typically contains the primary living zones, while the upper level houses additional bedrooms.
This two-story configuration allows the home to feel spacious without requiring a large footprint, making it both efficient and practical for a variety of lifestyles. 2
Main Living Area
The main level serves as the central gathering space of the home. The living room, dining area, and kitchen are arranged to create a comfortable and connected environment for daily activities and entertaining.
The kitchen is designed with efficiency in mind, offering sufficient counter space and cabinetry for meal preparation. Its open connection to the living area ensures that family members and guests remain engaged and connected.
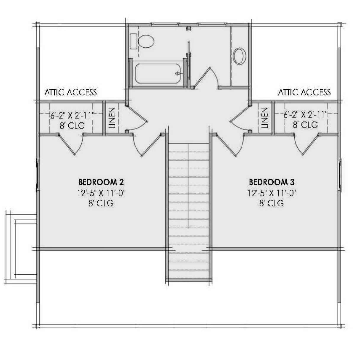
Bedrooms
This cabin plan includes three bedrooms. The primary bedroom is typically located on the main floor, providing convenience and easy accessibility.
The remaining bedrooms are positioned on the upper level, creating a private and quiet sleeping area. This layout is ideal for families, as it separates personal spaces from the main living areas while maintaining a cohesive home design. 3

Bathrooms
The home features two full bathrooms along with a half bathroom. The primary bathroom is associated with the main bedroom, while the additional bathrooms serve the remaining bedrooms and shared living areas.
This arrangement ensures convenience for both residents and guests, especially in a multi-level home where accessibility is important.

Functional Features
- Two-story layout: Maximizes living space within a compact footprint.
- Main-floor primary bedroom: Adds convenience and accessibility. 4
- Open living area: Encourages interaction between kitchen, dining, and living spaces.
- Three-bedroom design: Suitable for families or guest accommodations.
- Efficient footprint: Ideal for smaller lots or vacation properties.

Dimensions and Structural Details
The home measures approximately 33 feet in width and 46 feet in depth, with a total heated area of 1,403 square feet. It is designed as a two-story structure with no attached garage, maintaining a simple and efficient layout. 5
Cabin homes like this are typically constructed using wood framing and can be adapted to different foundation types such as slab, crawlspace, or basement depending on site conditions.

Estimated Building Cost (USD)
Construction costs vary based on location, materials, and labor rates. Using common mid-range estimates:
- Low estimate: ~ $168,360 (assuming ~$120 per sq ft × 1,403 sq ft)
- High estimate: ~ $252,540 (assuming ~$180 per sq ft × 1,403 sq ft)


This cabin house plan offers a perfect blend of rustic charm and efficient design. Its two-story layout, comfortable bedroom arrangement, and open living spaces make it a practical and appealing choice for those seeking a cozy yet functional home.
“`6












