This compact and thoughtfully designed traditional home offers approximately 1,011 square feet of heated living space with two bedrooms and two full bathrooms. Designed as a single-story residence, this plan focuses on simplicity, efficiency, and comfortable everyday living. Its narrow footprint and practical layout make it ideal for small families, couples, or those looking for a downsized yet functional home. 0

Exterior Design
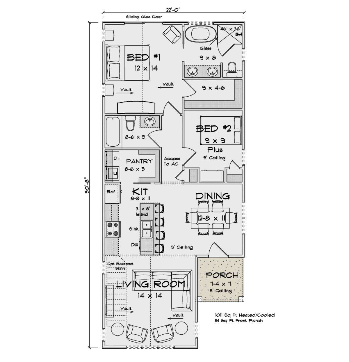
The exterior reflects classic traditional styling with a clean and simple structure. The home features a compact footprint of approximately 22 feet wide and 50 feet 8 inches deep, making it especially suitable for narrow lots or urban settings. 1
Its straightforward design helps keep construction costs lower while maintaining a balanced and visually appealing appearance. The modest proportions allow it to blend seamlessly into a variety of neighborhoods.

Interior Layout Overview
All 1,011 square feet of living space is arranged on one level, ensuring easy accessibility and efficient use of space. The layout is designed to maximize functionality, with minimal wasted areas and a clear separation between shared and private spaces. 2
The central living area acts as the hub of the home, connecting the main functional zones while maintaining a comfortable flow.
Main Living Area
The living room provides a cozy yet functional space for relaxation and everyday activities. Its central placement allows easy access to both the kitchen and bedrooms, enhancing convenience.
Despite the home’s compact size, the layout ensures a comfortable and open feel, making the space suitable for both quiet living and small gatherings.
Kitchen and Dining
The kitchen is designed with efficiency in mind, offering essential counter space and cabinetry for daily use. Its proximity to the living area supports a cohesive and practical layout.
An adjacent dining area provides a comfortable place for meals, maintaining a close connection to both the kitchen and living space.

Bedrooms
This home includes two bedrooms, making it suitable for a small household or flexible living arrangements. Each bedroom is positioned to provide privacy while remaining easily accessible from the main living area.
The layout allows one bedroom to serve as a primary retreat, while the second can function as a guest room, office, or multipurpose space.
Bathrooms
The design includes two full bathrooms, an uncommon but highly convenient feature for a home of this size. This setup enhances comfort for residents and guests, supporting modern living needs. 3

Functional Features
- Single-story layout: All living areas are on one level for accessibility.

- Two-bedroom design: Ideal for small families or downsizing.
- Two full bathrooms: Adds convenience and flexibility. 4
- Compact footprint: Perfect for narrow or smaller lots. 5
- Efficient layout: Maximizes usable space within a modest size.
- No garage: Keeps the design

- simple and cost-effective.
Garage and Additional Space
This home does not include a garage, helping to maintain affordability and a smaller footprint. However, the lot configuration allows for the addition of a detached garage, carport, or storage structure if needed.

Dimensions and Structural Details
The home measures approximately 22 feet in width and 50 feet 8 inches in depth, making it especially suitable for long, narrow plots of land. 6

It is typically constructed using standard wood framing techniques and supports various foundation options depending on site conditions and local building requirements.
Estimated Building Cost (USD)
Construction costs vary depending on materials, labor, and location. Using common mid-range estimates:
- Low estimate: ~ $121,320 (assuming ~$120 per sq ft × 1,011 sq ft)
- High estimate: ~ $181,980 (assuming ~$180 per sq ft × 1,011 sq ft)


This traditional house plan delivers a smart balance of simplicity, efficiency, and comfort. Its compact size, dual-bathroom advantage, and flexible layout make it an excellent choice for homeowners seeking an affordable and practical single-story home.

“`7











