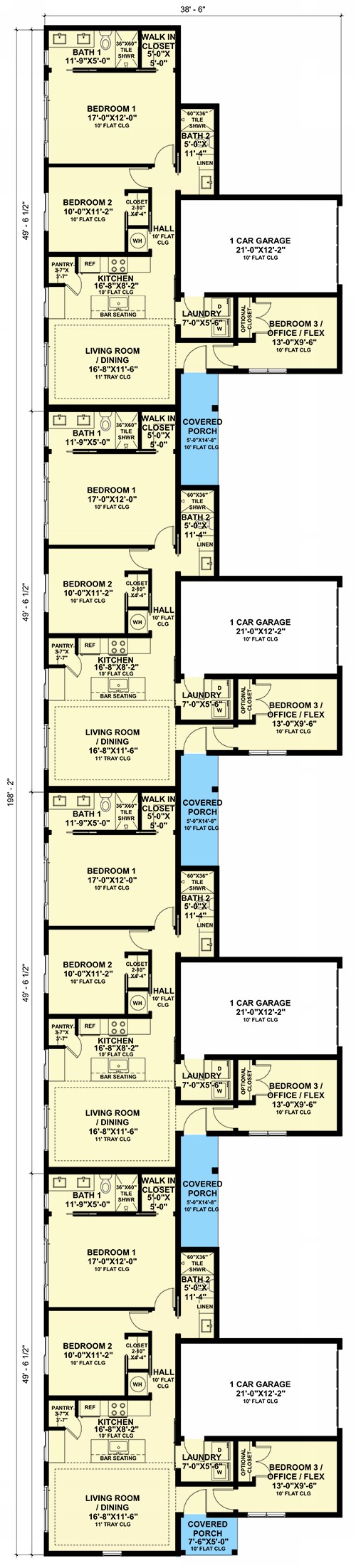
This multi-unit plan delivers a total of about 4,640 sq ft of heated space, divided into 4 separate units. Each unit offers roughly 1,160 sq ft, with 2–3 bedrooms, 2 full baths, and an attached 1-car garage (~254 sq ft) — a compact yet versatile design ideal for rentals, multi-family living, or extended family setups. 0
Overall Building & Layout Concept
The building is designed as a one-story fourplex, meaning all four units sit on the same level. 1 The footprint allows each unit to have its own entrance and private garage, giving residents independent and self-contained living spaces even while sharing the same structure. 0

This configuration lends itself well to rental investment, co-living, or multi-generational households — with each unit essentially functioning like a small standalone home. 1
Individual Unit Breakdown: What You Get Inside
Each of the four units includes:
- Living Area: ~1,160 sq ft including all heated space. 2
- Bedrooms: 2 to 3 — giving flexibility depending on unit layout. 3
- Bathrooms: 2 full baths — good for privacy and convenience. 4
- Garage: A 1-car attached garage (~254 sq ft), ideal for parking or extra storage. 5
- Porch / Entry: A modest front porch entry for each unit provides a welcoming entry point. 6
From the layout plans, each unit’s dimension is roughly 38′ wide × 49′ deep, with a modest building height (~20′) — making it efficient and compact while retaining comfortable living standards. 1
Flex Room & Adaptable Living — Versatility Built In
One of the key features of the design is the inclusion of a “flex room” in each unit. This space can adapt to varying needs: a home office, extra bedroom, guest room, hobby room — depending on your household requirements. 7

Such flexibility makes the units well-suited to changing needs over time: small families, roommates, guests, work-from-home setups, or renters. The design balances compactness with adaptability. 2
Practical Advantages — Privacy, Independence & Ease of Living
- Private living per unit: Each unit has its own entrance and garage, ensuring independence and privacy despite being part of a shared structure.
- Efficient land use: Building four units under one roof can be more land-efficient than building four separate houses—ideal for investors or properties where maximizing density matters.
- Maintenance & cost efficiency: Shared external structure but separate internal living can reduce per-unit cost compared to separate homes while preserving privacy and autonomy.
- Rental or multi-family potential: Great for generating rental income; leasing all four units multiplies return, or living in one while renting the others helps offset costs. 3
- Single-story convenience: With all units on a single level, the plan avoids stairs — beneficial for accessibility, families with young children, or older occupants. 4
Specs Summary
- Total Heated Area (All Units): ~4,640 sq ft 8
- Units: 4 independent units 9
- Per Unit Living Area: ~1,160 sq ft 2
- Bedrooms (per unit): 2–3 3
- Bathrooms (per unit): 2 full baths 4
- Garage (per unit): 1-car attached (~254 sq ft) 5
- Footprint per Unit (approx): 38′ wide × 49′ deep; building height ~20′ 1
- Flex Room: Yes — adaptable space for varied uses depending on needs 7

Who This Plan Works For — Best Use Cases & Lifestyle Fit
This fourplex plan is ideal if you are:
- Looking for an investment property — building once and renting out four units for maximum return.
- Wanting multi-family living — perhaps you, extended family, or friends occupy different units, while sharing a single building footprint.
- Needing compact, efficient units — good for smaller families, couples, roommates, or individuals.
- Looking for flexibility — flex rooms make it easy to adapt unit use (office, guest room, kids’ room, etc.).
- Prioritizing convenience and accessibility — single-story units, attached garages, and private entries make everyday living simpler.
Estimated U.S. Build Cost (USD)
Assuming a mid-level finish and typical U.S. construction costs around $140–$180 per sq ft (note: multifamily or compact units often cost slightly less per sq ft than larger single-family homes), you might expect a rough build cost range of **$650,000–$835,000 USD** (for the full 4-unit building, excluding land, site prep, permits, infrastructure, and local variations). Because this plan emphasizes efficiency and compact design, it could lean toward the lower end of that range depending on finishes and local build costs. 10
Why This Fourplex Plan Is Worth Considering — Balance of Privacy, Efficiency & Flexibility
This one-story fourplex with flex rooms offers a smart balance: each unit feels like a small house with its own garage and private living, yet you gain the economies and efficiencies of a shared structure. Whether for rental income, multi-family living, or a flexible housing setup — it’s a practical, well-designed option that combines privacy, comfort, and versatility in a compact footprint. If you want efficient, flexible housing without sacrificing autonomy, this plan hits the sweet spot.












