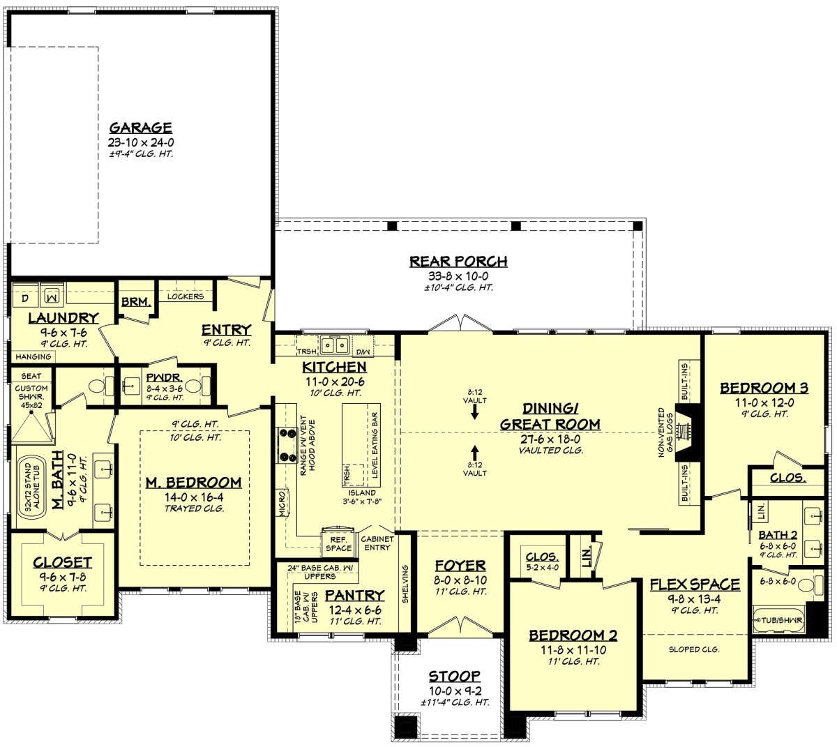
This striking modern home offers approximately 2,295 square feet of heated living space with three bedrooms, two full bathrooms, and one half bathroom. Designed as a single-story residence, this plan blends clean architectural styling with a highly functional layout. With an open-concept design, two-car garage, and flexible interior spaces, it is ideal for families seeking a contemporary yet comfortable living environment. 0

Exterior Design
The exterior presents a bold modern aesthetic, featuring a combination of light stone finishes and dark window accents that create strong visual contrast. The home spans approximately 75 feet 2 inches wide and 66 feet 8 inches deep, offering a substantial presence while maintaining a clean and balanced profile. 1

A welcoming front entry with double doors sets the tone for the home’s contemporary character, while the 8:12 roof pitch adds both structural integrity and visual appeal. 2 The overall design is simple yet impactful, making it suitable for a wide range of settings.
Interior Layout Overview
All 2,295 square feet of living space is thoughtfully arranged on one level, ensuring easy accessibility and efficient flow throughout the home. 3 The layout features a split-bedroom design, allowing for privacy between the primary suite and secondary bedrooms.
The plan also includes a flex room, providing versatility for use as a home office, playroom, or additional living space depending on the homeowner’s needs. 4
Main Living Area
The great room serves as the focal point of the home, featuring voluminous ceiling heights and a gas fireplace flanked by built-in cabinetry. 5 Large windows bring in abundant natural light, enhancing the open and airy feel.
This space flows seamlessly into the dining area and kitchen, creating a cohesive environment ideal for both everyday living and entertaining.

Kitchen and Dining
The kitchen is designed to impress, featuring a large central island, generous counter space, and extensive cabinetry. 6 A standout feature is the oversized walk-in pantry, which includes additional storage, shelving, and workspace for small appliances.
The adjacent dining area benefits from natural light and direct access to the rear covered porch, making it easy to extend meals and gatherings outdoors. 7

Bedrooms
This home includes three bedrooms, all located on the main level. 8 The primary suite is privately positioned and features a tray ceiling, spacious layout, and a luxurious en-suite bathroom.
The primary bathroom includes dual vanities, a freestanding tub, a custom shower with seating, and a private water closet. 9 A large walk-in closet is conveniently accessed through the bathroom.
The secondary bedrooms are located on the opposite side of the home, along with a shared bathroom and nearby flex space, making this area ideal for children or guests.

Bathrooms
The design includes two full bathrooms and a half bathroom, providing comfort and convenience for both residents and visitors. 10
The bathrooms are strategically placed to support efficient daily routines while maintaining privacy throughout the home.

Functional Features
- Single-story layout: All living areas on one level for accessibility. 11
- Open floor plan: Enhances flow and spaciousness. 12
- Split-bedroom design: Provides privacy between rooms. 13
- Flex room: Offers versatile living or workspace. 14
- Large kitchen island and pantry: Improve functionality and storage. 15

- Rear covered porch: Extends living space outdoors. 16
- Mudroom and laundry: Enhance organization and convenience. 17
- Modern architectural style: Clean lines with bold visual appeal.

Garage and Additional Space
The attached two-car garage provides approximately 596 square feet of unheated space, offering room for vehicles, storage, or workshop use. 18
The side-entry garage enhances curb appeal while maintaining practical access to the home through a mudroom.
Dimensions and Structural Details
The home measures approximately 75 feet 2 inches wide and 66 feet 8 inches deep, with an overall height of about 24 feet. 19
It features 9-foot ceilings on the main floor, with higher ceilings in key living areas to enhance openness. 20 The structure is typically built using 2×4 wood framing, with optional upgrades to 2×6 construction, and supports slab, crawlspace, or basement foundations.

Estimated Building Cost (USD)
Construction costs vary depending on materials, labor, and location. Using common mid-range estimates:
- Low estimate: ~ $275,400 (assuming ~$120 per sq ft × 2,295 sq ft)
- High estimate: ~ $413,100 (assuming ~$180 per sq ft × 2,295 sq ft)

This modern house plan offers a perfect blend of elegance, functionality, and flexibility. Its spacious layout, high-end kitchen features, and thoughtful design make it an excellent choice for homeowners seeking a stylish and practical single-story home.
“`21












