This expansive modern farmhouse design delivers around 3,686 sq ft of beautifully planned living space with a thoughtful blend of open gathering zones, private retreats, and flexible rooms. Featuring 4 bedrooms, 3.5 bathrooms, charming outdoor areas, a large 3-car garage, and additional loft/bonus space, it supports everything from relaxed family living to vibrant entertaining and multi-generation needs. 0

Curb Appeal & Exterior Presence
The home’s exterior combines classic farmhouse charm with sleek, modern lines — expansive rooflines, generous windows, and a welcoming covered front porch create striking curb appeal. 1 The substantial footprint (~113′-7″ wide × ~79′-5″ deep) gives a gracious front elevation and allows the outdoor living spaces to feel integrated into the design. 2 Architectural details like board-and-batten siding, mixed materials, and layered roof pitches contribute to a look that’s both timeless and contemporary. 3

Front Porch & Outdoor Living Zones
A covered front porch extends the living space outdoors, offering a comfortable spot for morning coffee or relaxed evening chats. 4 At the rear, generous porch areas provide natural extensions of the interior and can be outfitted with seating, dining, or lounging zones — seamlessly supporting indoor-outdoor living. 5 These spaces enhance views and connection to backyard living without sacrificing style or shelter. 6

Open Great Room & Central Living Space
Stepping inside, an open great room greets you with lofty ceilings and abundant natural light, creating an inviting central hub for daily life. 7 This space flows directly to the kitchen and dining area, encouraging togetherness while maintaining visual and functional openness. 8 Large windows and well-positioned doors bring the outdoors in and reinforce the home’s cozy yet airy feel. 9

Kitchen — Heart of the Home
The kitchen is designed for both efficiency and social interaction. 10 It features a generous island with counter seating, plenty of storage, and thoughtfully placed counters that support meal prep and conversation. 11 A dedicated pantry and accessible placement near the dining zone make hosting dinner parties or preparing family meals effortless. 12 The kitchen’s orientation allows cooks to stay connected with guests or family members across the great room. 13

Primary Suite — Relaxing Private Retreat
The primary bedroom suite is positioned for tranquility, offering a spacious sanctuary away from the main living zones. 14 Its full bathroom includes dual vanities, a soaking tub, and a dreamy walk-in shower — creating a spa-like experience at home. 15 A large walk-in closet keeps storage tidy and convenient, while windows bring in natural light without compromising privacy. 16

Secondary Bedrooms & Guest Spaces
Three additional bedrooms are thoughtfully located to provide comfort and flexibility. 17 Each bedroom offers generous closet space and easy access to full bathrooms, making them ideal for family, guests, or multi-use purposes such as home offices or creative zones. 18 The layout ensures privacy while still keeping these rooms connected to shared living areas. 19

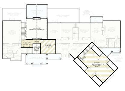
Bonus Room & Loft — Flexible Options
A bonus room and loft area add valuable extra square footage that expands the home’s usability. 20 These flexible spaces can serve as a media room, home gym, playroom, or additional guest suite — adapting to your lifestyle needs over time. 21 A loft space above the great room is perfect as a reading nook or study zone, offering retreat without isolation. 22

Utility & Everyday Functionality
A dedicated mudroom near the garage entry keeps everyday clutter contained, while easy access to the laundry room supports efficient routines without intruding on living space. 23 A convenient half bathroom near shared zones adds practicality for guests and daily life. 24 Thoughtful storage and transitional spaces help maintain a clean, organized home from morning rush to evening relaxation. 25

Indoor-Outdoor Flow & Natural Light
With abundant windows and glass doors facing both front and rear outdoor areas, this plan ensures natural light fills the interior throughout the day. 26 The seamless connection to porches and outdoor zones enhances everyday comfort and encourages you to enjoy outdoor living as an extension of your indoor spaces. 27

Dimensions & Key Features
- Total Heated Area: ~3,686 sq ft 28
- Bedrooms: 4 29
- Bathrooms: 3 full + 1 half 30
- Stories: 1.5 31
- Garage: 3-car attached 32
- Width: ~113′-7″ 33
- Depth: ~79′-5″ 34
- Bonus Room: ~639 sq ft 35
- Loft: ~121 sq ft 36

Lifestyle Highlights
- A great room with high ceilings that anchors the home and creates an inviting open feel.
- Generous kitchen with island — perfect for daily living and entertaining.
- Primary suite crafted for rest and privacy, with luxurious bathroom features.
- Secondary bedrooms that provide comfort and adaptability for family or guests.
- Flexible bonus and loft spaces that grow with your lifestyle needs.
- Extensive outdoor porch zones that enhance your connection to the landscape.
- A thoughtful flow between shared and private spaces that supports real–life routines with ease. 37
Estimated U.S. Build Cost (USD)
Assuming typical U.S. residential construction costs of around **$180–$260 per sq ft**, building this ~3,686 sq ft modern farmhouse plan could range between **$664,000 and $958,000 USD** (excluding land, permits, site preparation, and regional variations). 38

Why This Plan Stands Out
This modern farmhouse design blends spacious, light-filled communal zones with private retreats and flexible living areas — ideal for families, multi-generational living, or anyone who loves to entertain. With its commanding curb appeal, thoughtful flow, and versatile bonus spaces, it offers the perfect balance of comfort, style, and everyday livability.












