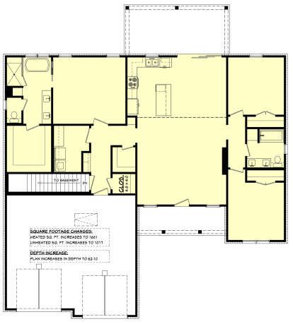
This beautifully balanced modern farmhouse plan delivers about 1,641 sq ft of thoughtfully planned living space. With 3 bedrooms, 2 full bathrooms, and an attached 2-car garage (~635 sq ft), it blends contemporary openness with classic farmhouse charm. This single-story design accommodates everyday family life with a smart flow, generous porch areas, and light-filled shared spaces that feel larger than they are. 0

Exterior & Curb Appeal
The exterior presents a modern farmhouse silhouette with crisp lines, balanced proportions, and welcoming covered porch spaces. 1 At approximately 56′-8″ wide × 58′-6″ deep, the footprint fits nicely on a range of lot sizes, offering a visually appealing façade that combines rustic and contemporary elements. 2 A sizable covered front porch (~99 sq ft) creates a welcoming entry point and perfect spot for outdoor relaxation or friendly chats with neighbors. 3

Outdoor Living & Porch Spaces
Outdoor living is a key feature of this plan. 4 In addition to the front porch, a generous rear covered porch (~207 sq ft) expands your usable living space — ideal for al fresco dinners, weekend barbecues, or simply soaking in the backyard views. 5 Together, the porch areas total more than 300 sq ft of outdoor space that extend the home’s footprint into nature. 6

Open Central Living Area
Stepping inside, you’re welcomed by an open central living area that forms the heart of the home. 7 The great room flows seamlessly into the dining and kitchen zones, creating a unified space that feels bright, airy, and sociable. 8 Large picture windows allow natural light to flood the interior, reinforcing a sense of connection to the outdoors and making everyday living feel light and open. 9

Kitchen & Dining — Designed for Everyday Use
The kitchen is thoughtfully positioned to support both daily routines and gatherings. 10 Well-placed counters and cabinetry offer efficient storage and prep space, while the adjacent dining area keeps conversation flowing during meals. 11 Easy access to the rear porch enhances indoor-outdoor flow, making it convenient to enjoy meals outside on pleasant days. 12

Primary Suite — Private & Relaxing
The primary bedroom is situated to provide a peaceful retreat tucked away from the main living areas. 13 Natural light fills the room through well-placed windows, creating a calm and welcoming private space. 14 The attached full bathroom adds convenience and comfort with a well-designed layout that enhances everyday living. 15 A generous closet supports practical organization and keeps the suite clutter-free. 16

Secondary Bedrooms & Versatile Use
Two additional bedrooms offer flexible space for family, guests, or even a home office or hobby area. 17 These rooms share access to a second full bathroom and are sized to be both functional and cozy. 18 Each bedroom captures natural light, helping create a bright and comfortable environment for rest or work. 19

Functional Spaces for Everyday Ease
A dedicated laundry space and practical transitions from the garage to the interior help keep daily life organized. 20 The garage entry into a mudroom-style zone ensures that outdoor gear and everyday essentials stay neatly contained before entering the main living areas. 21 Gutters and rooflines are positioned to support efficient drainage while adding architectural interest. 22

Indoor-Outdoor Connectivity & Light
Large windows and porch doors throughout the home maximize natural light and reinforce the connection between indoor living and the surrounding environment. 23 Whether you’re inside relaxing or stepping outside onto the porches, this design encourages you to enjoy both spaces with ease. 24

Dimensions & Key Features
- Total Heated Area: ~1,641 sq ft 25
- Bedrooms: 3 26
- Bathrooms: 2 full 27
- Stories: Single level 28
- Garage: Attached 2-car (~635 sq ft) 29
- Front Porch: ~99 sq ft 30
- Rear Porch: ~207 sq ft 31
- Width: ~56′-8″ 32
- Depth: ~58′-6″ 33
- Ceiling Heights: ~9 ft main areas 34

Lifestyle Highlights
- Open great room that supports casual living and entertaining.
- Porch areas that extend usable space and encourage outdoor enjoyment.
- Kitchen and dining positioned for easy flow and connection to outdoors.
- Primary suite designed for comfort and privacy.
- Secondary bedrooms adaptable for family, guests, or work needs.
- Efficient transitions and utility spaces for everyday ease.
- Natural light that brightens and expands interior spaces. 35
Estimated U.S. Build Cost (USD)
Assuming typical U.S. residential construction costs of approximately **$180–$260 per sq ft**, building this ~1,641 sq ft modern farmhouse plan could range between **$295,000 and $427,000 USD** (excluding land cost, permits, site preparation, and regional variations). 36

Why This Plan Works
This modern farmhouse plan strikes a lovely balance between efficient living and welcoming style. Its thoughtful layout supports both everyday routines and entertaining, with inviting indoor spaces that flow effortlessly to generous outdoor porches. Whether you’re hosting friends, enjoying family time, or unwinding at the end of the day, this design provides practical comfort and classic charm in a well-scaled footprint.











