This modern farmhouse design delivers around 2,256 sq ft of well-balanced living space, blending classic farmhouse aesthetics with smart, contemporary layout features. With 3 bedrooms, 2 full bathrooms, generous shared areas, a flexible bonus room, and an attached 2-car garage (~559 sq ft), it’s ideal for families, frequent hosts, or anyone who values stylish comfort and everyday practicality. 0

Curb Appeal & Exterior Style
The home’s exterior showcases classic modern farmhouse charm — clean lines, a welcoming covered front porch, and simple yet elegant proportions. 1 At approximately 74′-2″ wide × 55′-5″ deep, the façade strikes a perfect balance of presence without overwhelming a standard lot. 2 Thoughtfully placed windows and harmonious rooflines enhance curb appeal while welcoming natural light into the interior. 3

Covered Porch & Outdoor Living
A covered front porch extends outdoor living and sets a welcoming tone before you step inside. 4 At the back, a generous covered rear porch (~633 sq ft total porch/patio area) creates a natural extension of the great room and dining space — perfect for outdoor dining, morning coffee, or relaxing evenings with family. 5 This seamless indoor-outdoor connection reinforces the plan’s farmhouse character and makes outdoor enjoyment effortless. 6

Open Great Room — Heart of the Home
Step inside to a light-filled great room that serves as the centerpiece of daily living. 7 Large windows frame views to the outdoors and create an airy sense of space, while the open layout allows for comfortable daily routines and social gatherings. 8 The space flows naturally into the dining area and kitchen, promoting interaction and connection across living zones. 9

Kitchen & Dining — Functional & Sociable
The kitchen offers intuitive planning and thoughtful workflow, making everyday meal preparation a pleasure. 10 A central island provides extra counter space and casual seating — a natural gathering spot for family breakfasts or relaxed chats while cooking. 11 The adjacent dining area benefits from easy access to the covered rear porch, ideal for indoor-outdoor entertaining. 12

Primary Suite — Private Retreat
The primary bedroom suite is tucked toward the back of the home, providing a peaceful personal retreat. 13 Ample natural light warms the space through well-located windows, while the attached full bathroom offers practical amenities and a comfortable layout. 14 A walk-in closet enhances storage without compromising the suite’s calm, restful atmosphere. 15

Secondary Bedrooms & Shared Bath
Two additional bedrooms sit in a separate wing, offering comfort and versatility for family members, guests, or flexible uses like a home office or hobby room. 16 These rooms share access to a well-appointed full bathroom, positioned for easy use without interrupting privacy. 17 Each room has ample natural light and closet space, making them adaptable for evolving lifestyle needs. 18

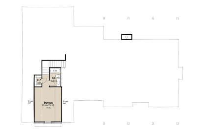
Bonus Room — Flexible Extra Space
This plan includes a bonus room (~304 sq ft) that expands your living options beyond the main floor. 19 Whether you envision it as a media room, play lounge, home gym, or guest retreat, this extra space adds valuable flexibility that adapts to your lifestyle over time. 20 Positioned off the main living areas, it feels connected yet distinct — perfect for varied uses. 21

Garage, Mudroom & Everyday Flow
The attached two-car garage (~559 sq ft) not only shelters vehicles but offers storage and utility access that keeps clutter out of living areas. 22 A practical mudroom zone near the entry helps organize everyday gear, while nearby laundry facilities keep daily chores streamlined and discreet. 23 These well-planned utility spaces enhance everyday flow and simplify daily life. 24

Indoor-Outdoor Connectivity & Natural Light
Generous windows and porch doors create constant visual ties to the outdoors, inviting breezes and sunshine into shared spaces. 25 The design celebrates natural light, making main living areas feel open, bright, and welcoming throughout the day. 26

Dimensions & Key Features
- Total Heated Area: ~2,256 sq ft 27
- Bedrooms: 3 28
- Bathrooms: 2 full 29
- Half Baths: 0 30
- Stories: Single level 31
- Garage: 2-car attached (~559 sq ft) 32
- Porch/Patio: ~633 sq ft total 33
- Width: ~74′-2″ 34
- Depth: ~55′-5″ 35
- Ceiling Heights: ~9–10 ft typical 36

Lifestyle Highlights
- Open central living zone that invites relaxed interaction and a connected daily routine.
- Kitchen layout that balances practicality with social flow to living and porch spaces.
- Primary suite positioned for privacy and comfort with ample storage.
- Secondary bedrooms adaptable for family, guests, or multi-purpose use.
- Bonus room that adds versatile indoor space for hobbies or entertainment.
- Generous porch areas that extend your living space into the outdoors.
- Smart utility planning — mudroom, laundry, and garage flow that supports everyday life. 37

Estimated U.S. Build Cost (USD)
Assuming typical U.S. residential construction costs of around **$180–$260 per sq ft**, building this ~2,256 sq ft modern farmhouse plan could range between **$406,000 and $587,000 USD** (excluding land, permits, site preparation, and regional variations). 38

Why This Modern Farmhouse Plan Shines
This modern farmhouse plan strikes a perfect balance between timeless architectural charm and modern living needs. With its open shared spaces, well-placed private zones, bonus room flexibility, and generous porch areas, it’s a design that feels welcoming, adaptable, and beautifully functional for families at any stage.












