This charming modern farmhouse design delivers about 988 sq ft of efficiently planned living space that’s perfect for couples, small families, or anyone seeking a stylish yet manageable home. With 2 bedrooms and 2 full bathrooms, this one-story layout blends classic farmhouse aesthetics and modern conveniences in a thoughtfully compact footprint. 0

Curb Appeal & Exterior Style
The exterior welcomes you with timeless modern farmhouse character, featuring clean lines and balanced proportions that feel both inviting and refined. 1 With an approximate footprint of 38′ wide × 32′ deep, the home’s façade strikes a cozy yet impactful presence that’s well-suited to smaller lots, rural settings, or as a guest or vacation home. 2 A covered front porch anchors the entry with classic appeal and creates a perfect outdoor space to relax or greet guests. 3

Covered Porch & Outdoor Flow
The covered front porch invites you to linger, whether you’re enjoying your morning coffee or unwinding in the evening breeze. 4 At the rear, a protected patio (~228 sq ft total porch/patio area) extends your living space outdoors — ideal for dining under the sky, hosting a weekend barbecue, or simply savoring quiet moments with nature. 5 The strong indoor-outdoor connection enhances everyday living and reinforces the welcoming farmhouse vibe. 6

Open Living & Great Room — Heart of the Home
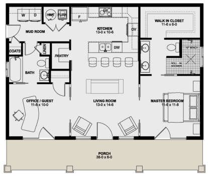
Inside, the open floor plan brings the great room, dining area, and kitchen together seamlessly, creating a bright, connected living zone that maximizes space and encourages togetherness. 7 Large windows along the shared space bathe the interior in natural light, making the footprint feel more expansive and organically linked to the porch areas. 8 This open concept supports both daily routines and entertaining with comfort. 9

Kitchen & Dining — Practical & Sociable
The kitchen is designed for real life: efficient, functional, and stylish. 10 A central island gives you extra counter space and casual seating — great for quick breakfasts, snack time, or conversation while cooking. 11 With the dining zone nearby and windows framing views to the exterior patio, this layout feels bright, social, and well-connected to the home’s overall flow. 12

Primary Suite — Comfortable & Light-Filled
The primary bedroom serves as a peaceful retreat, tucked toward one side of the home to provide privacy from shared spaces. 13 Natural light warms the room throughout the day, while the attached full bathroom enhances convenience. 14 Ample closet space keeps storage organized and out of sight, adding to the restful feel of this personal zone. 15

Second Bedroom & Guest/Shared Bath
A second bedroom offers flexibility, whether you use it for guests, family members, or as a work-from-home space. 16 It sits near a well-appointed full bathroom that supports everyday living and provides comfort and accessibility for both residents and visitors. 17 Thoughtful placement ensures privacy while remaining convenient to shared living areas. 18

Efficient Layout & Everyday Flow
The plan’s smart layout makes exceptional use of every square foot. 19 With open shared zones for daily connection and comfortable private spaces for rest, this home feels larger than its modest footprint. 20 Smooth transitions between living, dining, sleeping, and outdoor spaces make everyday life easy and enjoyable. 21
Indoor-Outdoor Connectivity & Natural Light
Large windows and easy porch access help bring the outdoors in, filling shared areas with natural light and offering visual connections to the surrounding landscape — an essential feature of modern farmhouse design. 22 These elements create a bright, inviting interior that enhances the sense of space. 23

Dimensions & Key Features
- Total Heated Area: ~988 sq ft 24
- Bedrooms: 2 25
- Bathrooms: 2 full 26
- Stories: 1 27
- Front Porch & Rear Patio: ~228 sq ft 28
- Width: ~38′ 29
- Depth: ~32′ 30
- Ceiling Height: ~9 ft (typical) 31

Lifestyle Highlights
- Open concept living that creates a bright, welcoming central space.
- Kitchen with island seating that encourages casual interaction and practicality.
- Primary suite that feels restful and private with direct access to a full bath.
- Secondary bedroom adaptable for guests, family, or flexible living needs.
- Covered porch and patio areas that enhance indoor-outdoor living opportunities.
- Compact footprint that maximizes every square foot for comfort and usability. 32

Estimated U.S. Build Cost (USD)
Assuming typical U.S. residential construction costs of **$180–$260 per sq ft**, building this ~988 sq ft modern farmhouse plan could range between **$178,000 and $257,000 USD** (excluding land, permits, site preparation, and regional variations). 33

Why This Modern Farmhouse Plan Shines
This modern farmhouse plan blends smart, efficient design with inviting character and strong indoor-outdoor connections. Its open living areas, comfortable private zones, and generous porch space make it an excellent choice for those who want farmhouse style coupled with practical livability in a compact, well-designed home.












