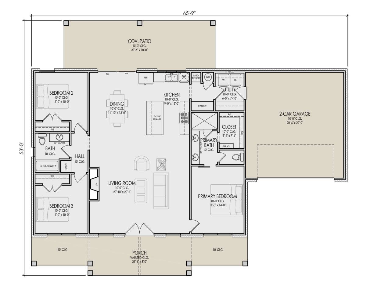
This well-planned and stylish home offers approximately 1,565 square feet of heated living space with three bedrooms and two full bathrooms. The layout featured in
this modern farmhouse plan is designed for comfortable everyday living, combining classic farmhouse charm with modern functionality.

Charming Modern Farmhouse Exterior
The exterior showcases a clean and timeless farmhouse design with simple rooflines, balanced proportions, and an inviting presence. This style blends rustic warmth with modern simplicity, making it suitable for a wide range of settings.
With overall dimensions of approximately 56 feet wide and 48 feet deep, the home fits comfortably on medium-sized plots while maintaining a strong curb appeal.

Comfortable Single-Level Living
This home is designed as a one-story residence, with all 1,565 square feet of living space arranged on a single level.
The layout ensures smooth movement, accessibility, and convenience for daily living.
Open-Concept Living Area
The heart of the home features an open floor plan that connects the living room, dining area, and kitchen into one cohesive space.
This design allows natural light to flow throughout, creating a bright and welcoming environment.
Modern Kitchen with Island
The kitchen is centrally located and designed for both functionality and style. It includes:
- Kitchen island for prep and seating
- Ample counter space
- Efficient storage layout
This setup makes the kitchen a central gathering point in the home.
Three Comfortable Bedrooms
This home includes three bedrooms, making it ideal for families, guests, or a home office setup.
The primary suite is designed as a private retreat, while the additional bedrooms are positioned for convenience.
Split-Bedroom Layout
The design features a split-bedroom layout, placing the primary bedroom on one side of the home and the other bedrooms on the opposite side.
This arrangement enhances privacy and comfort.
Two Full Bathrooms
The home includes two full bathrooms, conveniently located to serve both private and shared spaces.
This ensures smooth daily routines for all occupants.
2-Car Garage and Storage
The plan includes a 2-car garage, providing secure parking and additional storage space.
Direct access into the home improves convenience and usability.
Outdoor Living Space
The design includes inviting outdoor areas such as a front porch and rear patio, extending the living space outdoors.
These spaces are perfect for relaxing, entertaining, or enjoying fresh air.
Functional and Efficient Design
This home is carefully designed to maximize comfort and usability within a moderate size. The open layout and thoughtful room arrangement make it feel spacious and practical.
It is especially ideal for homeowners looking for a stylish farmhouse with efficient use of space.
Dimensions and Key Details
- Total Living Area: 1,565 square feet
- Bedrooms: 3
- Bathrooms: 2
- Garage: 2-car
- Width: 56 feet
- Depth: 48 feet

- Stories: 1
Estimated Building Cost (USD)
- Low estimate: ~ $187,800 (assuming ~$120 per sq ft × 1,565 sq ft)
- High estimate: ~ $281,700 (assuming ~$180 per sq ft × 1,565 sq ft)

This modern farmhouse plan offers a perfect combination of comfort, efficiency, and timeless design. With its open layout, three-bedroom arrangement, and inviting outdoor spaces, it is an excellent choice for building a practical and stylish home.












