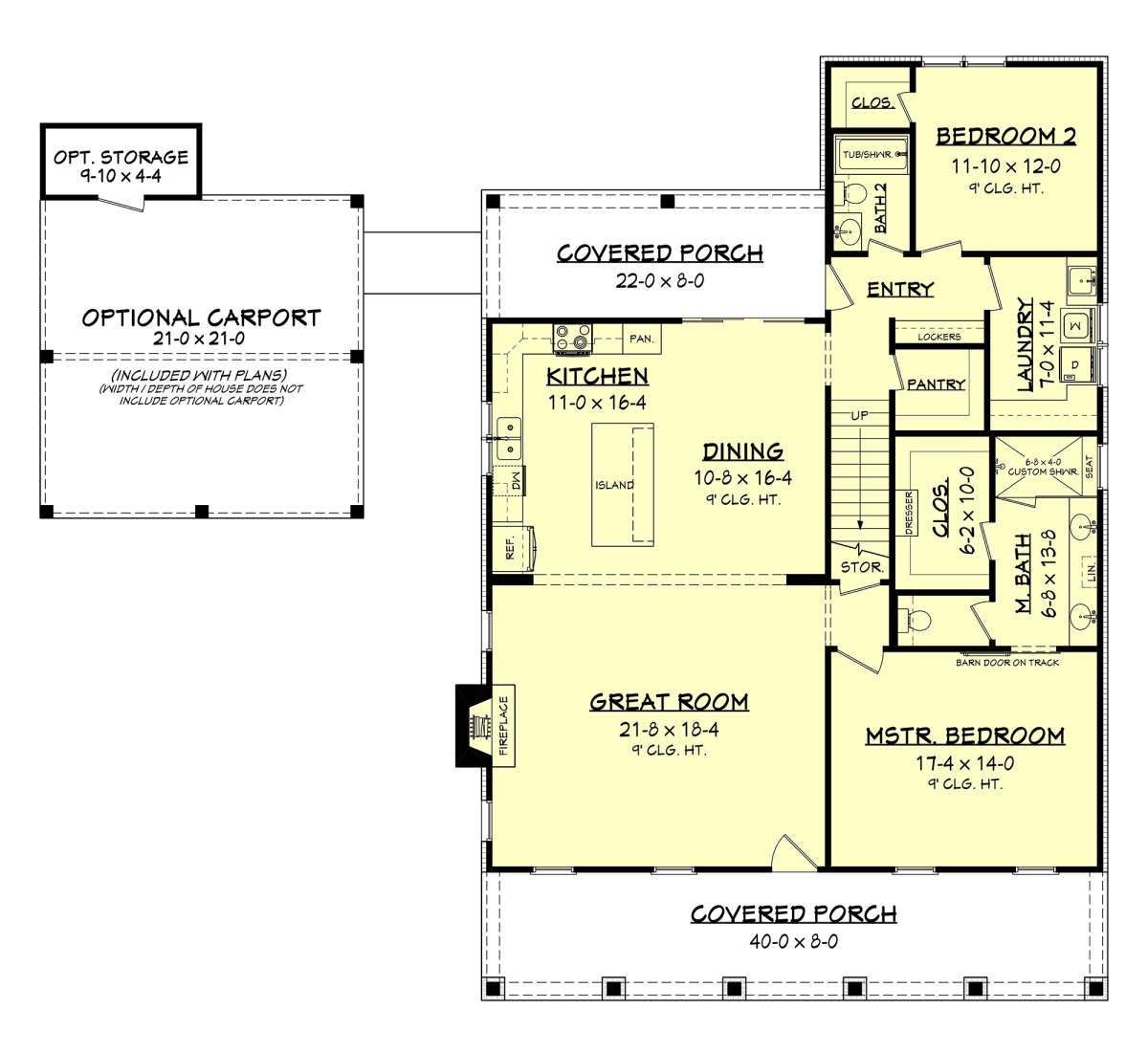
This spacious and well-designed home offers approximately 2,533 square feet of heated living space with four bedrooms and three full bathrooms. The layout featured in
this farmhouse house plan combines classic country charm with modern functionality, making it ideal for families seeking comfort, style, and efficient living.

Classic Farmhouse Exterior
The exterior features a timeless farmhouse design with a balanced structure and welcoming curb appeal. Clean lines, gable roof elements, and a wide footprint create a strong and attractive presence.
A covered front porch enhances the home’s charm, providing a relaxing outdoor space while adding to the traditional farmhouse aesthetic.

Spacious and Functional Layout
The 2,533 square feet of living space is arranged to maximize comfort and usability. ([houseplans.net](https://ww0/farmhouse-plan-2533-square-feet-4-bedrooms-3-bathrooms?utm_source=chatgpt.com)) The layout balances open living areas with private spaces, ensuring both convenience and comfort.
The design promotes smooth flow between rooms, making daily living easy and efficient.
Open-Concept Living Area
At the heart of the home is a large open-concept living area that connects the great room, kitchen, and dining space. This layout creates a bright and inviting environment ideal for family gatherings and entertaining.
Large windows allow natural light to fill the space, enhancing the sense of openness and warmth.
Modern Kitchen with Island
The kitchen is designed for both style and functionality, featuring a central island that provides additional workspace and seating. ([
Ample cabinetry and smart layout planning ensure efficient cooking and storage, while the nearby dining area makes serving meals convenient and enjoyable.

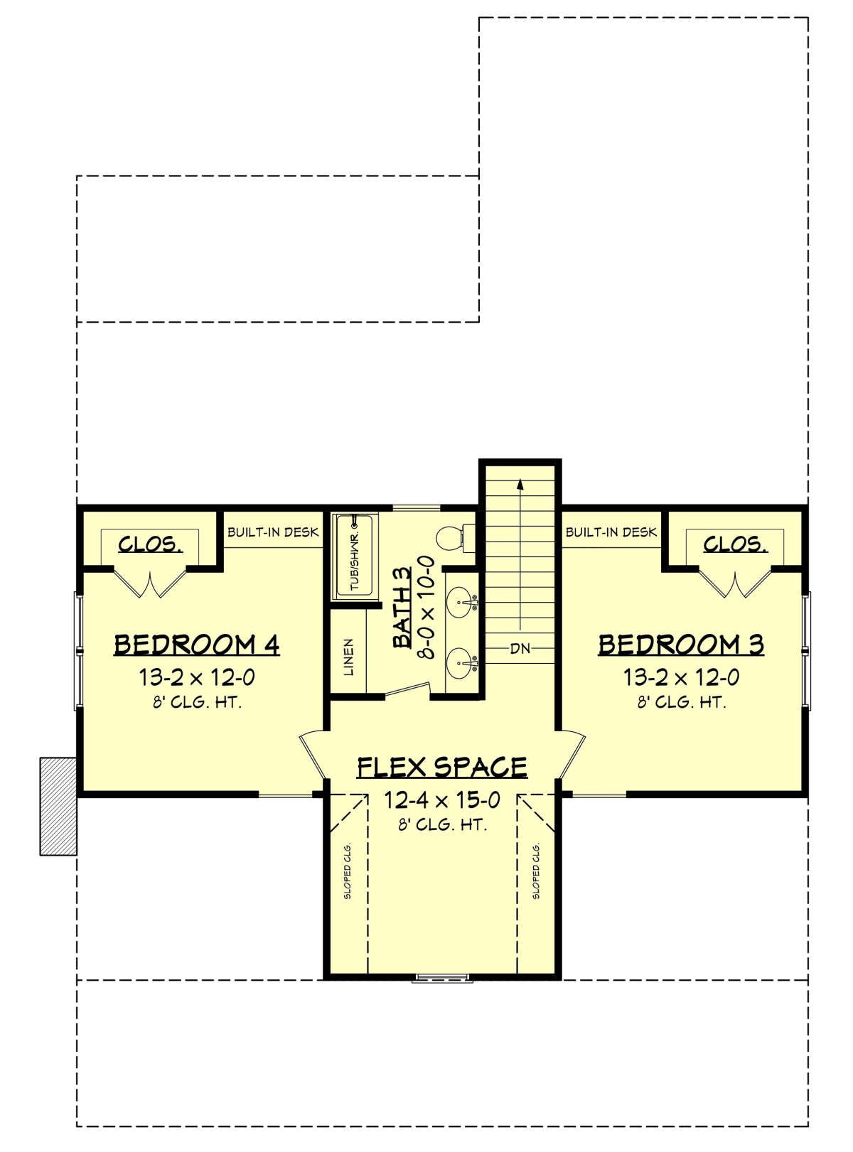
Four Comfortable Bedrooms
This home includes four bedrooms, offering flexibility for families, guests, or additional uses such as a home office. The primary suite is designed as a private retreat, providing comfort and relaxation.
The additional bedrooms are well-positioned to offer convenience while maintaining separation from the main living areas.
Three Full Bathrooms
The layout includes three full bathrooms, ensuring convenience for all occupants. ([ These bathrooms are strategically located to support both private and shared use.
Additional Features
- Open floor plan: Enhances space and flow throughout the home.
- Kitchen island: Adds functionality and casual dining space. ([houseplans.net](https://www.houseplans.net/floorplans/04100200/farmhouse-plan-2533-square-feet-4-bedrooms-3-bathrooms?utm_source=chatgpt.com))

- Covered porch: Extends living space outdoors.
- Modern farmhouse style: Combines rustic charm with contemporary design.
- Efficient layout: Maximizes usability and comfort.
Dimensions and Key Details
- Total Living Area: 2,533 square feet
- Bedrooms: 4
- Bathrooms: 3
- Style: Farmhouse
The structure is typically built using standard wood framing and supports multiple foundation options depending on site conditions and preferences. ([

Estimated Building Cost (USD)
- Low estimate: ~ $303,960 (assuming ~$120 per sq ft × 2,533 sq ft)
- High estimate: ~ $455,940 (assuming ~$180 per sq ft × 2,533 sq ft)

This farmhouse house plan delivers a perfect blend of traditional charm and modern living. With its spacious layout, open design, and practical features, it is an excellent choice for families looking for a comfortable and stylish home.












