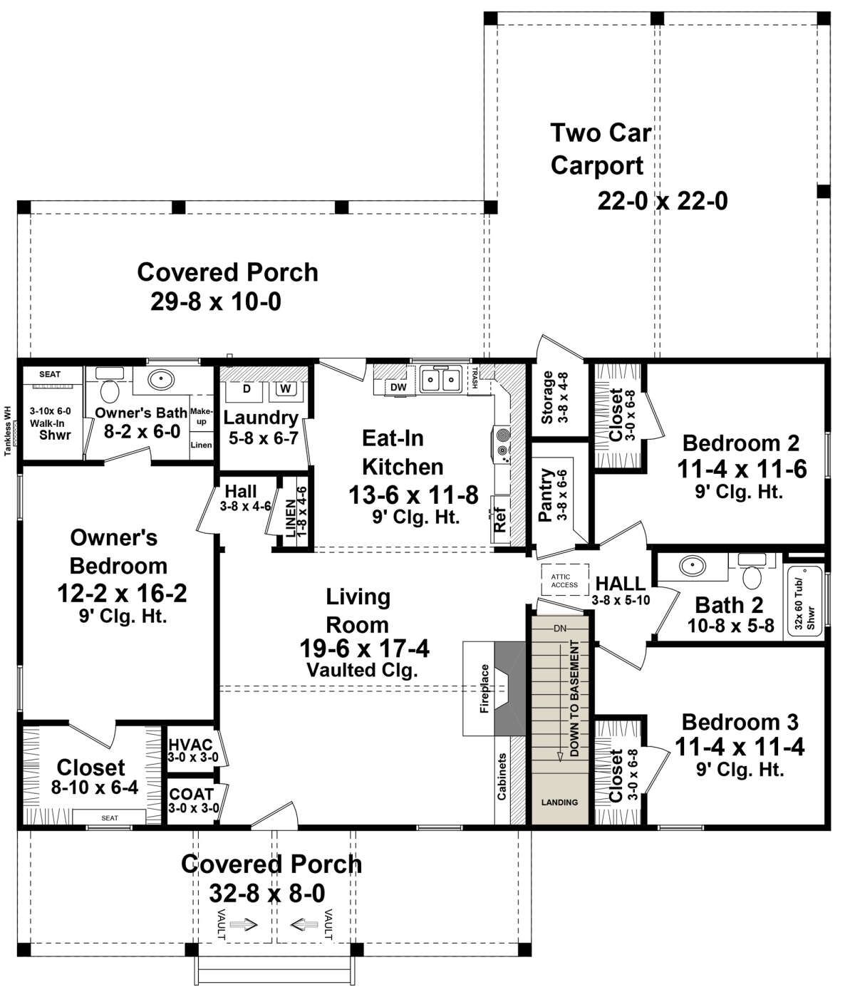
This well-balanced and efficient home offers approximately 1,430 square feet of heated living space with three bedrooms and two full bathrooms. The layout featured in
this craftsman house plan is ideal for families seeking a compact yet comfortable home with timeless design and practical functionality. 0
Classic Craftsman Exterior
The exterior reflects traditional craftsman styling with clean lines, a low-profile roof, and a welcoming appearance. The home measures approximately 47 feet 8 inches wide and 60 feet deep, giving it a compact footprint suitable for many plot sizes. 1
This design style emphasizes warmth and simplicity, making the home visually appealing while remaining practical.
Efficient Single-Level Layout
All 1,430 square feet of living space is arranged on a single floor, ensuring easy movement and accessibility throughout the home. 2This layout is ideal for homeowners who prefer convenience without sacrificing comfort.
Open-Concept Living Area
The main living space features an open floor plan that connects the living room, dining area, and kitchen. This design creates a bright and spacious environment, allowing natural light to flow freely throughout the home.The open layout enhances interaction and makes the home perfect for both everyday living and entertaining.
Functional Kitchen Design
The kitchen is centrally positioned for maximum efficiency, offering easy access to both the dining and living areas. It includes sufficient counter space and cabinetry, making it practical for daily use.This arrangement ensures a smooth workflow while maintaining connection with the rest of the home.
Three Comfortable Bedrooms
This home includes three bedrooms, making it suitable for families or flexible living arrangements. 3 The primary bedroom provides a comfortable retreat, while the additional bedrooms can be used for children, guests, or a home office.The layout is designed to balance privacy with accessibility.
Two Full Bathrooms
The design includes two full bathrooms, strategically located to serve both private and shared areas of the home. 4This ensures convenience for daily routines and comfortable use for all occupants.
Smart and Practical Design
One of the key strengths of this home is its efficient use of space. Every area is carefully planned to maximize functionality while minimizing wasted space.The combination of a compact footprint and open layout makes the home feel larger than its actual size.
Outdoor Living Potential
The design allows for the addition of outdoor features such as a front porch or backyard seating area, extending the living space beyond the interior.This enhances the overall lifestyle by providing areas for relaxation and entertainment.
Dimensions and Key Details
- Total Living Area: 1,430 square feet
- Bedrooms: 3
- Bathrooms: 2
- Width: 47’8″
- Depth: 60′
- Stories: 1
Estimated Building Cost (USD)
- Low estimate: ~ $171,600 (assuming ~$120 per sq ft × 1,430 sq ft)
- High estimate: ~ $257,400 (assuming ~$180 per sq ft × 1,430 sq ft)

This craftsman house plan offers a perfect blend of simplicity, efficiency, and timeless design. With its open layout, practical bedroom arrangement, and compact size, it is an excellent choice for homeowners seeking an affordable yet stylish modern home.“`5











