This charming cabin plan offers approximately 740 square feet of comfortable living space with a simple, efficient layout featuring one bedroom and one full bathroom. Designed to capture classic cabin character while maximizing usable space, this plan is ideal for a cozy primary residence, vacation getaway, or guest home. 0

Exterior Design
The exterior embraces a timeless cabin aesthetic with a compact footprint measuring roughly 45 feet wide by 20 feet deep. The modest scale and straightforward rooflines make it suitable for wooded lots, mountain retreats, lakeside settings, or rural property. Large windows and simple detailing help connect the interior with the outdoors and enhance the rustic charm. 1

Interior Layout Overview
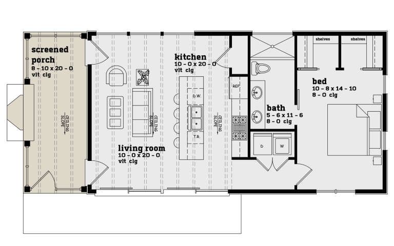
Inside, the floor plan prioritizes open, efficient use of space to make the most of the 740 sq ft. The living, dining, and kitchen areas flow together, creating a multifunctional central zone that supports both everyday living and entertaining. 2

Main Living Area
The main living area comfortably integrates the living room with the kitchen and dining zones. Natural light from large windows brightens the space, making it feel larger than its compact footprint would suggest. The kitchen includes functional counter space and cabinetry, while the open flow encourages social interaction and ease of movement. 3

Bedrooms
This cabin plan includes one bedroom, offering a restful private retreat. Thoughtful placement and efficient circulation keep the sleeping area comfortable and separate from the main living zone. 4

Bathrooms
The single full bathroom is designed with practical circulation and standard fixtures to support everyday use, while serving both residents and guests without compromising comfort. 5

Functional Features
- Efficient layout: Open living area maximizes usable space. 6
- Single bedroom: Ideal for individual living or vacation use. 7
- One full bathroom: Supports daily routines conveniently. 8
- Cottage-style cabin: Perfect for rustic settings and smaller sites. 9
- Simple rooflines and windows: Enhance natural light and outdoors connection. 10

Dimensions and Structural Details
This single-story cabin plan’s total heated area of 740 square feet is laid out efficiently to balance open shared spaces with private zones. With standard wood framing and conventional roof design, this plan supports straightforward construction on a crawlspace or slab foundation. 11

Estimated Building Cost (USD)
Construction costs vary by region, materials, finishes, and labor. As a general estimate for a basic build:
- Low estimate: ~ $88,800 (assuming ~$120 per sq ft × 740 sq ft)
- High estimate: ~ $133,200 (assuming ~$180 per sq ft × 740 sq ft)

These figures provide a general cost range — actual costs will depend on local labor rates, material quality, and site conditions. 12
“`13












