This roomy and practical barndominium plan offers approximately 2,030 square feet of single-story living space with three bedrooms and two full bathrooms. Combining the casual rugged appeal of a barn-style exterior with modern interior comforts, this design fits well on rural acreage, spacious suburban lots, or even hobby-farm settings. 0

Exterior Design
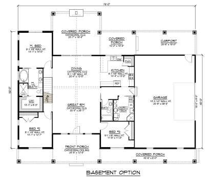
The exterior highlights a classic barndominium silhouette with a broad footprint measuring about 76 feet wide by 64 feet deep. Durable finishes and simple roof lines reflect the no-nonsense aesthetic typical of barndominium structures, while covered porch areas add outdoor living and entertaining zones. 1
A generous three-car garage is integrated into the layout, providing ample sheltered parking and storage space — something many homeowners appreciate in barn-style homes. 2
Interior Layout Overview
Inside, the barndominium’s open plan fosters a sense of space and connection between functional zones, ideal for flexible lifestyles, family gatherings, and everyday living. Rooms are arranged for easy circulation, and the overall design emphasizes utility without sacrificing comfort. 3

Main Living Area
The heart of the home focuses on a large open living area that seamlessly connects to the dining space and kitchen. Natural light floods the interior through generous windows, enhancing the spacious feel. The kitchen typically includes a central island for meal prep and casual dining, with plenty of counters and cabinetry for storage. 4
Bedrooms
This plan features three bedrooms, providing comfortable private spaces for family members, guests, or flexible uses such as offices or hobby rooms. The primary suite is positioned for maximum privacy and includes convenient access to a full bathroom. 5
The two additional bedrooms are well-proportioned and located near the second full bathroom, offering easy access for residents and visitors alike. 6
Bathrooms
With two full bathrooms, this plan addresses daily household needs with practical circulation and standard fixture layouts. The primary bathroom serves the owner’s suite, and the secondary bath supports the other bedroom spaces. 7
Functional Features
- Open concept living: The great room, kitchen, and dining area flow together for a connected lifestyle. 8
- Three bedrooms: Offers flexibility for family living or multifunction spaces. 9
- Two full bathrooms: Provides enhanced comfort and convenience. 10
- Three-car garage: Generous covered parking and storage capacity. 11
- Covered porch areas: Extends living space to the outdoors (weather permitting). 12

Dimensions and Structural Details
This barndominium’s heated area of about 2,030 square feet is all on one level, providing accessibility and ease of movement throughout the home. Exterior walls use sturdy 2×6 framing for durability and better insulation performance. The main floor features roughly 9-foot ceilings that help create a sense of volume and openness in shared areas. 13
Foundation options include crawlspace, slab, basement, or walkout basement depending on site conditions and preference. 14
Estimated Building Cost (USD)
Construction costs vary significantly by region, materials, finishes, and labor rates. Based on a moderate-quality price range for barndominium builds (often a bit lower per square foot than traditional homes):
- Low estimate: ~ $243,600 (assuming ~$120 per sq ft × 2,030 sq ft)
- High estimate: ~ $365,400 (assuming ~$180 per sq ft × 2,030 sq ft)

These cost estimates are general and will vary depending on specific finishes, material choices, regional labor costs, and site conditions — barndominiums may also sometimes be built for less due to simpler structures and metal shell options. 15
“`16












