This inviting barndominium plan delivers around 1,491 sq ft of heated living area, paired with a massive attached garage/workshop zone — making it ideal for those who value both cozy living spaces and abundant utility. With 2 bedrooms, 2 full bathrooms, and a 3-car garage (~1,139 sq ft), this design blends practical barn-style aesthetics with modern comfort for everyday living and hobby-friendly space. 0

Exterior & Curb Appeal
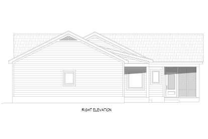
This barndominium presents classic barn-inspired curb appeal with a wide, horizontal silhouette that’s perfect on expansive properties or rural settings. 1 The home’s footprint — approximately 93′-6″ wide × 48′-5″ deep — gives it a grounded, welcoming proportion, while a covered front porch (~104 sq ft) offers an inviting welcome and simple outdoor living option. 2 Deep side and rear porch areas (~89 sq ft and ~156 sq ft respectively) help tie indoor life to the outdoors and keep you connected to nature. 3

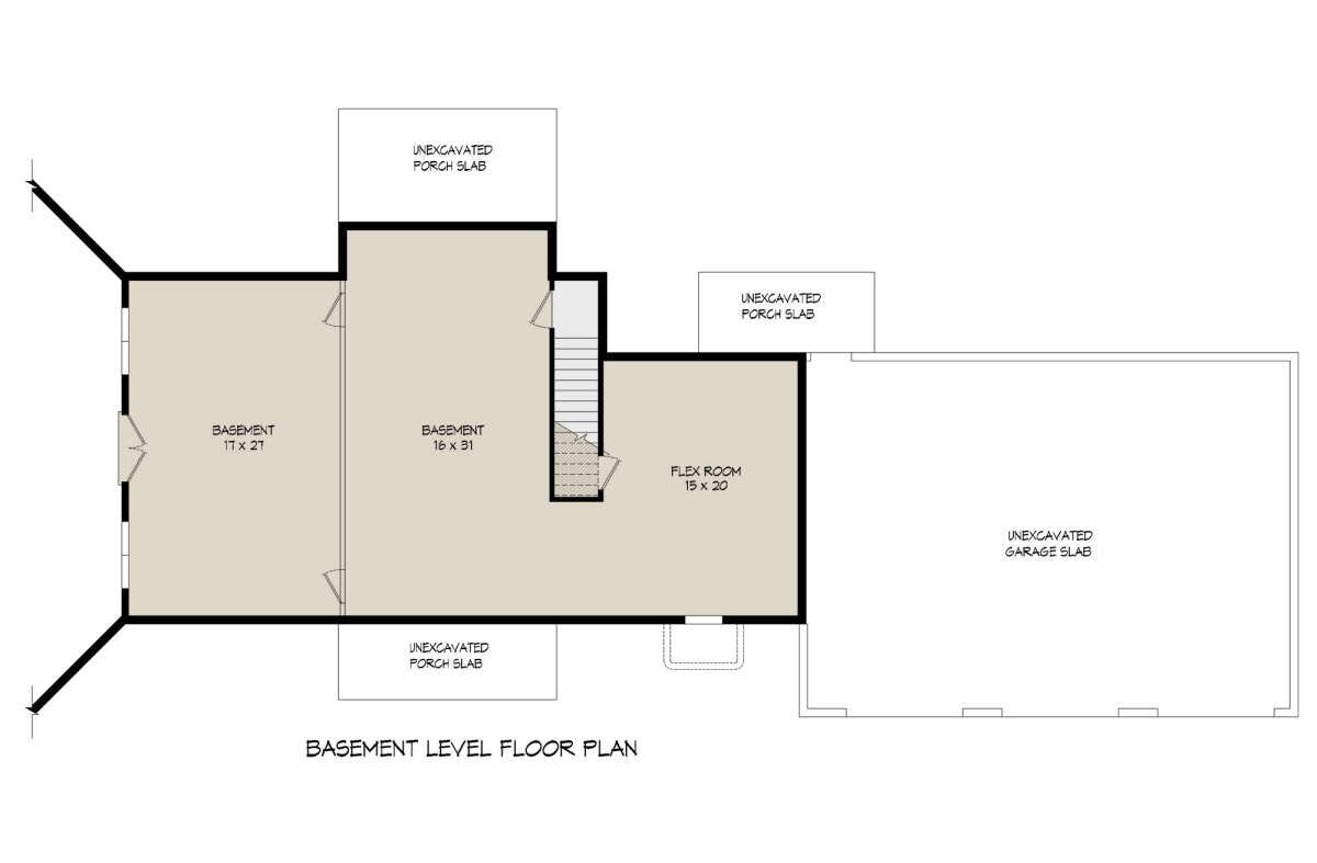
Garage & Workshop Space — A Defining Feature
One of the most striking aspects of this plan is its vast attached 3-car garage/workshop — totaling over 1,100 sq ft of unheated space. 4 This area is perfect for a hobbyist workshop, storage for vehicles or outdoor equipment, or even a future office or studio space. 5 The garage connects conveniently into the home, making transitions from work to living effortless and keeping everyday life organized. 6
Front Porch & Outdoor Living
The covered front porch creates an immediate sense of home, offering a comfortable place for morning coffee or casual relaxation. 7 With generous porch areas wrapping around the home, there’s plenty of space for outdoor furniture, gardening accents, or a cozy seating nook that invites you to enjoy fresh air and backyard views. 8
Open Living & Great Room
Stepping inside, you’ll find a generous open living area that forms the heart of the home. 9 The great room flows naturally into the dining zone and kitchen — creating a welcoming environment for everyday life and family gatherings. 10 Large windows and thoughtful placement of glass doors fill the interior with natural light, helping the space feel bright, open, and connected to the outdoors. 11
Kitchen — Designed for Comfort & Connection
The kitchen is both practical and social, featuring abundant countertop space and cabinetry that support meal prep and storage needs. 12 A central island serves as a natural hub for casual breakfasts, homework sessions, or conversation while cooking. 13 Its proximity to the dining area helps keep meal time stress-free, while easy access to the covered porch makes outdoor dining effortless when weather permits. 14

Primary Suite — Relaxing Private Retreat
The primary bedroom resides in a quiet corner of the home, offering privacy and comfort. 15 Natural light filters through well-placed windows, creating a serene atmosphere. 16 The attached full bathroom supports everyday ease, while generous closet space helps keep personal items organized and out of sight. 17 Whether starting your day or winding down at night, this space feels like a peaceful retreat. 18

Secondary Bedroom & Guest Comfort
The second bedroom is equally inviting, making it an excellent guest room or versatile space for a home office or hobby room. 19 It’s served by a second full bathroom located conveniently nearby, ensuring comfort and convenience for residents and visitors alike. 20 With thoughtful dimensions and natural light, this room adapts easily to changing lifestyle needs. 21

Utility & Everyday Flow
Smart design touches are integrated into the layout to enhance everyday living. 22 A mudroom space just off the garage keeps coats, boots, and tools from migrating into the main living areas, while a dedicated laundry zone streamlines household chores without interrupting shared or private spaces. 23 These practical details help maintain a sense of order and flow throughout the home. 24

Indoor-Outdoor Connectivity & Natural Light
Thoughtfully placed windows and porch doors ensure that natural light fills the interior, lending a bright and open feel to the entire home. 25 This connection to outdoor spaces enhances everyday living — whether you’re inside relaxing or stepping out to take in fresh air on the porch. 26
Dimensions & Key Features
- Total Heated Area: ~1,491 sq ft 27
- Bedrooms: 2 28
- Bathrooms: 2 full 29
- Stories: Single level 30
- Garage: 3-car attached (~1,139 sq ft unheated) 31
- Front Porch: ~104 sq ft 32
- Side Porch: ~89 sq ft 33
- Rear Porch: ~156 sq ft 34
- Width: ~93′-6″ 35
- Depth: ~48′-5″ 36

Lifestyle Highlights
- Open living layout that encourages family togetherness and entertaining.
- Large kitchen with central island for casual meals and social moments.
- Primary suite that combines privacy with everyday convenience.
- Secondary bedroom that adapts to guests or flexible uses like office space.
- Massive garage/workshop ideal for vehicles, projects, or storage.
- Expansive porch areas that support relaxed outdoor living and play zones.
- Thoughtful utility spaces that keep daily routines organized. 37

Estimated U.S. Build Cost (USD)
Assuming typical U.S. barndominium construction costs of around **$140–$220 per sq ft**, building this ~1,491 sq ft barndominium plan could range between **$209,000 and $328,000 USD** (excluding land cost, permits, site preparation, and regional variations). 38

Why This Barndominium Plan Works
This barndominium design merges comfortable living spaces with expansive garage and porch areas, offering flexibility for living, working, and storage. Its open layout, strong indoor-outdoor connections, and workshop-friendly garage make it ideal for homeowners who appreciate multifunctional space without sacrificing style or comfort.












