This expansive and unique home offers approximately 3,226 square feet of heated living space with three bedrooms and 2.5 bathrooms. The layout featured in
this barndominium house plan blends rustic barn-style architecture with modern residential comfort, creating a bold and highly functional living space.
Striking Barndominium Exterior
The exterior showcases a barn-inspired design with a large rectangular footprint, metal roofing, and clean vertical lines. This style is both durable and visually distinctive, offering a modern take on rural living.

With overall dimensions of approximately 80 feet wide and 60 feet deep, the home is ideal for large plots and open landscapes.
Spacious Two-Story Layout
This home features a two-story design, maximizing interior space while maintaining a practical footprint. The total 3,226 square feet of living space is divided between a generous main floor and an upper level.

This layout allows for clear separation between living, entertaining, and private areas.
Open-Concept Great Room
The heart of the home is a large open-concept great room that connects the living area, dining space, and kitchen.
High ceilings and wide open spaces create a bright and airy environment, perfect for gatherings and everyday comfort.
Modern Kitchen with Island
The kitchen is designed as a central feature of the home, offering:
- Large kitchen island for prep and seating
- Ample counter space
- Efficient storage and layout
This setup supports both daily use and entertaining on a larger scale.

Three Spacious Bedrooms
This home includes three bedrooms, providing comfortable living for families or guests.
The primary suite is typically located on the main floor, while additional bedrooms may be positioned upstairs for added privacy.

Two and a Half Bathrooms
The design includes two full bathrooms and one half bathroom, ensuring convenience throughout the home.
This layout is ideal for both daily routines and hosting visitors.
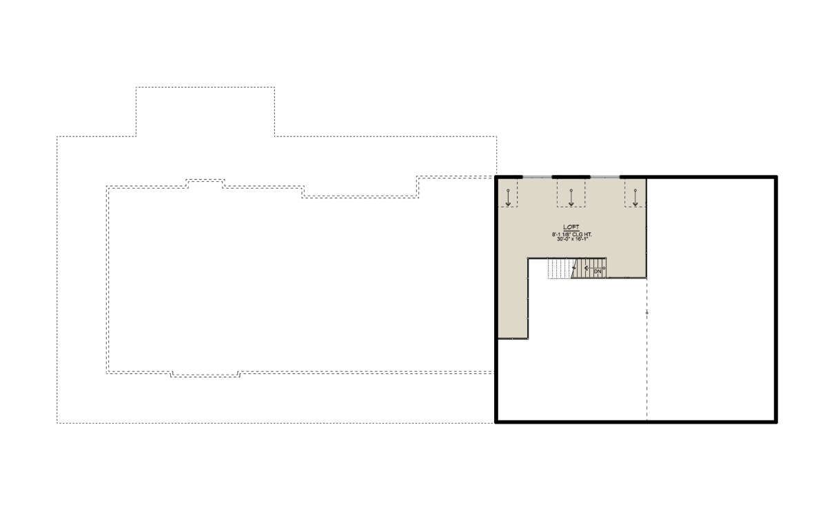
Loft and Flexible Upper Space
The upper level often includes a loft area, which can be used as:
- A second living room
- Home office
- Entertainment or hobby space
This adds flexibility and enhances the overall functionality of the home.

Large Garage and Workshop Potential
A standout feature of this barndominium is the inclusion of a large garage or shop space, offering room for vehicles, tools, or even a workshop.
This makes the home ideal for homeowners who need extra storage or workspace.

Outdoor Living and Open Space
The design allows for generous outdoor living opportunities, including patios or covered areas that extend the living space outside.
These spaces are perfect for relaxing, entertaining, or enjoying scenic surroundings.

Durable and Cost-Effective Construction
Barndominiums are known for their durable construction and efficient building methods. The simple structural design can help reduce construction time while maintaining strength and longevity.
This makes the home both practical and cost-effective over time.
Smart and Versatile Design
This home is designed to offer flexibility, space, and functionality. The open layout, large rooms, and additional workspaces make it suitable for a variety of lifestyles.
It is especially ideal for homeowners seeking a modern rural home with both living and working space.

Dimensions and Key Details
- Total Living Area: 3,226 square feet
- Bedrooms: 3
- Bathrooms: 2.5
- Stories: 2
- Garage/Shop: Large multi-use space
- Width: 80 feet
- Depth: 60 feet

Estimated Building Cost (USD)
- Low estimate: ~ $387,120 (assuming ~$120 per sq ft × 3,226 sq ft)
- High estimate: ~ $580,680 (assuming ~$180 per sq ft × 3,226 sq ft)

This barndominium house plan offers a perfect combination of space, durability, and modern comfort. With its expansive layout, flexible living areas, and workshop potential, it is an excellent choice for building a unique and highly functional dream home.












