This expansive and versatile home offers approximately 3,190 square feet of heated living space with three bedrooms and 2.5 bathrooms. The layout featured in
this barndominium house plan combines rustic barn-inspired architecture with modern residential comfort, making it ideal for homeowners who want both living space and functionality. 0

Large and Striking Barndominium Exterior
The exterior features a bold barn-style design with a wide rectangular footprint and durable construction. This style is known for its strength, simplicity, and long-lasting materials.
With overall dimensions of approximately 110 feet wide and 60 feet deep, the home is best suited for large plots and open landscapes. 1
1.5-Story Spacious Layout
This home is designed as a 1.5-story residence, offering a combination of main-level living and additional upper-level space. 2

The 3,190 square feet is divided into:
- Main floor: ~2,400 sq ft
- Upper/loft area: ~790 sq ft
This layout provides flexibility and separation between living and private areas. 3
Open-Concept Living Area
The main living space features a large open floor plan connecting the living room, dining area, and kitchen.
This design enhances natural light and creates a spacious, airy environment perfect for entertaining and family gatherings.
Modern Kitchen with Island
The kitchen is centrally positioned and designed for both style and efficiency. It includes:
- Large kitchen island
- Open layout connecting to living areas
- Ample storage and workspace
This setup makes the kitchen a central hub of the home. 4

Three Spacious Bedrooms
This home includes three bedrooms, offering comfortable space for families or guests. 5
The primary suite is located on the main floor, while additional sleeping areas may be positioned for added privacy.
Split-Bedroom Layout
The design features a split-bedroom layout, separating the primary suite from the other bedrooms.
This arrangement enhances privacy and comfort within the home. 6
Two and a Half Bathrooms
The home includes two full bathrooms and one half bathroom, ensuring convenience for both residents and visitors. 7
This setup supports smooth daily routines.
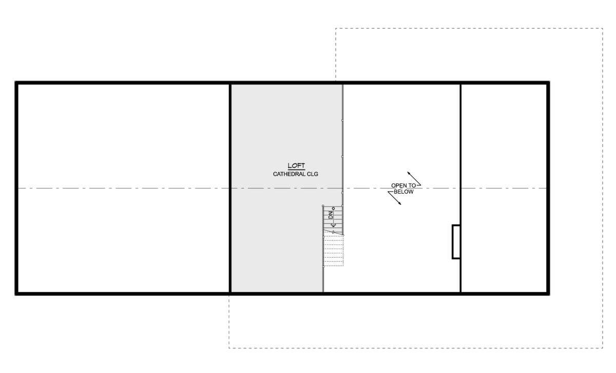
Loft and Flexible Upper Space
The upper level includes a loft area, which can be used as:
- Second living room
- Home office
- Entertainment or hobby space
This adds flexibility and expands usable living space. 8


Massive 4-Car Garage with Workshop Potential
A standout feature of this plan is the 4-car garage, offering approximately 1,600 square feet of space. 9
This area is ideal for:
- Multiple vehicles
- Workshop or storage
- Equipment or business use



Wraparound Porch and Outdoor Living
The design includes generous outdoor living areas such as a wraparound porch, along with front and rear porch spaces. 10
These spaces extend the living area outdoors and are perfect for relaxing or entertaining.
Durable and Efficient Construction
This home uses 2×6 wood framing and a simple structural design that enhances durability and energy efficiency. 11
Barndominiums are known for their cost-effective construction and long-term strength.
Smart and Versatile Design
This home is designed to offer both luxury and practicality. The large garage, open living spaces, and flexible loft area make it suitable for a variety of lifestyles.
It is especially ideal for homeowners who need both living space and workspace in one structure.


Dimensions and Key Details
- Total Living Area: 3,190 square feet
- Bedrooms: 3
- Bathrooms: 2.5
- Stories: 1.5
- Garage: 4-car (approx. 1,600 sq ft)
- Width: 110′
- Depth: 60′


Estimated Building Cost (USD)
- Low estimate: ~ $382,800 (assuming ~$120 per sq ft × 3,190 sq ft)
- High estimate: ~ $574,200 (assuming ~$180 per sq ft × 3,190 sq ft)

This barndominium house plan offers a perfect combination of space, durability, and flexibility. With its large layout, massive garage, and modern open design, it is an excellent choice for building a unique and highly functional dream home.
“`12












