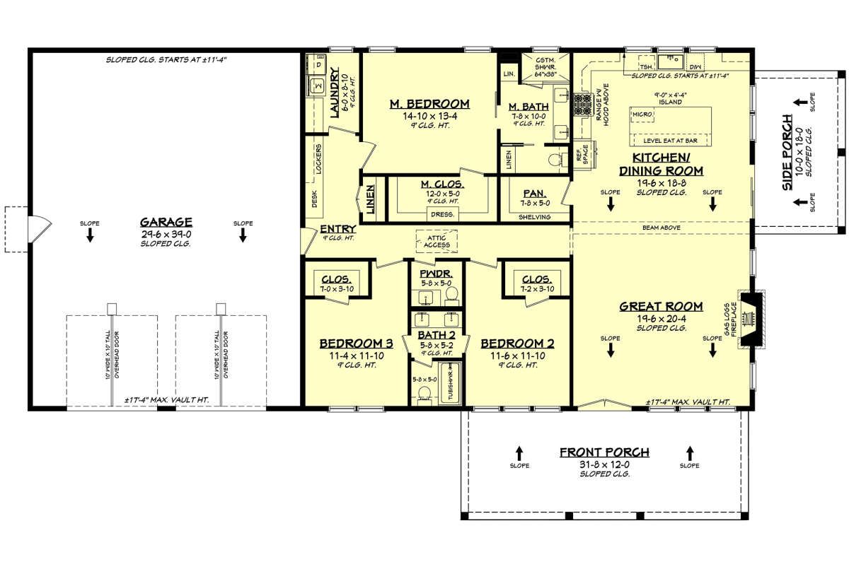
This modern barndominium design offers approximately 2,000 square feet of heated living space with three bedrooms, two full bathrooms, and one half bathroom. The layout featured in
this barndominium plan combines rustic barn-inspired architecture with clean modern functionality, making it ideal for families who want open living and efficient use of space.

Bold Barndominium Exterior
The exterior reflects a classic barndominium style with a wide, rectangular footprint measuring approximately 90 feet wide and 52 feet deep. ([houseplans.net](https://www.houseplans.net/floorplans/04100388/barndominium-plan-2000-square-feet-3-bedrooms-2.5-bathrooms)) Its metal-inspired structure and simple rooflines give it a strong, practical appearance while still maintaining modern curb appeal.
A large covered porch enhances the front elevation, offering a welcoming outdoor transition space that fits the rural-modern lifestyle of barndominium living.
Open and Functional Floor Layout
The entire 2,000 square feet of living space is arranged on a single level for maximum convenience. ([houseplans.net](https://www.houseplans.net/floorplans/04100388/barndominium-plan-2000-square-feet-3-bedrooms-2.5-bathrooms)) The design emphasizes open areas, high functionality, and smooth flow between rooms, making it feel larger than its actual footprint.

The layout separates private bedrooms from the main living zones while keeping the central areas open and connected.
Expansive Great Room Concept
The heart of this home is a large open-concept great room that combines living, dining, and kitchen spaces into one unified area. This design encourages natural light flow and creates a spacious, airy environment perfect for family gatherings and entertaining.
The ceiling height of approximately 9 feet adds to the open feel while maintaining energy efficiency and structural balance. ([houseplans.net](https://www.houseplans.net/floorplans/04100388/barndominium-plan-2000-square-feet-3-bedrooms-2.5-bathrooms))
Functional Kitchen with Island
The kitchen is designed for both practicality and social interaction, featuring a central island that provides additional workspace and seating options. ([houseplans.net](https://www.houseplans.net/floorplans/04100388/barndominium-plan-2000-square-feet-3-bedrooms-2.5-bathrooms))
Its open connection to the dining and living areas makes it ideal for modern family life, where cooking and socializing happen simultaneously.

Three Comfortable Bedrooms
This plan includes three bedrooms, thoughtfully arranged for privacy and convenience. The primary suite is designed as a private retreat, while the additional bedrooms are located nearby but separated enough to maintain quiet and comfort.
The flexible layout allows one of the secondary bedrooms to function as a home office or guest room if needed.
Bathrooms Designed for Convenience
The home includes two full bathrooms and one half bathroom, ensuring smooth daily routines for both residents and guests. ([houseplans.net](https://www.houseplans.net/floorplans/04100388/barndominium-plan-2000-square-feet-3-bedrooms-2.5-bathrooms))
The half bath is especially useful for guests, while the full bathrooms support family use without congestion during busy mornings.

Practical Barndominium Features
- Two-car garage: Integrated into the design for storage and vehicle protection. ([houseplans.net](https://www.houseplans.net/floorplans/04100388/barndominium-plan-2000-square-feet-3-bedrooms-2.5-bathrooms))

- Open floor plan: Maximizes usable space and natural lighting.
- Single-story layout: Easy accessibility and long-term convenience.
- Wide footprint: Efficient rectangular shape ideal for flat land.
- Large porch areas: Extend living space outdoors for relaxation and entertaining.

Dimensions and Structural Details
- Total Living Area: 2,000 square feet
- Bedrooms: 3
- Bathrooms: 2.5
- Garage: 2-car
- Width: 90′
- Depth: 52′
- Ceiling Height: 9 feet
- Construction: 2×6 wood framing
The plan typically supports multiple foundation types, including slab, crawlspace, or basement options depending on site conditions and homeowner preference. ([houseplans.net](https://www.houseplans.net/floorplans/04100388/barndominium-plan-2000-square-feet-3-bedrooms-2.5-bathrooms))
Estimated Building Cost (USD)
- Low estimate: ~ $240,000 (assuming ~$120 per sq ft × 2,000 sq ft)
- High estimate: ~ $360,000 (assuming ~$180 per sq ft × 2,000 sq ft)

This barndominium plan is ideal for homeowners seeking a balance between rustic charm and modern efficiency. Its open layout, wide structure, and practical features make it a strong choice for comfortable family living with a distinctive architectural style.
“`0













