This striking angled Craftsman home offers approximately 2,767 square feet of heated living space with three bedrooms and two-and-a-half bathrooms, with the flexibility to expand to four bedrooms and additional bathrooms. Designed as a single-story residence with bonus space above the garage, this plan combines traditional Craftsman charm with a dynamic layout that enhances both curb appeal and functionality. 0

Exterior Design
The exterior stands out with its distinctive angled layout, giving the home a unique and eye-catching presence. This design not only enhances visual appeal but also improves how the home fits on a lot, especially for corner or irregular sites. 1
Classic Craftsman elements such as gabled rooflines, natural materials, and a welcoming façade create a timeless look. The angled garage further adds architectural interest while improving driveway access and functionality.

Interior Layout Overview
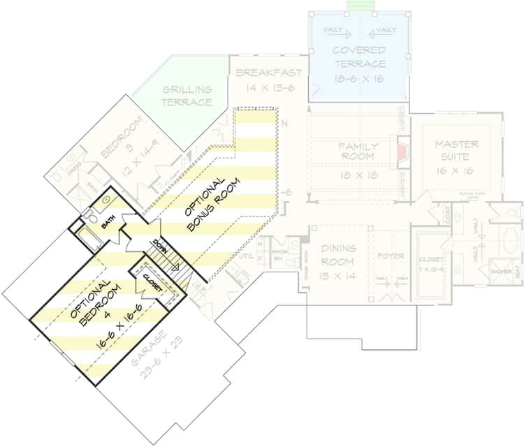
The main level contains all 2,767 square feet of primary living space, designed for comfort and efficient flow. The layout centers around shared living areas, while bedrooms are arranged to maximize privacy.
An upper-level bonus space provides room for expansion, including the possibility of an additional bedroom or flexible living area, making the home adaptable to changing needs. 2
Main Living Area
The heart of the home features a spacious great room designed for both relaxation and entertaining. Its open connection to the kitchen and dining areas creates a seamless flow that enhances everyday living.
Large windows and open sightlines allow natural light to fill the space, making the interior feel bright and welcoming.
Kitchen and Dining
The kitchen is centrally located and designed for both functionality and style. It includes generous counter space, a central island, and easy access to the dining area.
The adjoining dining space provides a comfortable setting for family meals while maintaining a strong connection to the main living area.
Bedrooms
This home includes three main-floor bedrooms, including a private primary suite designed as a relaxing retreat. The suite offers comfort, space, and convenient access to its own bathroom.
The additional bedrooms are positioned to provide privacy and flexibility, making them suitable for family members, guests, or home office use.
Bathrooms
The design includes two full bathrooms and a half bathroom on the main level. Additional bathroom space can be incorporated into the bonus area if expanded, increasing the home’s overall functionality.
Functional Features
- Angled layout: Enhances curb appeal and improves lot placement. 3
- Single-story living: Main living areas are all on one level.
- Open-concept design: Promotes flow between kitchen, dining, and living spaces.
- Bonus room: Allows for future expansion or additional bedroom. 4
- Craftsman styling: Combines natural materials with timeless design.
- Flexible layout: Adapts to changing family needs over time

- .
Garage and Additional Space
The attached two-car garage is integrated into the angled design, offering both convenience and additional storage space. Its positioning enhances accessibility while contributing to the home’s unique exterior appearance.
The bonus space above the garage adds versatility, making it ideal for a guest suite, office, or recreation room.
Dimensions and Structural Details
The home features a wide and dynamic footprint shaped by its angled design, creating a visually appealing structure that stands out from traditional layouts.
Craftsman homes typically emphasize durable construction, natural materials, and thoughtful detailing, resulting in a warm and inviting living environment.

Estimated Building Cost (USD)
Construction costs vary depending on materials, labor, and location. Using common mid-range estimates:
- Low estimate: ~ $332,040 (assuming ~$120 per sq ft × 2,767 sq ft)
- High estimate: ~ $498,060 (assuming ~$180 per sq ft × 2,767 sq ft)
This angled Craftsman house plan offers a perfect blend of character, flexibility, and modern comfort. Its unique layout, expandable design, and spacious living areas make it an excellent choice for homeowners seeking a distinctive and adaptable home.

“`5











