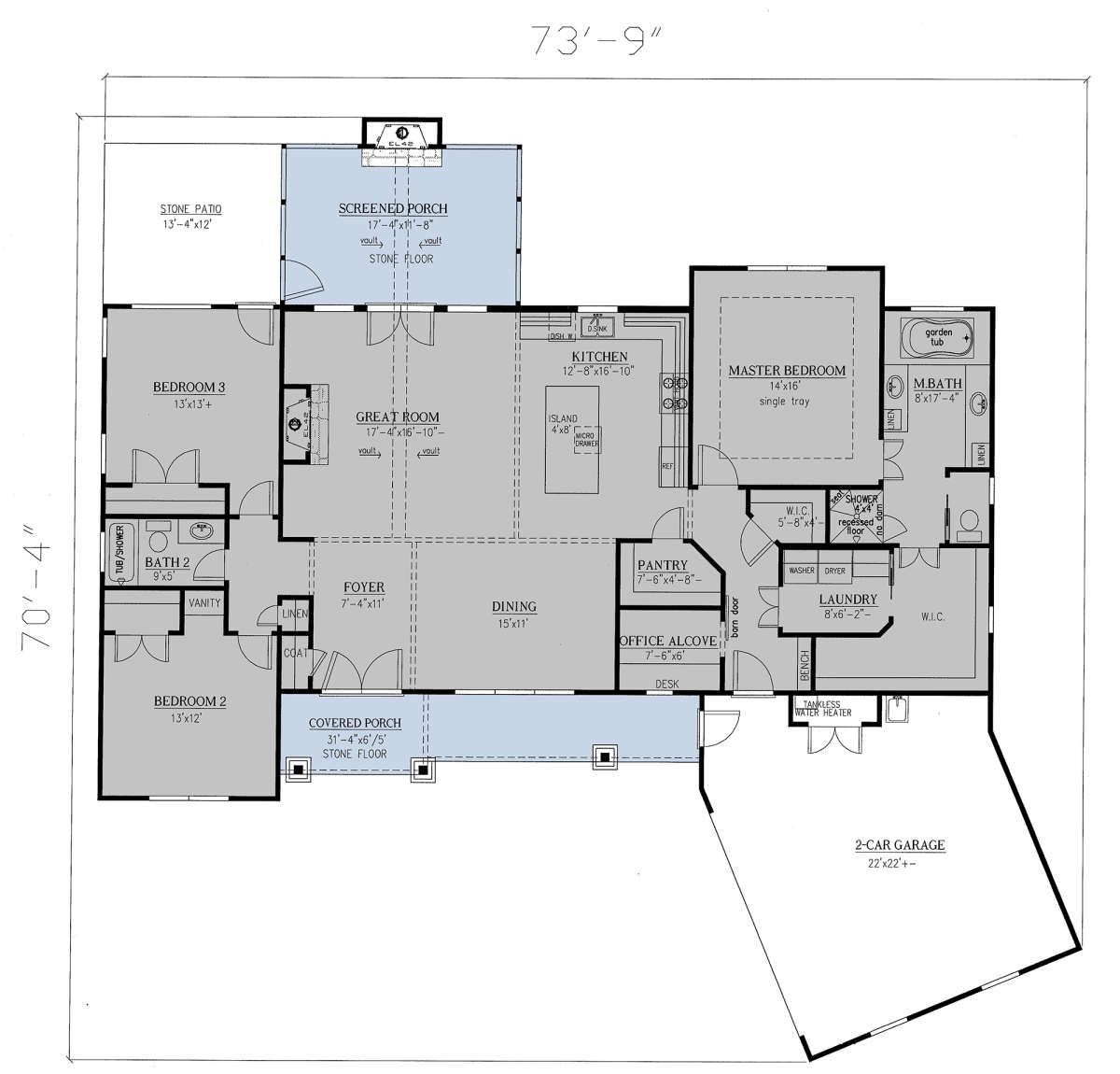
This charming farmhouse plan spreads about 2,096 sq ft of heated living space on one level, offering a relaxed and efficient layout with 3 bedrooms, 2 full bathrooms, and an attached 2-car garage. Designed for everyday family life, entertaining, and thoughtful flow between indoor and outdoor spaces, this plan blends classic farmhouse character with modern functionality and convenience. 0

Exterior & Curb Appeal — Inviting, Balanced & Timeless
The exterior conveys a traditional farmhouse silhouette with clean lines and generous porch spaces. The home is roughly 73′ 9″ wide × 70′ 4″ deep — a balanced footprint that suits many suburban, rural, or semi-rural lots. 0 A covered front porch provides a welcoming entrypoint, setting the tone for relaxed daily living and neighborly greetings. 0

60
Indoor-Outdoor Living — Porches & Flow
Outdoor living plays a starring role here. A covered rear porch and additional screened porch extend living spaces outward, perfect for morning coffee, summer dinners, or quiet evenings. 0 These outdoor areas enhance everyday comfort and create easy indoor-outdoor flow with the main living spaces. 0
Main Living Area — Open, Bright & Social
Entering the home leads straight into a warm, open-concept living area that beautifully connects the great room, kitchen, and dining space. 0 Vaulted or raised ceilings above the living zone create a sense of volume, while generous windows draw in natural light to brighten the interior throughout the day. 0
The kitchen is well-appointed for family life and entertaining alike: a center island anchors the space with casual seating and prep room, and a walk-in pantry keeps everyday essentials organized and close at hand. 0
Bedrooms & Private Spaces — Comfortable & Thoughtful Layout
The master suite is designed as a quiet retreat on one side of the home. It includes a peaceful bedroom space, a full bathroom with well-planned features, and a generous closet — perfect for daily routines. 0 On the opposite wing, two secondary bedrooms share a thoughtfully located full bathroom, making this layout ideal for families, guests, or flexible uses like a home office or hobby room. 0
Utility & Everyday Living — Practical Moves That Matter
A mudroom just inside from the garage helps keep clutter and gear out of sight, while the laundry room is placed near the bedrooms for easy weekday routines. 0 Built-in storage and closets are woven throughout the plan to enhance organization without interrupting function or flow. 0

Garage & Storage — Functional & Convenient
The attached two-car garage offers secure vehicle parking and useful storage space for tools, outdoor gear, or seasonal items. Interior access makes unloading errands and everyday movement easier — especially during inclement weather. 0

Plan & Specs Summary
- Total Heated Area: ~2,096 sq ft 0
- Bedrooms: 3 0
- Bathrooms: 2 full 0
- Garage: 2-car attached 0
- Stories: 1 (single-level) 0
- Dimensions: ~73′ 9″ wide × ~70′ 4″ deep 0
- Outdoor Living: Covered front porch + rear porch + screened porch 0
- Layout Highlights: Open great room/kitchen/dining, split bedrooms, walk-in pantry, mudroom and laundry convenience. 0

Lifestyle Benefits — Easy, Comfortable & Flexible
- Open social spaces: The great room, kitchen, and dining areas are connected for natural interaction, whether your family is gathering for meals or hosting friends.
- Private bedroom wings: Split bedroom design gives the master suite a sense of separation and privacy from secondary bedrooms.
- Indoor-outdoor freedom: Front, rear, and screened porches extend living space outdoors for intimate moments or larger gatherings.
- Functional utility spaces: Mudroom and laundry placements help keep daily rhythms organized without disrupting the home’s flow.
- Balanced footprint: A manageable ~2,096 sq ft single-story layout that still feels roomy and complete for everyday living.

Estimated U.S. Build Cost (USD)
Assuming mid-range finishes and typical U.S. residential construction costs of around $170–$240 per sq ft, building this ~2,096 sq ft farmhouse could fall in the range of **$356,000–$503,000 USD** (excluding land, site preparation, permits, utilities, and regional cost variation). 0

Why This Farmhouse Plan Works — Classic, Comfortable & Everyday Smart
This farmhouse plan blends warmth, everyday convenience, and a smart layout into a home that feels well-rounded without being overly large. From open social spaces and private bedroom zones to covered porches that stretch your living space outdoors, it’s designed for real family life. Whether you’re headed into a busy morning or prepping for a relaxed weekend, this home supports you with style, function, and thoughtful flow. 0












