This barndominium-style farmhouse delivers about 2,400 sq ft of heated living space. Inside you get 4 bedrooms, 3.5 baths, and a large attached 3-car garage (~932 sq ft). With a wraparound porch, vaulted main living area, flexible layout and storage-smart design, it’s ideal for a family wanting comfort, practicality and rustic-modern charm. 0
Exterior & Curb Appeal — Rustic Barndo Style With Farmhouse Warmth
The exterior blends farmhouse and barndominium cues: board-and-batten siding, stone facade details, a metal porch roof, and exposed rafter tails on the wraparound porch — a mix that gives the house character and welcoming curb appeal. 0

With overall dimensions roughly 98′ wide × 52′ deep, the footprint remains manageable while offering generous width — a practical fit for suburban or rural settings. 1 The wraparound porch adds charm and outdoor living potential without sacrificing indoor space. 2
Great Room, Vaulted Ceilings & Open Flow — Spacious, Light-Filled Core
Entering the home brings you into a vaulted main living area that forms the center of daily life. The high ceilings and open layout foster a sense of volume and light, making the house feel more expansive than the square footage might suggest. 3

The living space flows naturally into the dining and kitchen zones, creating a social, connected environment — ideal for family life, entertaining, or relaxed everyday living. 4
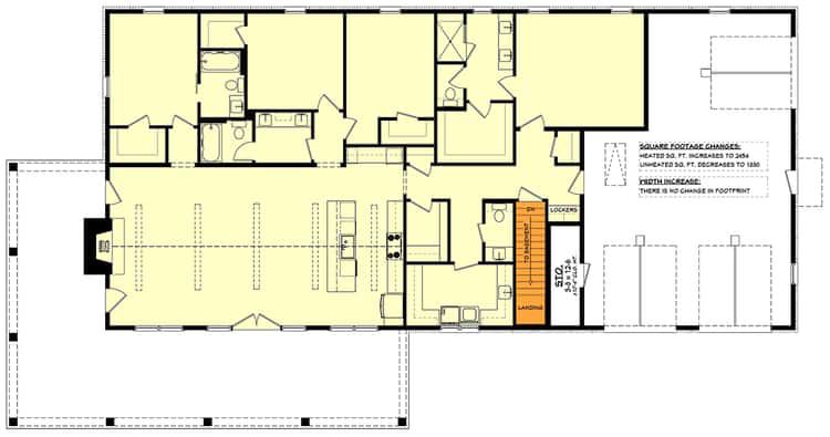
Kitchen, Pantry & Storage — Built for Real-Life Use
The kitchen is designed with functionality in mind. It features a large open layout and a generous walk-in pantry, giving ample storage for groceries, cookware, and extras — perfect for busy households. 5
Adjacent storage areas and well-planned traffic flow help make daily tasks smooth and efficient, keeping clutter out of the main living spaces. 6
Bedrooms & Sleeping Layout — Balanced for Family, Guests or Flexibility
The plan includes four bedrooms and three full baths plus one half bath — a generous setup for a 2,400 sq ft home. 7 Bedrooms are clustered for convenience, making this layout suitable for families, guests, or mixed-use households. 8
This arrangement provides flexibility: sleeping quarters, guest rooms, or even home-office use depending on your household’s needs. 9

Garage, Utility & Build Details — Practical Foundations for Daily Life
- Garage: 3-car attached (~932 sq ft), offering ample space for vehicles, storage, or even a workshop. 10
- Construction: Conventional wood framing with 2×6 exterior walls, providing structural sturdiness and good insulation potential. 11
- Foundation: Slab foundation — simplifying construction and offering durability. 12
- Porch / Outdoor Space: A wraparound porch combining front and side/rear porches, totaling about ~844 sq ft of porch area. 13
- Ceiling Height: Main floor standard 10′ ceilings, with vaulted living area for enhanced volume and presence. 14

Lifestyle Highlights — What Makes This Plan Shine
- Rustic-style living with modern functionality: The barndominium exterior and wraparound porch give country charm while the interior remains practical and efficient.
- Open, social heart of home: Vaulted great room, open kitchen and dining — perfect for family gatherings or entertaining friends.
- Flexible sleeping/room use: Four bedrooms and multiple baths offer flexibility for families, guests, or home-office/bonus-room conversion.
- Generous storage and garage space: Large pantry, storage, and three-car garage cover everyday needs and more.
- Indoor-outdoor flow: Wraparound porch brings outdoor relaxation and living into everyday life — ideal for morning coffee, evening dinners, porch lounging.
- Compact footprint with generous amenities: At 2,400 sq ft, the home balances manageable size with generous living and utility features.

Estimated U.S. Build Cost (USD)
Assuming a typical U.S. residential construction cost of about $180–$260 per sq ft (mid-to-upper quality finishes), building ~2,400 sq ft suggests a rough estimated build cost of **$432,000–$624,000 USD** (excluding land, site prep, permits, utilities, and region-dependent cost variation). Given the wraparound porch, 3-car garage, and structural features, actual cost may lean toward the upper part of that range. 1

Why This Plan Could Be Perfect for You — A Balanced Home with Charm, Space & Function
This 4-bed modern farmhouse barndominium plan hits a sweet spot between rustic charm and modern living. With a spacious yet efficient layout, large porch for outdoor living, generous storage and garage space, and flexible room configurations — it’s ideal for families, guests, hobbyists, or anyone who values a home that’s comfortable, practical, and full of character. Whether for everyday living or weekend gatherings, this design offers a warm base for a lifetime of memories.












