This welcoming mountain-inspired cabin home plan offers approximately 1,811 square feet of heated living space with three bedrooms and two full bathrooms, wrapped in a striking rustic-contemporary exterior defined by natural wood siding and sleek metal roof details. ([architecturaldesigns.com](https://www.architecturaldesigns.com/house-plans/3-bed-cabin-home-plan-with-vaulted-great-room-and-wrap-around-porch-1811-sq-ft-311060rmz)) 0

Exterior Design
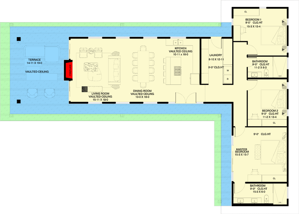
The façade blends classic mountain cabin charm with modern lines, showcasing natural wood siding and large, energy-filled windows that connect indoor spaces to the surrounding landscape. A dramatic wrap-around porch totaling about 1,100 square feet becomes a signature outdoor gathering space — perfect for morning coffee, evening relaxation, or enjoying scenic views. 1
The home’s generous footprint spans roughly 82′ 4″ wide by 56′ 10″ deep, and it features a vaulted terrace with an outdoor fireplace that further enhances outdoor living. 2

Interior Layout Overview
An open, flowing interior welcomes you from the side foyer into an expansive L-shaped layout that highlights the connection between living, dining, and kitchen spaces while maintaining privacy for the sleeping wing. Natural light floods the great room and kitchen, creating an inviting environment for daily living and entertaining. 3
Main Living Area
The heart of this plan is the great room — defined by dramatic vaulted ceilings reaching about 14′ 8″ and framed by floor-to-ceiling windows that maximize light and views. This vaulted space flows seamlessly into the dining area and chef’s kitchen, which features a central island and intuitive work zones. 4
The open layout encourages interaction and supports everyday routines or casual entertaining, all within a comfortable and visually connected space. 5
Bedrooms
This plan includes three well-sized bedrooms clustered in a private wing, creating a restful retreat separate from the social zones. The master suite is located at the far end for maximum privacy and includes its own full bathroom. 6

The two additional bedrooms share a well-placed full bathroom and are situated near the laundry area for everyday convenience. 7
Bathrooms
Two full bathrooms serve the home’s occupants. The master bathroom provides a private ensuite experience, while the second bathroom offers easy shared access for the secondary bedrooms and guests. 8

Functional Features
- Open floor plan with vaulted ceilings: Enhances visual spaciousness and encourages fluid movement between living zones. 9
- Wrap-around porch: Expands outdoor living area for relaxation and entertainment. 10
- Clustered bedroom wing: Promotes privacy and functional separation from common spaces. 11

- Main-level laundry/mudroom: Offers practical utility and gear storage. 12
- Outdoor fireplace on terrace: Creates an inviting outdoor focal point. 13
Dimensions and Structural Details
The heated area of approximately 1,811 square feet is arranged on a single level, making daily routines efficient and accessible. Exterior walls use sturdy 2×6 framing, and standard crawlspace foundation options support site-adaptable construction. 14

Ceiling heights throughout the main living space help create a bright and open atmosphere, while private spaces are proportioned for comfort and rest. 15

Estimated Building Cost (USD)
Construction costs depend on regional labor and material markets, finish selections, and site conditions. A typical moderate build range might look like:
- Low estimate: ~ $217,320 (assuming ~$120 per sq ft × 1,811 sq ft)
- High estimate: ~ $325,980 (assuming ~$180 per sq ft × 1,811 sq ft)

These figures represent a general range — final costs can vary depending on local construction costs and custom finish choices. 16
“`17














