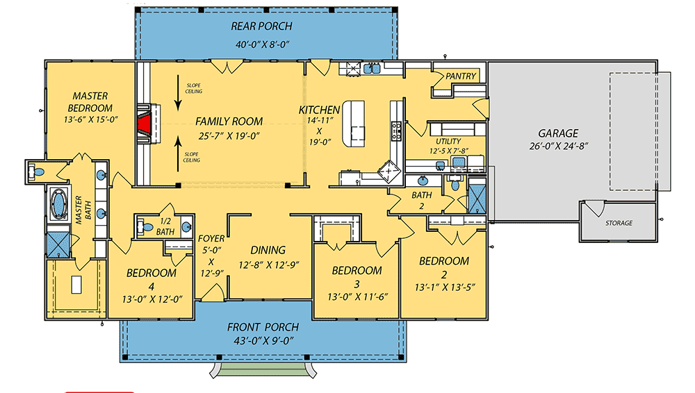
This inviting one-level country-style home delivers approximately 2,677 sq ft of living space — ideal for families seeking comfort, practicality, and laid-back country charm. The plan includes 4 bedrooms, 2.5 bathrooms, and thoughtful design features like a wide covered porch, a well-equipped kitchen with walk-in pantry and large island, and a layout that separates bedrooms for privacy and flexibility. 0

Exterior & Curb Appeal — Country Comfort with Welcoming Porch & Clean Lines
The home presents a classic country-house vibe, topped with a metal roof and framed by a broad covered porch that spans the front facade — a perfect place for quiet mornings, friendly chats, or simply chilling with a cold drink on a warm afternoon. 0 The modest, clean proportions make it well-suited for both rural and suburban lots. The porch and roof details combine to give the home an approachable yet handsome presence. 1

Living Space & Flow — Vaulted Family Room, Open Kitchen & Easy Everyday Living
Step inside and you’re greeted by a vaulted-ceiling family room that serves as the heart of the home — a generous space where light and airiness pair with warmth to create a welcoming vibe. 2 The sloped ceiling gives added volume without over-building, offering the feeling of openness and comfort in a single-story layout. 3

The living room flows directly into the kitchen and dining area — a layout that encourages togetherness and easy movement through daily routines. The kitchen is designed for both function and family life, with a large island, ample counter space, and a walk-in pantry for storage and organization. 4

Bedrooms & Private Zones — Thoughtful Layout with Balanced Privacy
The plan splits bedrooms on either side of the house — two on one side, two on the opposite — which helps separate sleeping areas for privacy and quiet. 5 This division works well for families, guests, or multi-generational living by giving personal space without sacrificing shared living areas. 6

The master suite includes a generous walk-in closet with built-in storage, adding a practical touch that enhances daily comfort. 7 Bathrooms are easily accessible yet discreetly placed so family routines and guest stays stay comfortable and organized. 8

Outdoor Living & Porches — Easy Indoor-Outdoor Relaxation
A wide back covered porch is accessible from the main living area — a perfect spot to relax, dine outdoors, or enjoy the weather in comfort and shade. 9 This adds valuable outdoor living space without complicating the layout — ideal for warm evenings, weekend meals, or simple quiet time outdoors. 10

Practical Layout & Everyday Convenience — Designed for Real Life
- Single-level living: All main living, bedrooms, and utilities on one floor — convenient, accessible, and ideal for families or aging-in-place living. 11
- Functional kitchen & storage: The walk-in pantry and spacious kitchen with large island help keep daily life organized and efficient. 12

- Balanced privacy: Bedrooms separated by living space, giving occupants quiet when needed, while shared zones remain central and open. 13
- Outdoor flexibility: Covered porch — front and back — extends living space and offers relaxed outdoor enjoyment without much extra maintenance. 14

Specs Summary
- Heated Living Area: ~2,677 sq ft 1
- Bedrooms: 4 2
- Bathrooms: 2.5 (2 full + 1 half) 3
- Stories: Single-level 4
- Main Living Features: Vaulted family room, open kitchen with large island + walk-in pantry, vaulted/sloped ceilings in main living, balanced bedroom layout with closet storage. 5
- Outdoor Features: Wide covered front porch, back covered porch — perfect for outdoor living and relaxing. 6
- Roof & Ceiling: Metal roof; 10′ standard ceiling height, sloped ceiling in family room for spacious feel. 7

Lifestyle Benefits — Who This Home Works Best For
- Families wanting comfort & flexibility: Four bedrooms give space for children, guests, or even a home office, while shared living areas remain central and welcoming.
- Those loving casual indoor-outdoor living: Covered porches front and back invite relaxed meals, outdoor lounging, or enjoying a quiet moment outside.
- One-story convenience: Everything on a single level — ideal for families with small children, older adults, or anyone who prefers to avoid stairs.
- Balanced life rhythms: Open, connected living encourages family time and togetherness, while bedroom separation ensures privacy and restful sleep.
- Simple, classic charm: Country styling with modern touches — a home that feels cozy, grounded, and timeless without excessive ornamentation or upkeep.

Estimated U.S. Build Cost (USD)
Assuming a U.S. mid-range residential construction cost between $180–$260 per sq ft, building ~2,677 sq ft gives a rough estimated cost of **$482,000–$697,000 USD** (excluding land, site work, permits, and local variations). 8
Why This Plan Is Worth Considering — Practical, Cozy & Adaptable
This one-level country house plan strikes a comfortable balance between spacious living and straightforward design. With a bright vaulted family room, open kitchen and dining, well-placed bedrooms for privacy, and porches front and back for outdoor living — it’s a home built for real life. The simple but lovely country-house exterior and functional layout make it ideal for families, couples, or anyone wanting a warm, adaptable home that feels timeless.












