This charming mountain-inspired home plan offers approximately 1,952 square feet of thoughtfully arranged living space featuring three bedrooms, two full bathrooms, one half bathroom, and a flexible 1.5-story layout that blends rustic exterior appeal with modern interior comforts. Designed with both everyday living and weekend retreat vibes in mind, this house plan brings natural light and efficient flow throughout the home. 0

Exterior Design
The exterior highlights a classic mountain home aesthetic with a balanced façade, pitched roof surfaces, and generous window placements that invite natural light and connect indoor spaces with the surrounding landscape. With a width of about 43 feet and a depth around 32 feet, it’s compact yet substantial enough to suit a variety of lot sizes when nestled into woodland or hillside settings. 1

Exterior finishes typically combine horizontal and vertical siding options with natural materials like wood or stone accents for a cozy, lodge-like feel. Covered entries or small porch areas enhance the home’s connection to outdoor living. 2
Interior Layout Overview
This mountain house plan emphasizes an open, flowing interior that balances shared living areas with private retreats. The 1.5-story layout provides efficient use of square footage, creating distinct zones for daily life while maximizing interior volume and architectural character. 3
Main Living Area
The heart of the home features a central great room that opens into the dining area and kitchen, fostering connection and visual openness — ideal for family gatherings or entertaining. Large windows ensure abundant natural light while framing scenic outdoor views. 4
The kitchen includes practical workspace, cabinetry, and often a central island for meal prep and casual dining, with easy flow into the adjacent living and dining zones. 5

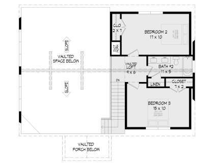
Bedrooms
This plan includes three bedrooms. The primary suite provides a private sanctuary with close proximity to one of the full bathrooms, while the two additional bedrooms offer comfortable, flexible spaces suitable for family members, guests, or use as home offices or hobby rooms. 6
Bathrooms
Two full bathrooms and one half bathroom enhance convenience and everyday functionality. The primary bathroom serves the owner’s suite with direct access, while the remaining full bath supports the secondary bedrooms. A centrally located half bath near the main living areas provides guest convenience without compromising privacy. 7

Functional Features
- Open concept living: Encourages connectivity between living, dining, and kitchen areas. 8
- 1.5-story design: Makes efficient use of vertical space and enhances visual interest. 9
- Natural light & views: Large windows help frame outdoor surroundings and bring light into living spaces. 10
- Functional bedroom layout: Provides privacy and flexibility for all occupants. 11
- Half bathroom: Adds convenience for guests and everyday living. 12

Dimensions and Structural Details
This plan’s total heated area (≈1,952 sq ft) includes a main floor and a partial second floor, creating an open and comfortable environment that’s accessible yet architecturally engaging. 13
Structural framing typically uses 2×6 wood for strength and insulation performance, and foundation options include walkout, slab, or crawlspace based on site conditions. Ceiling heights on the main level (≈10 ft) help create a spacious feel, while upper zones retain a cozy scale. 14

Estimated Building Cost (USD)
Estimated construction costs vary depending on local labor and material markets, finish quality, and site conditions. Using moderate-quality pricing ranges:

- Low estimate: ~ $234,240 (assuming ~$120 per sq ft × 1,952 sq ft)
- High estimate: ~ $351,360 (assuming ~$180 per sq ft × 1,952 sq ft)

These figures provide a general cost range — actual construction expenses may differ based on finish selections, regional pricing differences, and site requirements. 15
“`16












