This compact and efficient cabin-style home offers approximately 1,000 square feet of heated living space with two bedrooms and one full bathroom. The layout featured in
this cabin house plan is designed for simplicity, affordability, and comfortable everyday living. Built as a single-story residence, it is an excellent choice for small families, vacation homes, or minimalist lifestyles. 0
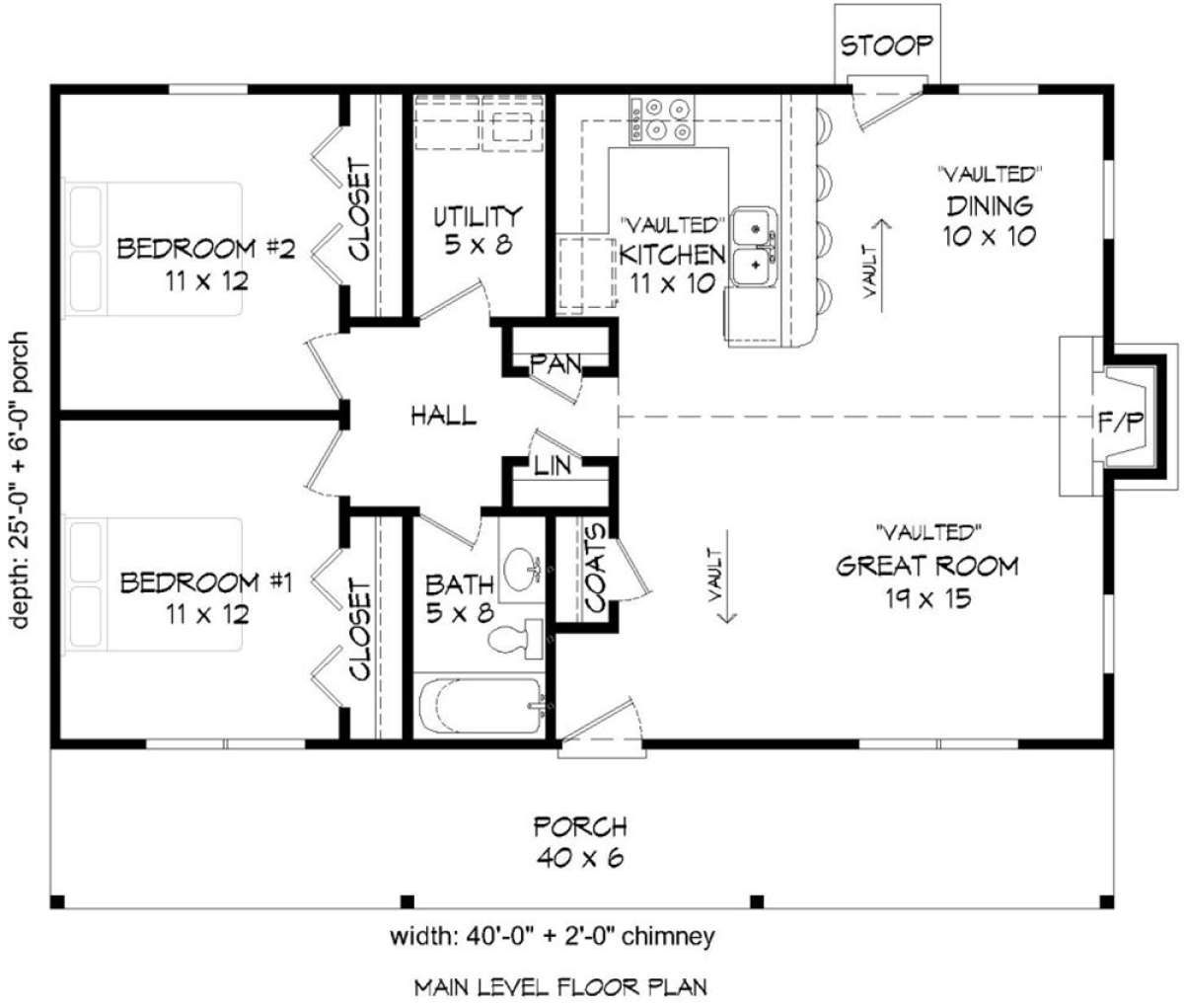
Exterior Design
The exterior reflects classic cabin charm with a compact footprint measuring approximately 42 feet wide and 25 feet 6 inches deep. 1 The simple structure makes it ideal for small plots, rural settings, or nature-focused locations.
A welcoming front porch adds both character and functionality, providing a cozy outdoor space for relaxing while enhancing the home’s overall appeal. 2

Interior Layout Overview
All 1,000 square feet of living space is arranged on one level, ensuring ease of movement and efficient use of every square foot. 3 The layout is carefully planned to minimize wasted space while maintaining comfort.
The design centers around shared living spaces, with bedrooms positioned to provide privacy without isolating them from the main areas.
Main Living Area
The home features an open-concept living area, combining the living room, kitchen, and dining space into one cohesive environment. 4 This layout enhances natural light flow and makes the home feel larger than its actual size.
With standard 8-foot ceilings, the space maintains a comfortable and balanced atmosphere suitable for everyday living. 5

Kitchen and Dining
The kitchen is designed for practicality, offering sufficient counter space and cabinetry for daily use. Its open placement allows easy interaction with the living and dining areas.
The adjacent dining space supports a smooth flow for meals while maintaining the open and connected feel of the home.
Bedrooms
This home includes two bedrooms, both located on the main floor for convenience. 6 The primary bedroom serves as a comfortable retreat, while the second bedroom can function as a guest room, children’s room, or home office.
The layout ensures both rooms are practical and private despite the compact design.
Bathrooms
The plan includes one full bathroom, centrally located for easy access from both bedrooms and the main living area. 7 This simple arrangement enhances efficiency without compromising functionality.
Functional Features
- Single-story layout: Easy accessibility and convenience. 8
- Open floor plan: Maximizes space and natural light. 9
- Front porch: Extends usable living space outdoors.
- Compact footprint: Ideal for small lots or vacation use.
- Efficient design: Minimizes wasted space while maximizing comfort.
- Cabin style: Warm, simple, and timeless appeal.

Garage and Additional Space
This cabin plan does not include a garage, helping to keep construction costs lower and the layout more efficient. 10 However, homeowners can easily add a detached structure if needed.
The straightforward design also makes this home easier and faster to build compared to larger, more complex layouts.
Dimensions and Structural Details
The home measures approximately 42 feet wide and 25 feet 6 inches deep, with a total heated area of 1,000 square feet. 11
It features a 6:12 roof pitch and is typically built using 2×4 wood framing, with optional upgrades available. 12 The plan supports multiple foundation options, including slab, crawlspace, or basement.
Estimated Building Cost (USD)
- Low estimate: ~ $120,000 (assuming ~$120 per sq ft × 1,000 sq ft)
- High estimate: ~ $180,000 (assuming ~$180 per sq ft × 1,000 sq ft)

This cozy cabin house plan is a perfect example of efficient design and practical living. Its compact size, open layout, and rustic charm make it an excellent choice for homeowners looking for an affordable and comfortable home.
“`13












