This beautiful modern transitional home design offers approximately 1,800 square feet of heated living space with three bedrooms and two full bathrooms. The plan blends contemporary architectural simplicity with traditional comfort, creating a home that feels both modern and timeless. Its single-story layout, open living areas, and practical bedroom arrangement make it ideal for families seeking style, comfort, and efficient everyday living. 0
Exterior Design
The exterior presents the clean lines and balanced proportions typical of modern transitional architecture. This style merges modern design elements with traditional home features, resulting in a visually appealing residence that fits comfortably in both suburban neighborhoods and countryside settings.Large windows enhance the façade while allowing natural light to brighten the interior spaces. The home’s wide footprint creates strong curb appeal while maintaining the welcoming appearance that defines transitional architecture.
Interior Layout Overview
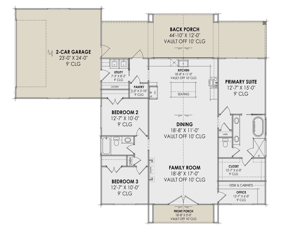
The home’s interior is organized across a single level, placing all 1,800 square feet of living space on the main floor. This layout supports convenient movement throughout the house and eliminates the need for stairs, making it suitable for a wide range of homeowners.The central portion of the home is dedicated to shared living spaces, including the living room, dining area, and kitchen. These rooms flow together in an open arrangement that enhances both comfort and functionality. 1
Main Living Area
The great room serves as the heart of the home and offers a spacious environment for relaxation and entertaining. With open connections to the kitchen and dining areas, this central space allows family members and guests to interact easily while enjoying the bright and airy interior.The kitchen is designed with practicality in mind and typically features generous counter space, storage cabinetry, and a kitchen island. The island provides additional workspace as well as casual seating, making it a popular gathering point within the home.
Bedrooms
This house plan includes three bedrooms. The primary suite is positioned to provide privacy and comfort for homeowners while remaining conveniently connected to the main living areas.The primary bedroom typically includes a spacious sleeping area along with a walk-in closet and direct access to a private bathroom. Two additional bedrooms are located elsewhere in the layout and share the second full bathroom. These rooms are suitable for children, guests, or flexible uses such as a home office.
Bathrooms
The home includes two full bathrooms. One bathroom is connected to the primary suite, offering privacy and convenience for homeowners. The second bathroom serves the additional bedrooms and shared areas of the house, ensuring comfortable daily routines for residents and visitors alike. 2
Functional Features
- Single-story living: All rooms are located on one level for accessibility.
- Open floor plan: Living room, kitchen, and dining spaces connect seamlessly.
- Kitchen island: Provides additional preparation space and casual seating.
- Three-bedroom layout: Suitable for families or flexible living arrangements.
- Modern transitional architecture: Combines contemporary and traditional design elements.

Dimensions and Structural Details
This home offers approximately 1,800 square feet of heated living space and is designed as a single-story residence. The wide footprint provides spacious interior rooms while maintaining efficient circulation between living areas and bedrooms. 3The structure is typically built using conventional wood framing and can accommodate several foundation options, including slab, crawlspace, or basement depending on local building conditions.
Estimated Building Cost (USD)
Construction costs vary depending on location, materials, and finish selections. Using common mid-range building estimates:
- Low estimate: ~ $216,000 (assuming ~$120 per sq ft × 1,800 sq ft)
- High estimate: ~ $324,000 (assuming ~$180 per sq ft × 1,800 sq ft)

Actual construction expenses will depend on customization choices, regional labor costs, and site preparation. Even so, this modern transitional plan provides a balanced combination of contemporary style, functional design, and comfortable living space for modern households.“`4











