This thoughtfully designed modern farmhouse delivers approximately 1,797 square feet of well-balanced living space, offering 3 bedrooms, 2.5 bathrooms, and a layout that blends charm, efficiency, and everyday comfort. Designed on a single level, this home feels welcoming and practical, making it ideal for families, couples, or anyone seeking a cozy yet polished farmhouse lifestyle.

Exterior Design & Curb Appeal
The exterior showcases classic modern farmhouse character with clean lines, balanced proportions, and a warm, inviting presence. A welcoming front porch anchors the façade, creating an instant sense of home before you even step inside. The rooflines and window placement give the house visual depth while maintaining a timeless, approachable look that fits beautifully in suburban or countryside settings.Carefully arranged windows not only enhance curb appeal but also allow natural light to flood the interior throughout the day, reinforcing the bright and airy farmhouse feel.

Inviting Porch & Outdoor Living
The front porch provides a charming space for morning coffee or relaxed evenings, offering a gentle transition between indoor and outdoor living. While compact, it adds personality and encourages connection with the outdoors, reinforcing the relaxed farmhouse lifestyle.The backyard access from the main living areas makes it easy to enjoy outdoor gatherings, grilling, or simple relaxation, extending the living experience beyond the walls of the home.

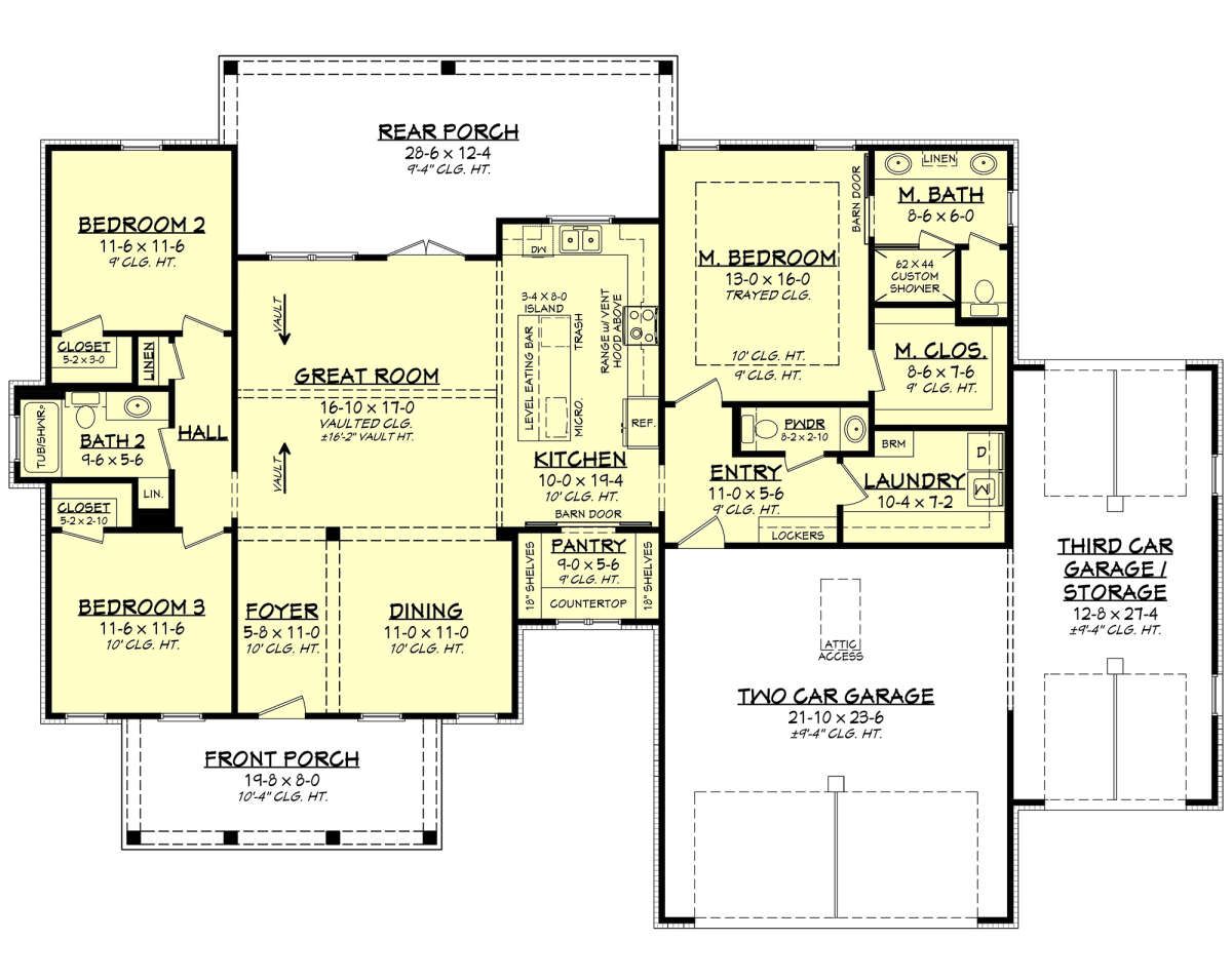
Open-Concept Living, Dining & Kitchen
Inside, the heart of the home unfolds into an open-concept living area that seamlessly connects the living room, dining space, and kitchen. This layout encourages interaction, making everyday living and entertaining feel natural and effortless.The living room is positioned to feel cozy yet open, offering comfortable space for family time or quiet evenings. Its proximity to the kitchen keeps everyone connected, whether meals are being prepared or conversations are flowing.

The kitchen is designed with both style and function in mind. Ample counter space supports meal prep, while the layout allows for easy movement and interaction. The dining area sits conveniently nearby, making daily meals and special gatherings equally enjoyable.

Private Primary Suite Retreat
The primary bedroom is thoughtfully separated from the secondary bedrooms, creating a private retreat within the home. Generous in size, this space is designed for relaxation, with room for a comfortable bed, seating, and personal touches.The attached primary bathroom includes dual functionality and comfort, offering a private, spa-like experience for daily routines. A walk-in closet adds storage convenience while keeping the bedroom clutter-free.

Secondary Bedrooms & Shared Bath
Two additional bedrooms are located on the opposite side of the home, providing flexibility for children, guests, or a home office setup. Each bedroom is well-sized, bright, and easy to furnish, making them adaptable to changing needs over time.A shared full bathroom serves these bedrooms efficiently, while a separate half bathroom is conveniently placed for guests, ensuring privacy and comfort throughout the home.

Storage, Laundry & Practical Flow
This farmhouse plan emphasizes smart circulation and everyday practicality. Closets are well-positioned, and storage areas are thoughtfully integrated to keep the home organized without sacrificing living space.The laundry area is easily accessible from the main living zones, making household tasks feel less intrusive and more efficient. The overall flow of the home supports smooth daily routines, from morning rushes to relaxed evenings.
Dimensions & Key Features
- Total Heated Area: Approximately 1,797 sq ft
- Bedrooms: 3
- Bathrooms: 2 full, 1 half
- Stories: Single-story layout
- Style: Modern Farmhouse
- Layout Highlights: Open-concept living, split-bedroom arrangement, private primary suite

Lifestyle Benefits
- Single-level living ideal for all stages of life
- Open-concept design that encourages connection and entertaining
- Private primary suite separated from secondary bedrooms
- Balanced size that feels spacious without excess
- Timeless farmhouse style with modern functionality

Estimated U.S. Construction Cost
Based on typical U.S. residential construction costs of approximately $150–$230 per square foot, the estimated build cost for this 1,797 sq ft modern farmhouse ranges from $270,000 to $413,000 USD. This estimate excludes land, permits, site preparation, and regional cost variations.

Why This Modern Farmhouse Stands Out
This modern farmhouse plan shines through its simplicity, warmth, and thoughtful layout. With just the right amount of space, a welcoming exterior, and an interior designed for real-life comfort, it offers a home that feels both practical and special. Whether you are starting a family, downsizing, or simply seeking a beautifully balanced one-story home, this design delivers timeless appeal and everyday livability in equal measure.












