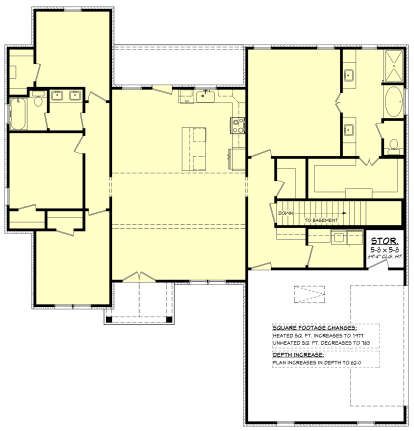
This beautifully balanced modern farmhouse plan delivers about 1,880 sq ft of comfortable living space with a smart layout that supports everyday routines, social gatherings, and family life. Featuring 4 bedrooms and 2 full bathrooms, this one-story design blends classic farmhouse charm with modern conveniences, generous light, covered outdoor spaces, and thoughtful circulation that makes the home feel both open and intimate. 0

Inviting Curb Appeal & Outdoor Presence
The exterior of this farmhouse embraces simple, timeless design with clean lines, balanced proportions, and a welcoming covered front porch that instantly invites you in. 1 The porch spans the entry and offers space for seating — perfect for morning coffee or watching the day begin. 2 Rear porch space off the great room further extends living outdoors, creating shaded areas for dining, relaxing, or entertaining in fair weather. 3
The home’s compact footprint (approximately 59′ 8″ wide × 58′ deep) fits well on a variety of sites while still offering a bold street presence and appealing symmetry. 4

Open Central Living — Heart of the Home
Step inside to a bright, open great room that seamlessly connects to the kitchen and dining area — the heart of this household. 5 Large windows and well-placed doors draw natural light into the space while providing views to both front and rear outdoor areas. 6 This open layout encourages connection — you can cook, relax, and entertain without feeling isolated from the family action. 7
The comfortable proportions of the great room and dining zone give you flexibility in furniture arrangement and make everyday living feel relaxed and spacious. 8
Kitchen Designed for Function & Flow
The kitchen features a central island that supports meal prep, casual seating, and easy engagement with people in the living and dining spaces. 9 Ample cabinetry and counter space provide practical storage and workspace, while thoughtful placement of appliances keeps everything intuitive and efficient. 10
Adjacent to the dining area, the kitchen fosters smooth transitions between preparing meals and enjoying them together. 11

Primary Suite — Private & Peaceful Retreat
The primary bedroom offers a peaceful sanctuary tucked away from the main living areas. 12 Its generous size accommodates restful furnishings, while large windows usher in soft natural light. 13 A fully appointed ensuite bathroom with practical storage and fixtures enhances comfort and ease for daily routines. 14
Thoughtful planning ensures that the suite feels like a personal retreat while remaining conveniently connected to the rest of the home. 15

Secondary Bedrooms — Comfortable & Versatile
Three additional bedrooms provide flexible options for family members, guests, a home office, or creative spaces. 16 These rooms are arranged to balance privacy and proximity to shared living areas, making them ideal for multiple functions over time. 17
A well-appointed full bathroom serves these spaces, creating a practical and comfortable arrangement for everyday living and overnight guests alike. 18

Bathrooms & Practical Design
This plan includes 2 full bathrooms, thoughtfully positioned to support both private and shared areas of the home. 19 The placement of fixtures and circulation between bedrooms and living spaces keeps everyday routines smooth and convenient. 20

Utility & Storage Solutions
A dedicated laundry area adds practicality without interrupting main living zones. 21 Strategic storage spaces and closets throughout the home help maintain organization and keep clutter at bay — essential for everyday comfort and efficiency. 22
Indoor-Outdoor Connection & Natural Light
Generous windows, sliding doors to the rear porch, and well-designed sightlines all help bring natural light deep into this home’s interior. 23 These design choices make the spaces feel larger, brighter, and more connected to the outdoors — enhancing both comfort and ambiance year-round. 24

Dimensions & Key Features
- Total Heated Area: ~1,880 sq ft 25
- Bedrooms: 4 26
- Bathrooms: 2 full 27
- Stories: Single level 28
- Porch / Outdoor Living: Covered front and rear porches 29
- Garage: 2-car attached (~577 sq ft) 30
- Width: ~59′ 8″ 31
- Depth: ~58′ 32

Lifestyle Highlights
- Open great room and dining areas that foster connection and social living.
- Kitchen island designed for both function and casual gatherings.
- Private primary suite that feels like a personal retreat.
- Flexible secondary bedrooms to accommodate family, guests, or work-from-home needs.
- Covered porches that extend usable space and encourage outdoor living.
- Ample natural light and indoor-outdoor flow that enrich daily life.

Estimated U.S. Build Cost (USD)
Assuming typical U.S. residential construction costs of about $180–$260 per sq ft, building this ~1,880 sq ft modern farmhouse plan could range between **$338,000 and $489,000 USD** (excluding land, permits, site preparation, and regional cost variations). 33
Why This Modern Farmhouse Plan Works
This modern farmhouse design blends classic curb appeal, smart interior planning, and comfortable living spaces into a cohesive plan that feels both timeless and functional. With flexibility for family life, gatherings, and quiet retreats, it’s a home that supports everyday living with effortless style. 34
0











