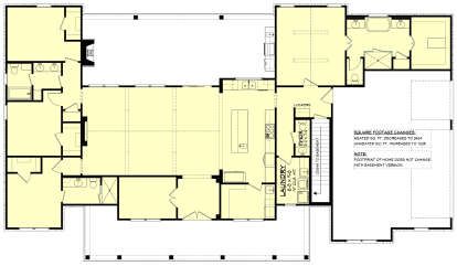
This modern farmhouse plan offers approximately 2,500 sq ft of beautifully crafted space that combines a timeless exterior and flexible, family-oriented interior. Featuring 4 bedrooms, 3 full bathrooms, and 1 half bathroom, this design provides generously sized living areas, well-planned circulation, and inviting outdoor spaces — perfect for everyday living and entertaining alike. 0

Farmhouse Curb Appeal & Outdoor Living
The exterior showcases classic modern farmhouse charm with clean lines, gabled rooflines, and generous covered porch areas that invite outdoor enjoyment. 1 A welcoming covered front porch sets the tone for relaxed living, while a spacious rear porch extends your usable outdoor space — ideal for morning coffee, evening dinners, and watching sunsets. 2 The home’s footprint strikes a comfortable balance between presence and practicality, making it suitable for diverse lot sizes without feeling overwhelming. 3

Open Main Living — Light & Flowing Spaces
Step inside to discover a large open living area where the great room, kitchen, and dining space flow seamlessly together. 4 This central hub features abundant natural light from well-placed windows that brighten the interior and create an uplifting atmosphere. 5 The great room’s layout encourages connection and flexibility, making it easy to adapt furniture arrangements for gatherings, family nights, or quiet moments. 6
The dining area sits comfortably adjacent to both the kitchen and living room, reinforcing a unified space for everyday routines and celebrations alike. 7
Kitchen Designed for Function & Togetherness
The kitchen anchors the heart of the home, equipped with ample counter space, a central island for casual seating, and plenty of cabinetry for storage. 8 Its thoughtful layout supports efficient meal preparation and makes interaction natural, whether you’re preparing dinner or chatting with guests over coffee. 9
The island doubles as a casual eating spot or buffet space for larger gatherings, enhancing the home’s social flow. 10

Primary Bedroom Suite — A Private Retreat
The primary bedroom is strategically positioned for privacy and comfort, offering a generous space for restful furnishings and soft natural light through large windows. 11 Its adjoining ensuite bathroom features a well-planned layout with dual vanities, a walk-in shower, and thoughtful storage arrangements that make everyday routines effortless. 12 Complementing the suite is a spacious walk-in closet that supports organization and ease of access. 13

Secondary Bedrooms & Flexible Spaces
Three additional bedrooms are thoughtfully placed to serve family members, guests, or adaptable uses such as a home office or hobby room. 14 These rooms are served by two full bathrooms with layouts that balance convenience and privacy. 15 Their strategic positioning enhances flow while maintaining distinct zones for rest and personal space. 16

An additional bedroom near the home’s main entrance offers flexibility for guest quarters or a private home office. 17
Half Bath, Laundry & Everyday Practicality
A well-located half bathroom near the living zones adds convenience for guests and everyday use without interrupting private spaces. 18 The dedicated laundry room is placed for easy access while staying out of main living areas, helping keep daily routines efficient and organized. 19
Closets and storage areas throughout the home ensure that essentials are easy to store and access without cluttering living spaces. 20

Indoor-Outdoor Connection & Natural Light
Windows and doors are positioned thoughtfully to embrace natural light and views of the surrounding landscape, reinforcing a strong connection between indoor comfort and outdoor living. 21 Sliding glass doors open to covered porch space, enhancing indoor-outdoor flow and creating inviting transitional zones for familyor guests to enjoy. 22

Dimensions & Key Features
- Total Heated Area: ~2,500 sq ft 23
- Bedrooms: 4 24
- Bathrooms: 3 full + 1 half 25
- Stories: Single level 26
- Porch / Outdoor Living: Covered front & rear porches 27
- Garage: 2-car attached 28

Lifestyle Highlights
- Seamless open living area ideal for family living and hosting gatherings.
- Kitchen island that encourages social connection and supports daily routines.
- Primary suite designed for privacy, comfort, and everyday ease.
- Secondary bedrooms that adapt to family, guests, or flexible work needs.
- Covered porches that enhance connection to the outdoors year-round.
- Smart placement of laundry, storage, and half bathroom for peak practicality.

Estimated U.S. Build Cost (USD)
Assuming typical U.S. residential construction costs of around $180–$260 per sq ft, building this ~2,500 sq ft modern farmhouse plan could range between **$450,000 and $650,000 USD** (excluding land, site preparation, permits, and regional cost differences). 29

Why This Modern Farmhouse Plan Works
This modern farmhouse plan combines welcoming outdoor spaces, flexible interior layouts, and family-friendly design details into a coherent and stylish home. With its open living zones, covered porches, and thoughtfully placed bedrooms and service areas, it supports both everyday comfort and memorable gatherings — making it a home that’s as functional as it is timeless. 30
0












