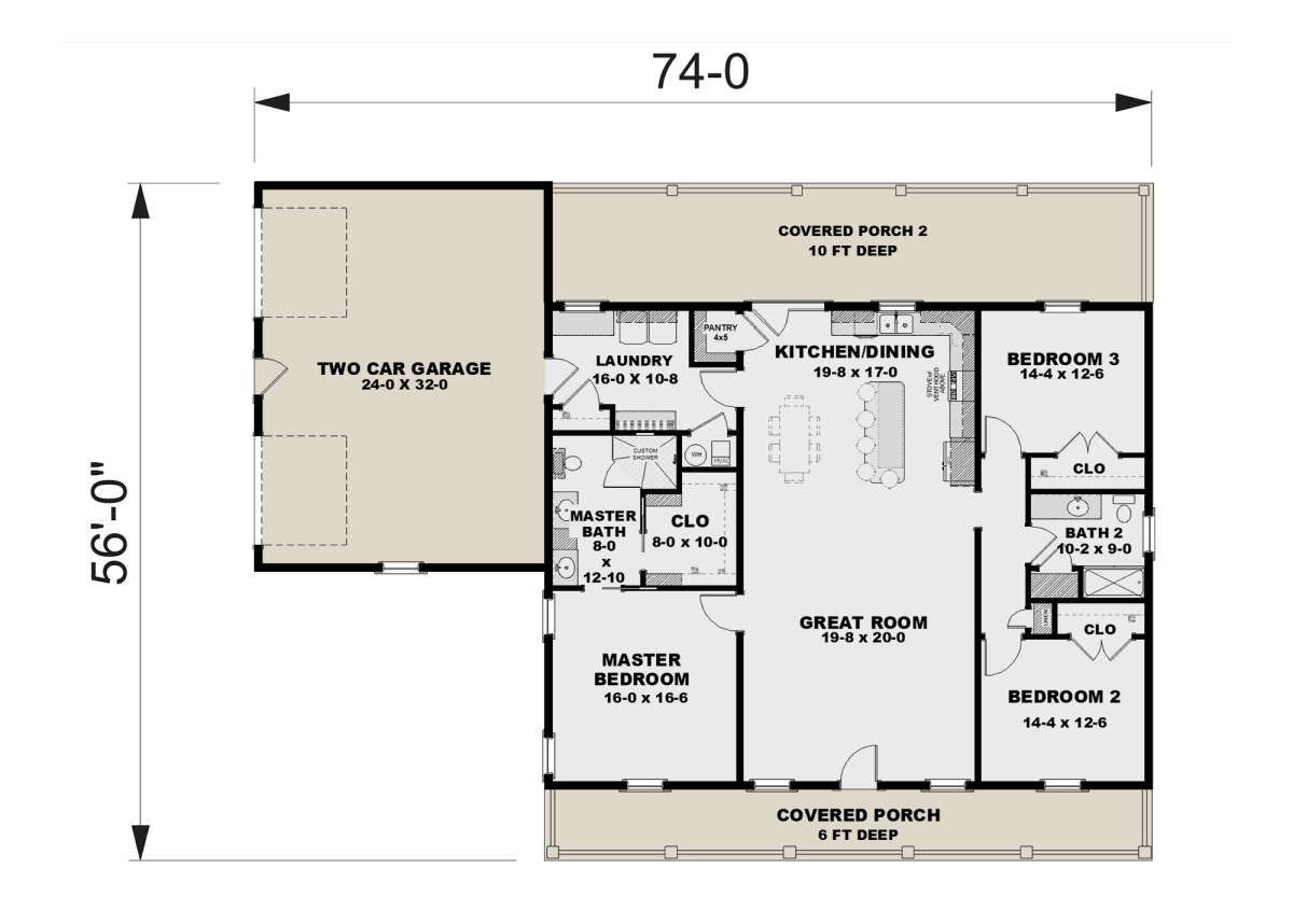
This modern farmhouse home offers about 2,000 sq ft of heated living space, giving you a layout that feels roomy, welcoming, and designed for everyday comfort. With 3 bedrooms and 2 full bathrooms, it’s the perfect size for families, couples who want extra space, or homeowners who want the farmhouse look with a little more breathing room inside. The design balances open gathering areas with private bedroom comfort, creating a home that feels relaxed, functional, and ready for real life—from busy mornings to slow weekends at home.

Exterior & Curb Appeal – Farmhouse Style with a Warm, Modern Feel
From the curb, this home delivers the modern farmhouse charm people love: clean lines, balanced proportions, and that welcoming presence that makes it feel friendly before you even step inside. Farmhouse style has a way of feeling timeless and familiar, and this exterior brings that comfort while still feeling fresh and updated.
The size of the home gives it a strong, confident look—spacious without being overwhelming. It’s the kind of house that would look beautiful with a simple garden bed, a neat walkway, and warm lighting in the evening when everyone’s finally home.
Outdoor Living – Fresh Air Space for Everyday Relaxation
Modern farmhouse living feels even better when outdoor space is part of daily life, and this home supports that lifestyle beautifully. Whether it includes a porch, patio, or covered outdoor area, the plan encourages those small outdoor moments that make a big difference—morning coffee, weekend grilling, or evening conversations under the open sky.
Outdoor living also adds natural breathing room to the home. It gives you a place to step outside without leaving comfort behind, and it’s perfect for relaxing weekends when you just want to enjoy your own space.

Main Living Area – Open, Bright & Designed for Connection
Inside, the layout is organized around an open main living area that brings the living room, kitchen, and dining spaces together into one connected hub. This open flow makes the home feel bright and spacious, and it supports a relaxed, social lifestyle where everyone can be together without feeling crowded.
The living room is large enough to feel truly comfortable, with space for full seating, entertainment, and everyday living. It’s the kind of space where family time happens naturally—movie nights, board games, casual gatherings, and quiet evenings that still feel special because home feels good.
The open design also makes the home easier to decorate and enjoy. There’s less wasted space and more room for real living.
Kitchen & Dining – The Heart of the Home, Built for Real Routines
The kitchen sits right where it belongs—at the center of daily life. It’s designed to stay connected to the living area, which means cooking feels social instead of isolating. You can prep meals while still chatting with family, keeping an eye on kids, or entertaining guests without missing out.
The dining space flows naturally nearby, making meals easy and comfortable. This setup works perfectly for daily breakfasts, weeknight dinners, and weekend meals that turn into long conversations. It’s practical, efficient, and built for real routines—not just special occasions.
In a 2,000 sq ft home, a well-planned kitchen and dining arrangement makes everything feel easier. There’s room to move, room to gather, and room for the home to feel lived-in without feeling messy.

Primary Suite – A Peaceful Retreat with Comfort and Privacy
The primary bedroom is designed to feel calm and private, giving you a retreat-like space away from the busiest parts of the home. It’s comfortably sized, offering enough space to relax without turning into wasted square footage.
The attached bathroom adds daily convenience and helps routines feel smoother. Having a private primary bath makes mornings easier and gives you a little extra comfort that truly improves everyday living.
Two Additional Bedrooms – Flexible Rooms for Family, Guests, or Work
With 3 bedrooms, this home offers flexibility that fits many lifestyles. The two secondary bedrooms can serve as kids’ rooms, guest rooms, or even a home office if you work remotely or want space for hobbies.
This is what makes a three-bedroom farmhouse plan such a strong choice long-term—it adapts with you. As life changes, the rooms can change too, without requiring a bigger home or a major remodel.

Two Full Bathrooms – Practical, Comfortable, and Easy for Families
With 2 full bathrooms, the home supports everyday routines smoothly. It reduces morning stress, improves privacy, and makes the home more comfortable for guests and family alike.
This bathroom count is the perfect fit for a three-bedroom home. It gives you the function you need without overcomplicating the layout or adding unnecessary space.

Laundry & Storage – Everyday Function that Keeps the Home Calm
A home feels easier to live in when the practical details are handled well. This plan includes laundry and storage features that help keep clutter under control and routines running smoothly.
Closets and storage spaces matter more than people realize. They keep the main living areas clean and welcoming, and they make everyday life feel calmer—especially in busy households.

Right-Sized Living – Spacious Without Being Too Much House
At 2,000 sq ft, this home gives you space to spread out while still staying manageable for cleaning and maintenance. It feels roomy and comfortable, but not overwhelming, making it a great long-term home for many lifestyles.
This square footage is ideal for homeowners who want extra breathing room while still keeping building costs more realistic than much larger plans.
Specs Summary
- Living Area: ~2,000 sq ft
- Bedrooms: 3
- Bathrooms: 2 full
- Stories: 1 (single-level living)
- Style: Modern Farmhouse
- Layout Highlights: Open living core, private primary suite, flexible bedrooms, and practical everyday flow
Lifestyle Highli
ghts
- Open main living space supports connection, comfort, and entertaining.
- 3 bedrooms offer flexibility for family, guests, or home office needs.
- 2 full bathrooms keep routines smooth and improve daily comfort.
- Farmhouse curb appeal delivers timeless charm with modern warmth.
- A spacious footprint that feels generous without overwhelming upkeep.
Estimated U.S. Build Cost (USD)
With mid-range finishes and typical U.S. construction costs around $170–$240 per sq ft, building a ~2,000 sq ft modern farmhouse may cost roughly $340,000–$480,000 USD, excluding land, permits, site preparation, utility hookups, and regional construction differences.

Why This Modern Farmhouse is a Wonderful Everyday Home
This modern farmhouse plan offers the space homeowners want with the warm charm farmhouse style is known for. With an open main living layout, three flexible bedrooms, and two full bathrooms for daily convenience, it supports real life beautifully. It’s spacious, comfortable, and designed for long-term living—making it a smart choice for anyone who wants farmhouse warmth with a roomy, practical layout.













