This stylish and well-planned modern farmhouse offers approximately 2,000 square feet of heated living space with four bedrooms, three full bathrooms, and one half bathroom. Designed as a single-story residence, the layout blends open-concept living with smart functional spaces, making it ideal for families who want both comfort and practicality in a modern rural-inspired design.

Exterior Design
The exterior showcases the timeless appeal of modern farmhouse architecture, featuring clean lines, balanced proportions, and a welcoming presence. A wide footprint gives the home a grounded, spacious look, while large windows enhance natural lighting and connect the indoors with the surrounding environment.
Covered outdoor areas such as a front porch and rear patio extend the living space beyond the interior, creating inviting spots for relaxation and entertaining. These features add both visual charm and everyday usability.

Interior Layout Overview
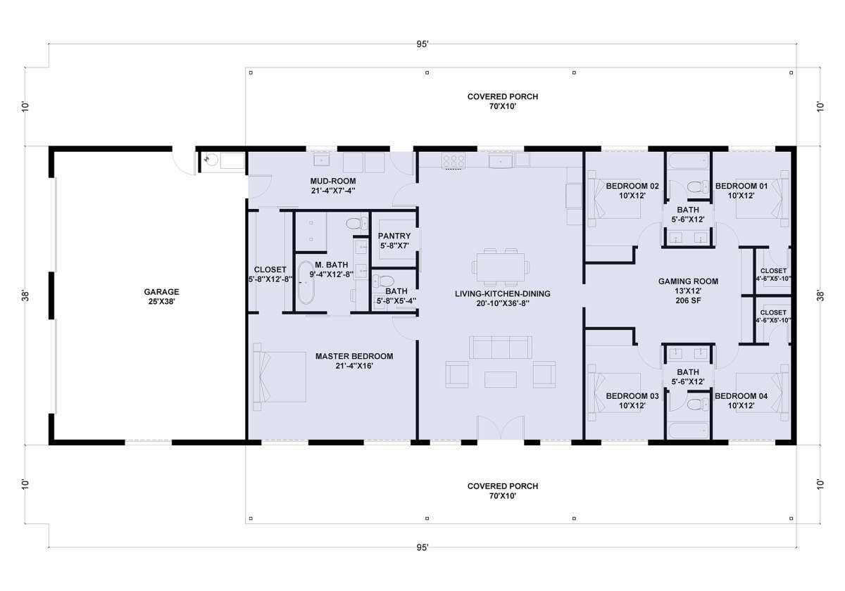
The 2,000 square feet of living space is arranged on a single level, ensuring easy movement throughout the home. The layout is centered around an open-concept core, where shared living spaces flow seamlessly together.
A split-bedroom design enhances privacy by separating the primary suite from the additional bedrooms. This arrangement is especially beneficial for families or households that host guests regularly.
Main Living Area
The heart of the home is the spacious great room, which connects directly to the kitchen and dining area. This open layout creates a bright and welcoming environment ideal for both daily living and entertaining.
The kitchen is designed with both style and function in mind, typically featuring a large center island, generous cabinetry, and a walk-in pantry. Its central location ensures easy access to both dining and living spaces while maintaining a social atmosphere.

Bedrooms
This home includes four bedrooms, offering flexibility for growing families or homeowners who need additional space. The primary suite is designed as a private retreat, often featuring a spacious layout and direct access to a full bathroom.
The additional bedrooms are positioned on the opposite side of the home, providing separation and comfort. These rooms can be used for children, guests, or even as office or hobby spaces.

Bathrooms
The design includes three full bathrooms and one half bathroom, ensuring convenience for both residents and visitors. The primary bathroom is connected to the owner’s suite, while the remaining bathrooms are strategically placed to serve the other bedrooms and common areas.

Functional Features
- Single-story layout: Provides easy accessibility throughout the home.
- Open-concept design: Connects the great room, kitchen, and dining areas.
- Split-bedroom arrangement: Enhances privacy between living and sleeping spaces.
- Kitchen island and pantry: Improve storage and functionality.
- Main-floor laundry: Adds everyday convenience.
- Covered outdoor spaces: Extend living areas for relaxation and entertainment.
Garage and Additional Space
The home typically includes an attached garage that provides ample space for parking and storage. This area can also serve as a workshop or utility space, adding versatility to the overall design.
Dimensions and Structural Details
This modern farmhouse is designed as a one-story structure with a total heated area of approximately 2,000 square feet. Homes in this category often feature wide layouts that support open living spaces and comfortable room sizes. 0
Construction is typically based on wood framing and can be adapted to different foundation types such as slab, crawlspace, or basement depending on site conditions and preferences.

Estimated Building Cost (USD)
Construction costs vary depending on materials, labor, and location. Using common mid-range estimates:
- Low estimate: ~ $240,000 (assuming ~$120 per sq ft × 2,000 sq ft)
- High estimate: ~ $360,000 (assuming ~$180 per sq ft × 2,000 sq ft)


This modern farmhouse plan offers a strong balance of space, efficiency, and timeless design. Its open layout, multiple bathrooms, and flexible bedroom arrangement make it a practical and appealing choice for modern family living.
“`1











