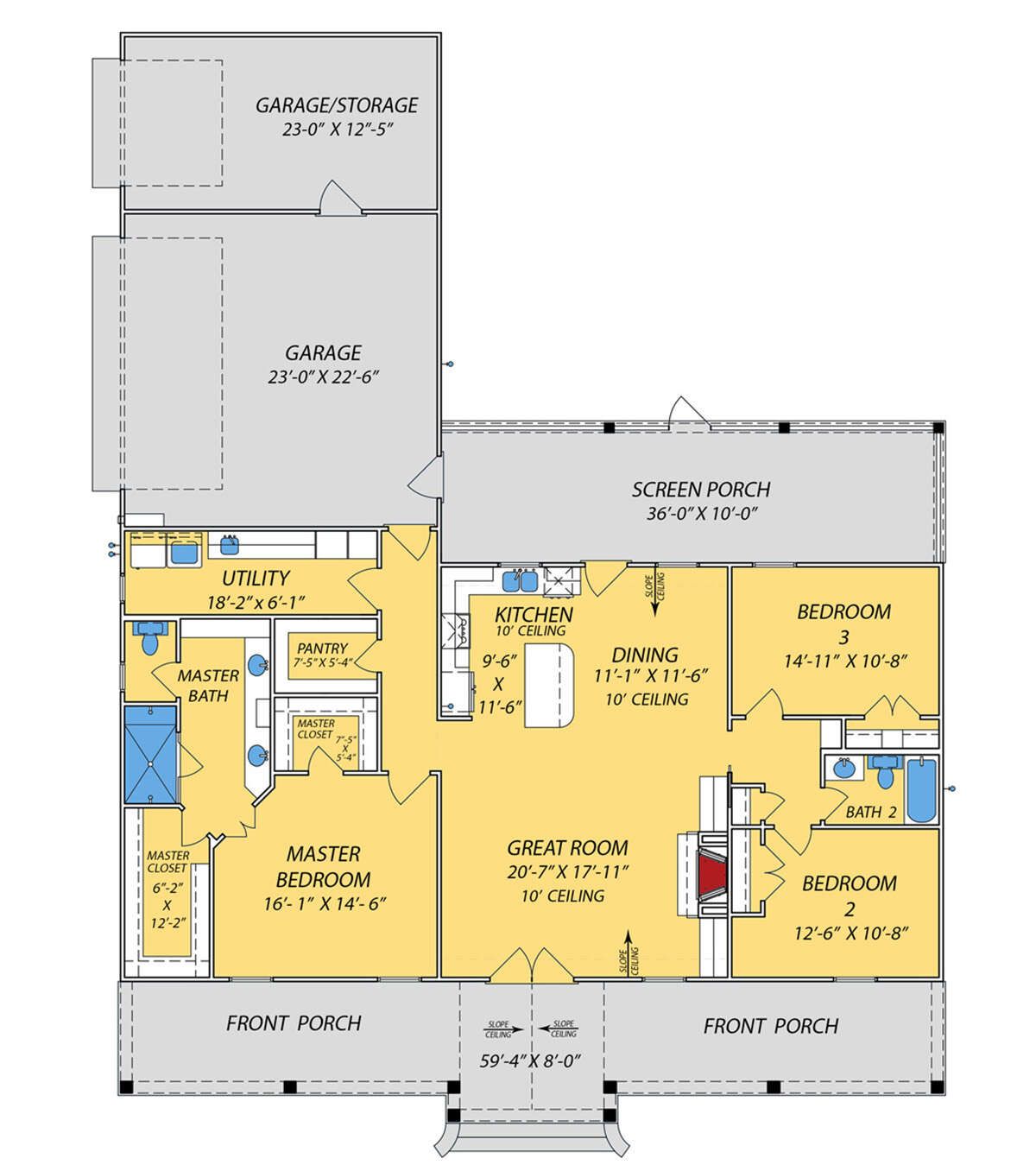
This modern farmhouse home offers about 1,828 sq ft of heated living space, designed to feel welcoming, bright, and easy to enjoy every day. With 3 bedrooms, 2 full bathrooms, and a layout that keeps the main living areas open while giving bedrooms the privacy they deserve, it’s a wonderful fit for families, couples, or downsizers who still want space to breathe. It’s the kind of home that feels cozy in all the right ways—without ever feeling cramped or limited.

Exterior & Curb Appeal – Farmhouse Charm with Clean, Modern Balance
From the curb, this home delivers the modern farmhouse look people love—simple, timeless, and warm. The exterior design feels balanced and approachable, with a friendly presence that makes it feel like home before you even walk inside. It’s not overly complicated or busy, which is exactly why it has lasting curb appeal.
The overall style works beautifully in many settings, whether you’re building on a suburban lot or a more open piece of land. It’s the kind of house that fits naturally into its surroundings and still stands out in a quiet, confident way.

Outdoor Living – Small Fresh-Air Moments That Add Big Joy
Outdoor living is one of the underrated joys of farmhouse-style homes, and this plan supports that lifestyle in a way that feels practical and easy. Even a modest porch or outdoor sitting space can change how you enjoy the home day to day. It gives you a place to slow down—morning coffee, evening breezes, or that quick “let me step outside for a second” reset when life gets busy.
Outdoor space also makes a home feel larger. It gives you another place to relax, host, or simply enjoy fresh air without having to leave the comfort of home.
Main Living Area – Open, Connected, and Built for Everyday Life
Inside, the layout is arranged around an open-concept living core that keeps the living room, kitchen, and dining areas connected. This makes the home feel larger than the square footage suggests, and it also makes life feel easier. You can move naturally through the space without awkward hallways or wasted corners.
The living room is designed for comfort and real use. It’s the kind of space that works for movie nights, family hangouts, and those lazy weekend afternoons where everyone ends up in the same room without planning it. It feels warm and inviting—exactly what you want in a farmhouse home.
Kitchen & Dining – The Heart of the Home with Smooth Flow
The kitchen is positioned to stay connected to the main living space, which makes a huge difference in how the home feels. Instead of cooking in isolation, you stay part of the action—talking, laughing, supervising homework, or just enjoying the everyday buzz of life happening around you.
The dining area sits nearby, making daily meals easy and special occasions feel natural. This setup works beautifully for both quick weeknight dinners and longer gatherings where everyone lingers around the table. The flow between kitchen and dining is practical, efficient, and designed for real routines.

Primary Suite – A Quiet Retreat That Feels Comfortable and Private
The primary bedroom is designed to feel like your peaceful retreat. It’s positioned to offer privacy and calm, giving you a space that feels restful and personal. Whether you’re winding down after a long day or enjoying a slow morning, the primary suite gives you the kind of quiet comfort that makes a home feel truly relaxing.
The attached bathroom adds everyday convenience, making routines easier without adding extra complexity. It’s a suite that feels functional, comfortable, and perfectly sized for real living.
Two Additional Bedrooms – Flexible Space That Adds Long-Term Value
This plan includes two additional bedrooms that make the home flexible and family-friendly. They work beautifully as kids’ rooms, a guest room, or even a home office if you need a dedicated workspace. Having 3 bedrooms gives you options, and that flexibility is what makes the home a strong long-term choice.
The bedrooms are arranged to support privacy and easy flow, so the home feels organized and comfortable to share. Even if your needs change, these rooms can adapt without forcing you into a larger home too soon.

Two Full Bathrooms – Simple, Comfortable Daily Function
With 2 full bathrooms, this home offers a practical setup that supports everyday routines smoothly. It reduces the morning rush stress, makes hosting easier, and keeps the household running comfortably.
This bathroom count is a great fit for a home in this size range because it gives you strong function without wasting space. It’s comfortable, easy to maintain, and family-friendly.
Laundry & Storage – The Quiet Details That Keep a Home Running Smoothly
A home feels best when it stays organized without constant effort, and this plan supports that with practical laundry and storage features. Dedicated utility spaces help keep daily chores contained, while closets and storage areas prevent clutter from creeping into your main living space.
These practical details matter because they shape how the home feels long-term. When everything has a place, life feels calmer—even on busy weeks when schedules are full.
Right-Sized Living – Spacious Enough to Enjoy, Easy Enough to Maintain
At 1,828 sq ft, this home hits a sweet spot for modern living. It feels spacious and comfortable, but it doesn’t come with the burden of maintaining a much larger house. Cleaning is easier, upkeep is manageable, and building costs stay more realistic than many oversized farmhouse designs.
This footprint is ideal for homeowners who want an open feel, flexible bedrooms, and a truly livable layout—without paying for extra rooms they won’t use.

Specs Summary
- Living Area: ~1,828 sq ft
- Bedrooms: 3
- Bathrooms: 2 full
- Stories: 1 (single-level living)
- Style: Modern Farmhouse
- Layout Highlights: Open living core, private primary suite, flexible secondary bedrooms, and a practical 2-bath setup
Lifestyle Highlights
- Open-concept living keeps the home bright, connected, and welcoming.
- 3 bedrooms provide flexibility for family life, guests, or office space.
- 2 full bathrooms support smooth routines and guest comfort.
- Farmhouse curb appeal delivers timeless charm with modern simplicity.
- Manageable square footage offers comfort without overwhelming upkeep.

Estimated U.S. Build Cost (USD)
With mid-range finishes and typical U.S. construction pricing around $170–$240 per sq ft, building a ~1,828 sq ft modern farmhouse may cost roughly $311,000–$439,000 USD, excluding land, permits, site preparation, utility hookups, and regional construction differences.

Why This Modern Farmhouse is a Great Everyday Home
This modern farmhouse plan delivers the kind of comfort homeowners truly want: open gathering space, private bedrooms, and a practical layout that supports real daily routines. With three bedrooms, two full bathrooms, and a warm farmhouse exterior, it feels welcoming, functional, and built for long-term living. It’s a home that fits busy family life, relaxed evenings, and everything in between—without feeling like too much house to handle.
0












