This charming Modern Farmhouse design features approximately 1,583 square feet of thoughtfully laid-out, single-story living space with two bedrooms and two full bathrooms. With classic farmhouse exterior details and efficient interior flow, this plan is perfect for downsizers, couples, or those seeking a stylish yet practical home. 0

Exterior Design
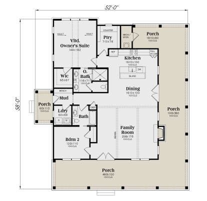
The exterior showcases timeless modern farmhouse charm with clean lines, pitched rooflines, and a welcoming covered porch that enhances curb appeal and outdoor living. Designed for wide adaptability, the home’s footprint measures about 52 feet wide by 58 feet deep, fitting comfortably on many suburban, rural, or small-lot sites. 1
A wrap-around porch provides additional outdoor space for relaxing or entertaining, and large windows draw in ample natural light. 2

Interior Layout Overview
This modern farmhouse plan emphasizes an open-concept interior that blends shared living areas with private zones for quiet and rest. The efficient layout supports everyday living, entertaining, and easy circulation throughout. 3
Main Living Area
The heart of the home integrates the living room, kitchen, and dining area into a cohesive open space. Large windows and doors connect this zone to outdoor porches, creating a seamless indoor–outdoor flow. The kitchen includes ample countertop space, cabinetry, and a central island — ideal for meal prep, casual dining, and gathering with family or friends. 4

Bedrooms
This plan includes two comfortable bedrooms. The primary suite serves as a private retreat for homeowners, with easy access to one of the full bathrooms. 5

The second bedroom is positioned near the second full bathroom, making it perfect for guests, family, or use as a home office or hobby room. Thoughtful window placement enhances natural light and comfort. 6


Bathrooms
Both full bathrooms are designed for convenience and daily use. The primary bathroom supports the main suite, while the second full bath serves the guest bedroom and common living areas with practical layout and circulation. 7

Functional Features
- Open floor plan: Connects living, dining, and kitchen areas for modern family living and entertaining. 8
- Two bedrooms: Provides private, flexible spaces for guests, family, or multi-use. 9
- Two full bathrooms: Enhances comfort and convenience for daily routines. 10
- Covered and wrap-around porch: Extends outdoor living opportunities. 11
- Efficient footprint: Fits well on many lot types while maximizing usable space. 12

Dimensions and Structural Details
The total heated area of approximately 1,583 square feet is arranged cleanly on one level, promoting accessibility and efficient circulation between shared and private spaces. Standard wood framing and conventional roof structure support cost-effective construction and long-lasting performance. 13


Main ceiling heights and generous porch overhangs enhance both interior openness and exterior aesthetics. 14
Estimated Building Cost (USD)
Construction costs vary based on region, materials chosen, labor rates, and finish quality. A typical moderate-quality build might range approximately:
- Low estimate: ~ $189,960 (assuming ~$120 per sq ft × 1,583 sq ft)
- High estimate: ~ $284,940 (assuming ~$180 per sq ft × 1,583 sq ft)

Actual costs will depend on specific site conditions, finishes, and customization. 15
“`16












