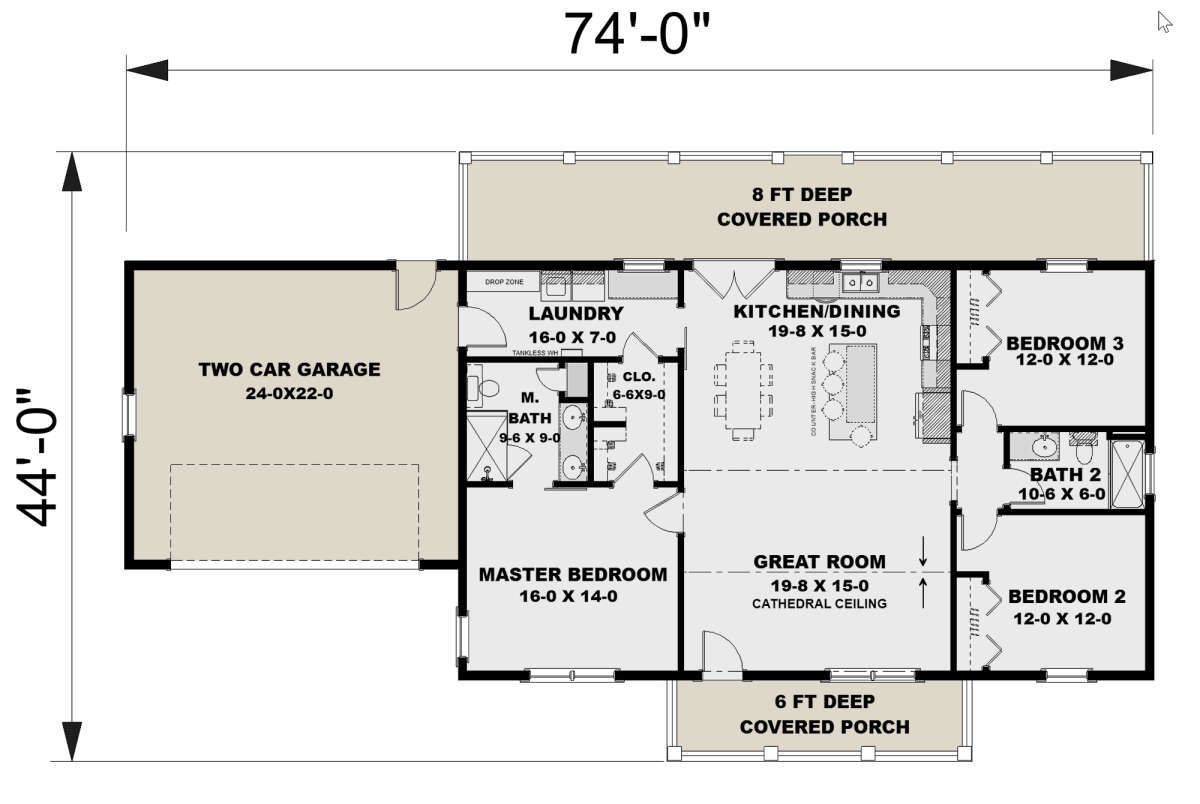
This modern farmhouse home delivers about 1,500 sq ft of heated living space, offering a layout that feels comfortable, bright, and beautifully practical for everyday life. With 3 bedrooms and 2 full bathrooms, it’s a smart choice for small families, first-time homeowners, or downsizers who still want space for guests, hobbies, or a home office. The design balances open shared living areas with private bedroom comfort, giving you a home that feels welcoming and functional without being oversized.

Exterior & Curb Appeal – Farmhouse Charm That Feels Clean and Timeless
From the curb, this home delivers that warm modern farmhouse look people love—simple lines, balanced proportions, and a welcoming presence that feels friendly and familiar. It has that “come on in” vibe that makes a house feel like home before you even step inside.
The design is compact, but it doesn’t feel small. Instead, it feels thoughtfully planned, with a polished exterior that would look beautiful in a neighborhood setting or on a more open property. Add a little landscaping, a clean walkway, and maybe a couple of planters, and this home instantly becomes one of those houses that looks cheerful year-round.

Outdoor Living – Fresh Air Space for Everyday Comfort
Farmhouse living is at its best when you can step outside and enjoy simple moments, and this plan supports that lifestyle in a very practical way. Even a modest porch or outdoor sitting space adds a lot of value. It becomes the spot for morning coffee, evening cool-down time, and those little “let me get some fresh air” breaks during the day.
Outdoor living also makes the home feel larger, especially on nice days when life naturally flows in and out. It doesn’t have to be fancy—it just has to be comfortable and usable.
Main Living Area – Open, Bright & Made for Connection
Step inside and the layout immediately feels open and connected. The living room, kitchen, and dining areas flow together, creating a bright and comfortable main living space that makes the home feel larger than the square footage suggests.

The living room is designed for everyday relaxation, with enough room for a full seating arrangement without feeling oversized. It’s perfect for movie nights, weekend lounging, and family time that happens naturally—without anyone feeling stuck in a separate room.
This open layout is especially great for families because it keeps everyone connected. You can cook while still being part of conversations, watch kids play, or simply enjoy the feeling of a home that stays social and welcoming.

Kitchen & Dining – Efficient, Practical, and Easy to Enjoy
The kitchen is placed right where it should be: close to the living area and dining space, keeping daily routines simple and comfortable. Meal prep feels more social because you can cook while still interacting with family or guests.
The dining area is located nearby, offering a comfortable place for meals without feeling overly formal. It works beautifully for everyday family dinners, quick breakfasts, and casual hosting.
This kitchen-and-dining setup is designed for real life. It’s efficient, easy to clean, and keeps everything within reach—perfect for a home that values comfort and function.

Primary Suite – A Calm Retreat That Feels Private
The primary bedroom is designed to feel restful and private, giving you a quiet retreat away from the main living area. It’s sized to feel comfortable without wasting square footage, offering a peaceful place to recharge at the end of the day.
The attached bathroom adds convenience and comfort to daily routines. It’s a simple setup, but it makes the home feel more complete and makes mornings much smoother.
Two Additional Bedrooms – Flexible Rooms for Life’s Changing Needs
With 3 bedrooms, this plan provides flexibility that makes it a strong long-term choice. The two additional bedrooms can work as kids’ rooms, guest rooms, or even a home office if you need a dedicated workspace.
This flexibility means the home can grow with you. If your needs change over time, the rooms can change too—without forcing you into a bigger, more expensive home.

Two Full Bathrooms – Big Comfort in a Right-Sized Home
Having 2 full bathrooms is a major advantage in a 1,500 sq ft home. It makes daily routines easier, adds privacy, and makes the home more comfortable for both family living and guests.
This bathroom setup supports busy mornings and keeps the home feeling functional long-term. It’s practical, comfortable, and a feature homeowners appreciate daily.

Laundry & Storage – Smart Everyday Function
A home this size stays comfortable when storage and utility space are planned well. This design includes practical laundry and storage areas to keep clutter under control and help routines run smoothly.
When everything has a place, the home feels calmer. Shoes, bags, cleaning supplies, and everyday items stay organized, which keeps the main living spaces open, clean, and welcoming.

Right-Sized Living – Comfortable, Affordable, and Easy to Maintain
At 1,500 sq ft, this home offers a wonderful balance between spaciousness and manageability. It’s big enough to feel open and complete, but small enough to keep maintenance simple and building costs more reasonable than larger farmhouse plans.
This footprint works beautifully for families who want comfort without excess, and it’s also great for homeowners who want a home that’s easy to clean and maintain long-term.

Specs Summary
- Living Area: ~1,500 sq ft
- Bedrooms: 3
- Bathrooms: 2 full
- Stories: 1 (single-level living)
- Style: Modern Farmhouse
- Layout Highlights: Open living core, private primary suite, flexible secondary bedrooms, and a comfortable 2-bath setup

Lifestyle Highlights
- Open-concept layout makes the home feel bright, social, and comfortable.
- 3 bedrooms provide flexibility for family, guests, or home office needs.
- 2 full bathrooms improve daily routines and add long-term convenience.
- Farmhouse curb appeal delivers timeless charm with clean modern style.
- A manageable footprint that feels spacious without overwhelming upkeep.

Estimated U.S. Build Cost (USD)
With mid-range finishes and typical U.S. construction costs around $170–$240 per sq ft, building a ~1,500 sq ft modern farmhouse may cost roughly $255,000–$360,000 USD, excluding land, permits, site preparation, utility hookups, and regional construction differences.

Why This Modern Farmhouse is a Great Everyday Home
This modern farmhouse plan offers the perfect mix of cozy charm and everyday practicality. With three bedrooms, two full bathrooms, and an open layout that makes the home feel larger than it is, it supports real family living in a footprint that stays manageable. It’s welcoming, functional, and built for comfortable routines—making it a smart choice for homeowners who want farmhouse style without unnecessary extra space.












