This charming farmhouse home plan offers approximately 1,426 square feet of comfortable, single-story living space featuring three bedrooms and two full bathrooms. Blending classic farmhouse character with efficient modern living, this layout is ideal for small families, couples, or anyone seeking a functional and welcoming home with timeless appeal.

Exterior Design
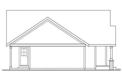
The exterior reflects traditional farmhouse styling with clean rooflines, balanced proportions, and a welcoming covered front porch that enhances curb appeal and provides a cozy outdoor living space. With a footprint that fits well on suburban, rural, or countryside lots, this home combines classic aesthetic elements with practical design.
Interior Layout Overview
Inside, the plan is organized for efficient flow and everyday usability. The central living spaces are connected for social interaction and practicality, while private zones are positioned to maximize comfort and convenience. Spacious windows bring natural light into the interior, creating an open and airy atmosphere throughout.

Main Living Area
The heart of the home features an open living room that connects naturally to the dining area and kitchen, fostering warm family interaction and smooth circulation. Large windows help fill the space with light, enhancing the sense of spaciousness despite the home’s modest footprint. The kitchen, while efficient in design, offers functional counter space and cabinetry to support everyday cooking and meal prep.
Bedrooms
This plan includes three bedrooms, all conveniently located on the main level. The primary suite provides a private retreat with direct access to one of the full bathrooms, creating a comfortable space for rest and relaxation.
The two additional bedrooms are positioned nearby and share the second bathroom. These rooms are versatile, suitable for children, guests, or multifunction use such as a home office, study, or hobby room, depending on your lifestyle needs.
Bathrooms
This home features two full bathrooms designed with efficient circulation and practical fixtures. The primary bathroom connects to the owner’s suite, while the secondary bath serves the other bedrooms and common areas, ensuring comfort and convenience for all occupants and guests.
Functional Features
- Open living space: Promotes seamless connection between main living, dining, and kitchen areas.
- Three-bedroom layout: Provides versatile private spaces for family or guests.
- Two full bathrooms: Enhances daily convenience and comfort. ([houseplans.net](https://www.houseplans.net/floorplans/03500253/farmhouse-plan-1426-square-feet-3-bedrooms-2-bathrooms?srsltid=AfmBOoqc38yG9N3nEayP8v3y2YMUsLaPLLrvRztF8h66Gw9q_a6V5bXA&utm_source=chatgpt.com))
- Covered front porch: Adds outdoor living space and increases curb appeal.

Dimensions and Structural Details
The home offers 1,426 square feet of heated living space arranged on a single level, ensuring accessibility and ease of movement between rooms. Standard residential framing and conventional roof construction support straightforward building practices and long-lasting performance. Foundation options typically include slab, crawlspace, or basement depending on site conditions and regional preferences.

Estimated Building Cost (USD)
Construction costs vary depending on regional labor rates, material choices, finisher quality, and site conditions. Using typical mid-range construction estimates:
- Low estimate: ~ $171,120 (assuming ~$120 per sq ft × 1,426 sq ft)
- High estimate: ~ $256,680 (assuming ~$180 per sq ft × 1,426 sq ft)
Actual construction costs will depend on customization, finish selections, site preparation, and local building market conditions, but this efficient and welcoming farmhouse plan offers a comfortable lifestyle

.let me know if you like it
“`0











