This beautiful country-style home design offers approximately 1,897 square feet of heated living space featuring three bedrooms, two full bathrooms, and one half bathroom. Designed with a charming traditional appearance and a practical modern layout, this home combines comfortable family living with classic architectural appeal. Its thoughtful arrangement of indoor and outdoor spaces makes it well suited for suburban neighborhoods, countryside settings, or rural properties. 0

Exterior Design
The exterior of this country-style home showcases welcoming architectural features such as a wide façade, balanced rooflines, and an inviting covered front porch. The porch serves as a natural gathering space for relaxing outdoors while enhancing the home’s overall curb appeal. Decorative gables and well-placed windows contribute to the classic country aesthetic while allowing natural light to flow into the interior.
The design’s proportions create a warm and inviting presence from the street. Traditional siding materials and simple architectural detailing help the house blend beautifully into natural landscapes while maintaining timeless appeal.
Interior Layout Overview
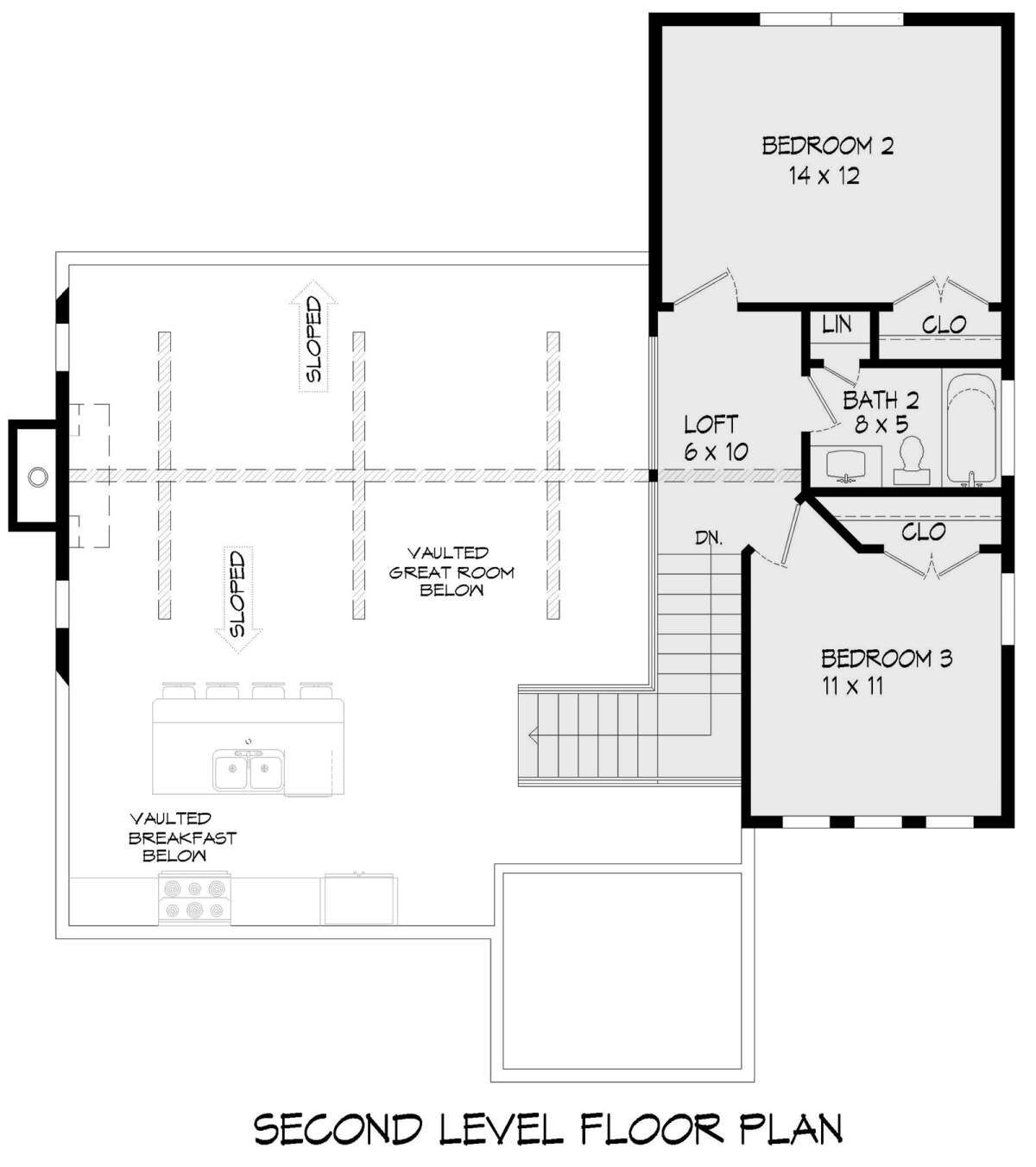
Inside, the floor plan is arranged across a 1.5-story layout with the majority of living space on the main floor and additional rooms upstairs. The design emphasizes an open living environment for family interaction while maintaining clearly defined private areas for bedrooms. The layout provides excellent circulation throughout the home, making everyday movement comfortable and efficient. 1

Main Living Area
The central gathering area serves as the heart of the home and is designed to accommodate both everyday relaxation and entertaining. This space typically connects with the dining area and kitchen, creating an open living zone where family members can interact while cooking, dining, or spending time together.
Large windows brighten the living areas and help create an inviting atmosphere. The kitchen is designed with practical counter space, cabinetry, and convenient access to the dining area, supporting smooth daily routines and comfortable hosting.
Bedrooms
This home includes three bedrooms. The primary suite is usually positioned on the main level for convenience and privacy. This suite features comfortable sleeping space, a walk-in closet, and direct access to a private bathroom.
The additional bedrooms are typically located on the upper floor and share a full bathroom. This arrangement helps maintain privacy between the main living spaces and sleeping areas while offering flexibility for family members or guests.
Bathrooms
The home includes two full bathrooms and one half bathroom. The primary bathroom is attached to the owner’s suite, while the secondary full bathroom serves the additional bedrooms. The half bathroom is conveniently located near the main living areas for guest use and everyday practicality. 2
Functional Features
- 1.5-story layout: Main living spaces on the first floor with additional space upstairs.
- Covered front porch: Provides relaxing outdoor seating and enhances curb appeal.
- Open living spaces: Encourages interaction between the kitchen, dining, and living areas.
- Private bedroom arrangement: Bedrooms separated from the main living areas for comfort.
- Two-car garage: Provides protected parking and extra storage space. 3
Dimensions and Structural Details
The home measures approximately 76 feet 1 inch wide and 49 feet deep, with a total heated area of 1,897 square feet. The main floor contains about 1,420 square feet, while the upper level adds approximately 477 square feet of living space. The design includes a two-car garage and can be built with several foundation options such as slab, crawlspace, or basement depending on site conditions. 4

Estimated Building Cost (USD)
Construction costs vary based on materials, labor, location, and finish selections. Using common mid-range building estimates:
- Low estimate: ~ $227,640 (assuming ~$120 per sq ft × 1,897 sq ft)
- High estimate: ~ $341,460 (assuming ~$180 per sq ft × 1,897 sq ft)

Actual construction costs will depend on customization choices, site preparation, and regional labor costs, but this country home plan offers a balanced combination of classic architectural charm, functional layout, and comfortable living space for modern families.
“`5













