This compact yet functional home offers approximately 1,191 square feet of heated living space with three bedrooms and two full bathrooms. The layout featured in
this cottage house plan is designed for narrow plots while still delivering comfort, efficiency, and modern living features. 0

Compact and Narrow Cottage Exterior
The exterior showcases a simple and charming cottage style with a narrow footprint, making it ideal for tight urban or small plots.
With overall dimensions of approximately 18 feet 10 inches wide and 43 feet 2 inches deep, the home is specifically designed for limited space without sacrificing functionality. 1
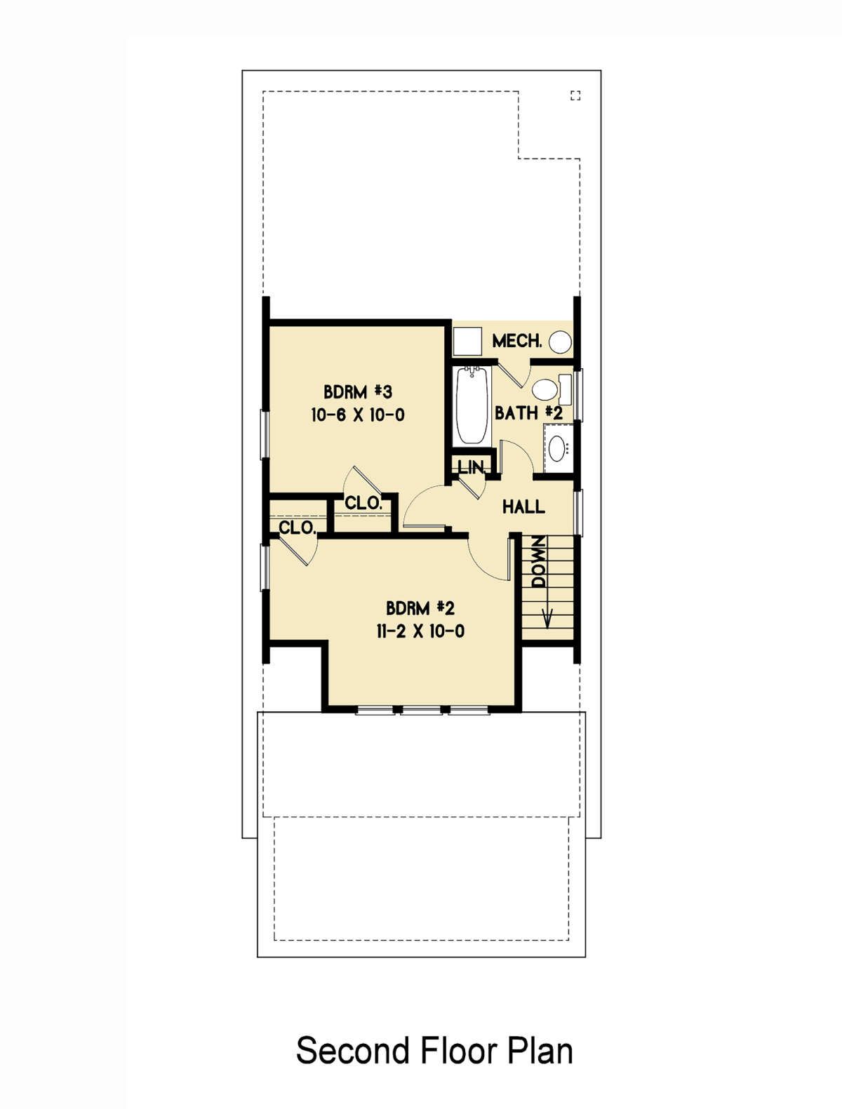
Two-Story Space Optimization
This home features a 2-story layout, allowing it to maximize living space within a compact footprint. 2
- Main Floor: ~798 sq ft
- Second Floor: ~393 sq ft 3
This vertical design makes the home feel larger while keeping land usage minimal.
Open-Concept Main Living Area
The main floor features an open floor plan that connects the living room, dining area, and kitchen into one continuous space.
This layout enhances natural light and creates a spacious feel despite the home’s compact width.
Modern Kitchen with Island
The kitchen is designed for efficiency and includes a kitchen island, offering additional workspace and casual seating. 4
Its open connection to the living and dining areas makes it ideal for both everyday use and entertaining.
Three Bedrooms Across Two Levels
This home includes three bedrooms, providing flexibility for families or guests. 5
The layout typically places the primary bedroom on the main floor, while additional bedrooms are located upstairs, offering privacy and separation of spaces.

Two Full Bathrooms
The design includes two full bathrooms, ensuring convenience for all occupants. 6
This setup supports smooth daily routines even in a compact home.
Outdoor Living Spaces
The home includes approximately 145 square feet of porch space, with both front and rear porches available. 7
- Front porch: ~128 sq ft
- Rear porch: ~17 sq ft 8
These areas provide additional space for relaxing and enjoying outdoor living.
Construction and Structural Details
- Ceiling height: 9 feet (main floor), 8 feet (upper floor) 9
- Framing: 2×4 wood construction 10
- Foundation: Crawlspace foundation 11
- Height: ~25 feet 6 inches 12
Smart and Efficient Design
This home is carefully designed to maximize functionality within a narrow footprint. The two-story layout, open living area, and efficient room placement make it feel larger than its size.
It is an excellent option for urban living, rental investment, or small family housing.
Dimensions and Key Details
- Total Living Area: 1,191 square feet
- Bedrooms: 3
- Bathrooms: 2
- Width: 18’10”
- Depth: 43’2″

- Stories: 2
Estimated Building Cost (USD)
- Low estimate: ~ $142,920 (assuming ~$120 per sq ft × 1,191 sq ft)
- High estimate: ~ $214,380 (assuming ~$180 per sq ft × 1,191 sq ft)

This cottage house plan offers a perfect blend of compact design and modern functionality. With its narrow footprint, open layout, and efficient use of space, it is an excellent choice for homeowners looking to build a stylish home on a small plot.
“`13











