This compact and modern contemporary home offers approximately 592 square feet of heated living space with one bedroom and one full bathroom. Designed as a single-story residence, this plan is ideal for minimalist living, guest housing, rental units, or a cozy starter home. Its efficient layout and clean design make it a practical choice for those seeking simplicity without sacrificing comfort. 0p,

Exterior Design
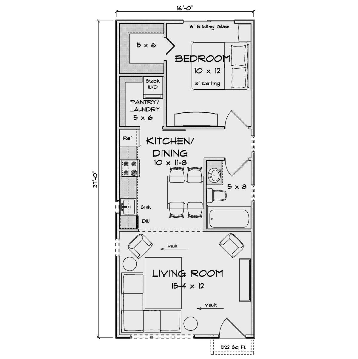
The exterior reflects a sleek contemporary style with simple lines and a compact footprint measuring approximately 16 feet wide and 37 feet deep. This narrow design makes it especially suitable for small or tight lots while maintaining a modern and attractive appearance. 1
The structure emphasizes functionality and efficiency, with a streamlined profile that reduces construction costs while still offering a visually appealing home. Its clean design allows it to blend well into both urban and rural environments.
Interior Layout Overview
All 592 square feet of living space is arranged on one level, creating an easy and efficient flow throughout the home. The layout is carefully designed to make the most of the limited square footage, ensuring that each space serves a clear and practical purpose. 2

The open layout enhances the sense of space, making the home feel larger than its footprint suggests. Living areas are centrally located, while the bedroom is positioned for privacy.
Main Living Area
The main living area combines the living room, kitchen, and dining space into a compact open-concept environment. This arrangement allows natural light to flow freely and creates a comfortable, connected living experience.
The kitchen is designed for efficiency, offering essential workspace and storage while remaining integrated with the main living area. This setup supports both everyday living and casual entertaining despite the home’s small size.
Bedroom
The home includes one bedroom, providing a private and comfortable retreat. Its placement within the layout ensures separation from the main living area while maintaining convenient access to the bathroom.
This bedroom is ideal for a single occupant or couple, and it can also serve as a guest space in a secondary dwelling.

Bathroom
The design features one full bathroom, conveniently located to serve both the bedroom and the main living area. Its placement ensures accessibility while maintaining privacy for the sleeping space. 3

Functional Features
- Single-story layout: All living areas are located on one level for easy accessibility.

- Open-concept design: Maximizes space and enhances flow between living areas.

- Compact footprint: Ideal for small lots or minimalist living.

- Efficient layout: Reduces wasted space while maintaining comfort.

- Versatile use: Suitable as a primary home, guest house, or rental unit.

Garage and Additional Space
This plan does not include a garage, helping to maintain its small footprint and affordability. However, the design allows for the addition of a detached garage or storage structure if needed.
Dimensions and Structural Details
The home measures approximately 16 feet in width and 37 feet in depth, with a total heated area of 592 square feet. It is designed as a one-story structure, making it efficient and easy to build. 4

The structure is typically built using conventional wood framing and can be adapted to various foundation types such as slab or crawlspace depending on site conditions.

Estimated Building Cost (USD)
Construction costs vary depending on materials, labor, and location. Using common mid-range estimates:
- Low estimate: ~ $71,040 (assuming ~$120 per sq ft × 592 sq ft)
- High estimate: ~ $106,560 (assuming ~$180 per sq ft × 592 sq ft)

This contemporary house plan offers a smart balance of affordability, efficiency, and modern design. Its compact layout and flexible use make it an excellent choice for homeowners seeking a simple yet stylish living solution.

“`5












